Avico Greentop

Eladó családi ház
Dány

79 900 000 Ft79.9 M Ft 688 793 Ft/m2
5 szoba
116 m²
építés éve:2026

Részletes adatok

Telekméret: 966 m2
Fűtés: Egyéb
Energetikai besorolás: Nem adta meg a hirdető

Az OTP Bank lakáshitel ajánlataFizetett hirdetés

3629998844
Kun-Szabóné Csabai Evelin
referens

Érdekel az OTP Bank kedvezményes lakáshitel ajánlata? *

* A kérdésre „Igen” válasz bejelölése esetén, az „Üzenet küldése” gombra kattintva kijelentem, hogy az OTP Bank Nyrt. Adatkezelési tájékoztatójának tartalmát megismertem és tudomásul vettem.

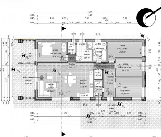
Eladó családi ház leírása

Dányban eladó, újépítésű, 4 szoba + nappalis, önálló családi ház, dupla fürdőszobával, hőszivattyús fűtéssel, 966 nm-es telekkel!

Belső nettó hasznos élhető tér 116.39 nm! + fedett terasz 10.81 nm

Telek területe 966 m2, 17 méter széles és 56 méter hosszú.

Várható átadás : 2026.10 hó

10 % önerővel szerződhető!

Helyiségeit tekintve nagyon jó elosztással rendelkezik, alábbiakban sorolom fel négyzetméterek megjelölésével:

- előszoba (6.56 nm)

- 4 önálló bejáratú szoba (11.76 nm, 12.04 nm, 10.32 nm, 10.87 nm)

- teraszkapcsolatos nagy nappali étkezővel, konyhával (41.62 nm)

- közlekedő (4.52 nm)

- háztartási helyiség (5.50 nm)

- fürdőszoba + wc (6.39 nm)

- zuhanyzó + wc (3.02 nm)

- kamra (1.67 nm)

- gardrób (2.12 nm)

Műszaki leírás:

- hőszivattyús fűtés, padlófűtéssel

- klíma a nappaliban

- burkolat 6000 ft / nm (hideg, meleg)

- 15 cm homlokzati hőszigetelés

- 10 cm lábazati hőszigetelés

- 30 cm üveggyapot tető hőszigetelés

- nyílászárók: típus műanyag szerkezetek, 3 rtg.hőszig.üveggel

- festés: belsőben páraáteresztő falfestékkel, színezve igény szerint

- csaptelepek 15 000 ft / db

- beltéri ajtók 60 000 ft / db

- alföldi márkájú szaniterek választhatóak

Dány egy csendes, barátságos település Pest vármegyében, a Gödöllői-dombság lankái között. A község ideális választás mindazok számára, akik nyugodt, vidéki környezetben szeretnének élni, ugyanakkor fontos számukra a főváros közelsége Budapest autóval körülbelül 4050 perc alatt elérhető.

A település rendezett, folyamatosan fejlődő infrastruktúrával rendelkezik: megtalálható óvoda, iskola, orvosi rendelő, valamint alapvető kereskedelmi és szolgáltató egységek. A közösségi élet aktív, a helyi rendezvények és hagyományőrző programok erősítik az összetartó lakóközösséget.

Dány különösen vonzó lehet családok számára, hiszen a nyugodt környezet, a tiszta levegő és a zöldterületek kiváló életminőséget biztosítanak. A természet közelsége kirándulási és kikapcsolódási lehetőségeket kínál, miközben a mindennapi élethez szükséges szolgáltatások könnyen elérhetők.

Összességében Dány ideális választás azoknak, akik a város zajától távol, mégis jól megközelíthető helyen keresnek otthont.

Amennyiben felkeltettem érdeklődésed keress nyugodtan, és gyere, nézd meg velem az ingatlant!

Hitel ügyintézés, eladás és vétel teljes körű ügyintézése, ingyenes tanácsadás, értékbecslés, megbízható ügyvédi háttér biztosítása.

Referencia szám: HZ035861-ZE

Hirdetés feltöltve: 2026. 04. 01. Utoljára módosítva: 2026. 04. 23.

Az ingatlan elhelyezkedése

Cím: Dány

Eladó családi házak a környékről

Zebegény
Eladó családi ház

Zebegény

69.9 M Ft
6 szoba
245 m²
Dány
Eladó családi ház

Dány

77.5 M Ft
3 szoba
84 m²
Dány
Eladó családi ház

Dány

157.5 M Ft
10 szoba
260 m²
Tápiószőlős
Eladó családi ház

Tápiószőlős

34.9 M Ft
5 szoba
210 m²
Dány
Eladó családi ház

Dány

40 M Ft
3 szoba
83 m²
Dány
Eladó családi ház

Dány

157.5 M Ft
10 szoba
260 m²
Érd, Érdliget - Kutyavár, Érd-liget
Eladó családi ház

Érd

230 M Ft
7 szoba
280 m²
Tápiószele
Eladó családi ház

Tápiószele

18.9 M Ft
4 szoba
68 m²
Tápiógyörgye
Eladó családi ház

Tápiógyörgye

19.9 M Ft
3 szoba
65 m²
Dány
Eladó családi ház

Dány

139.9 M Ft
7 szoba
160 m²
Dány
Eladó családi ház

Dány

44.9 M Ft
1 + 2 szoba
45 m²
Dány
Eladó családi ház

Dány

39.8 M Ft
4 szoba
92 m²
Kerepes
Eladó családi ház

Kerepes

81.99 M Ft
5 szoba
102 m²
Kerepes
Eladó családi ház

Kerepes

199 M Ft
6 szoba
360 m²
Dány
Eladó családi ház

Dány

90 M Ft
4 szoba
179 m²
Dány
Eladó családi ház

Dány

79.9 M Ft
5 szoba
116 m²
Budakeszi
Eladó családi ház

Budakeszi

130 M Ft
5 szoba
30 m²
Tápiószentmárton
Eladó családi ház

Tápiószentmárton

7.9 M Ft
2 + 1 szoba
86 m²
Budakeszi, Budakeszi kertváros
Eladó családi ház

Budakeszi

229 M Ft
10 szoba
450 m²
Dány
Eladó családi ház

Dány

44.9 M Ft
1 + 2 szoba
45 m²
Dány
Eladó családi ház

Dány

44.9 M Ft
1 + 2 szoba
45 m²
Tápiószele
Eladó családi ház

Tápiószele

11.9 M Ft
3 szoba
62 m²
Dány
Eladó családi ház

Dány

44.9 M Ft
1 + 2 szoba
45 m²
Dány
Eladó családi ház

Dány

157.5 M Ft
10 szoba
260 m²

Falusi CSOK ingatlanok

Sződ
Eladó családi ház

Sződ

116.9 M Ft
4 + 1 szoba
102 m²
Perőcsény
Eladó családi ház

Perőcsény

55.5 M Ft
4 + 1 szoba
128 m²
Szalaszend
Eladó családi ház

Szalaszend

21.9 M Ft
2257 m²
70 m²
Sződ
Eladó családi ház

Sződ

102.9 M Ft
4 szoba
92 m²
Mezőkeresztes
Eladó ikerház

Mezőkeresztes

13.5 M Ft
2 + 1 szoba
70 m²
Tápióbicske
Eladó családi ház

Tápióbicske

79.9 M Ft
3 szoba
160 m²
Tápiószőlős
Eladó családi ház

Tápiószőlős

9.5 M Ft
2 szoba
46 m²
Törtel
Eladó családi ház

Törtel

33 M Ft
3 szoba
100 m²