River Life

Eladó családi ház
Csévharaszt

+ 4 kép 1/7
77 900 000 Ft77.9 M Ft 846 739 Ft/m2
4 szoba
92 m2

Részletes adatok

Állapot:
Közmű: Villany, Csatorna
Övezet: Lakóövezet
Azonosító: 4138_923
Energetikai besorolás: Nem adta meg a hirdető

Az OTP Bank lakáshitel ajánlataFizetett hirdetés

+36 70 850
Kaufmann Norbert
Otthon&City

Érdekel az OTP Bank kedvezményes lakáshitel ajánlata? *

* A kérdésre „Igen” válasz bejelölése esetén, az „Üzenet küldése” gombra kattintva kijelentem, hogy az OTP Bank Nyrt. Adatkezelési tájékoztatójának tartalmát megismertem és tudomásul vettem.

Eladó családi ház leírása

ÚJ ÉPÍTÉSŰ, ÖNÁLLÓ, PRÉMIUM MINŐSÉGŰ, ENERGIATAKARÉKOS CSALÁDI HÁZAK ELADÓK – CSÉVHARASZTON!

OTTHONSTART HITELRE ALKALMAS – DÍJMENTES HITELÜGYINTÉZÉSSEL

Költözzön modern, hosszú távon is értékálló álomotthonába, Budapesttől könnyen és gyorsan elérhető, nyugodt környezetben.

ELHELYEZKEDÉS, KÖZLEKEDÉS

Új parcellázású, rendezett, családi házas övezet

Nyugodt, jól lakott település, kiépült infrastruktúrával

Buszmegálló 3 perc sétára

Vasúti csomópont (Monorierdő) kb. 16 perc, ahonnan Budapest ~20 perc

Ideális választás gyermekes családoknak, de kiváló elosztásának köszönhetően 2 generáció összeköltözésére egyaránt!

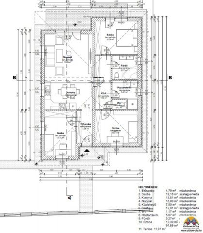
TELEK ÉS ELOSZTÁS

Telek mérete: 800 m² – kiváló kertnek, parkolásnak, pihenésnek vagy későbbi bővítésnek

Hasznos elrendezés:

tágas nappali–amerikai konyha

3 különálló hálószoba (egy közvetlen teraszkapcsolattal)

2 fürdőszoba

teraszkapcsolatos élettér

SZERKEZETI ÉS MŰSZAKI TARTALOM – PRÉMIUM KATEGÓRIA
Tartószerkezet

Főfalak: 30 cm Porotherm tégla

Válaszfalak: 10 cm Porotherm vagy Ytong

Födém: fa szerkezet, tanúsított gomba- és rovarvédelemmel

Látszó szarufa, barna osztrák lambéria – természetes, meleg belső hangulat

Szigetelés

Aljzat: 12 cm EPS

Homlokzat: 10 cm grafitos hőszigetelés (dryvit)

Födém: purhabos technológia, 30 cm kőzetgyapot értéknek megfelelő

Lábazat: 6 cm lépésálló szigetelés

NYÍLÁSZÁRÓK, BURKOLATOK

3 rétegű, 6 légkamrás Salamander nyílászárók

Alumínium redőnyök, fehér színben

Hideg–meleg burkolatok 5.000 Ft/m²-ig választhatók

Kültéri burkolatok: csúszásmentes, fagyálló

Beltéri ajtók kilinccsel, festett falak, gipszes glettelés

GÉPÉSZET ÉS KOMFORT

Monoblokkos hőszivattyú + padlófűtés minden helyiségben

Inverteres hűtő-fűtő klíma a nappaliban

100 literes Ariston „okos” bojler

Teljes vízszűrő rendszer

Alacsony rezsi, korszerű energetikai besorolás

FÜRDŐSZOBÁK

2 db fürdőszoba

Falba épített Geberit WC tartályok

170×75 cm kád automata leeresztővel

Épített zuhany folyókával

2 db mosdó csapteleppel

KÜLSŐ KIALAKÍTÁS

Utcafronti kerítés festett fa deszkázattal

Gyalogos kapu + széles gépkocsi beálló

40 cm széles beton járda a ház körül (esővíz-elvezetéssel)

Tágas, rendezett kert kialakításának lehetősége

MIÉRT KIVÁLÓ VÁLASZTÁS?

Új építés, prémium műszaki tartalom

Energiatakarékos megoldások → alacsony fenntartási költség

Rugalmas belső kialakítás, vevői igények szerint

Nagyméretű telek, értékálló befektetés

Gyors budapesti elérhetőség, nyugodt lakókörnyezet

ÁTADÁS ÉS FINANSZÍROZÁS

Átadás: 2026. május

Kulcsrakészen, használatbavételi engedéllyel

Hitelre és támogatásra alkalmas

Díjmentes hitelügyintézés – összes bank ajánlata egy helyen

Nem adta még el ingatlanát?

Ne adja el piaci ár alatt!
Hívjon egy díjmentes felmérésre.

További információért, és megtekintésért várom megkeresését, akár hétvégén is!

Hirdetés feltöltve: 2026. 02. 06. Utoljára módosítva: 2026. 02. 06.

4 szobás családi házak ára Csévharaszton

Ebből az összehasonlításból megtudhatod, hogyan viszonyul a lakás ára a környékbeli családi házak átlagos árához. Ez nem azt jelenti, hogy ennyivel olcsóbb vagy drágább, mint amennyit a lakás ér, hanem hogy ennyivel tér el a környékbeli átlagtól.

Ennek a m² ára
Csévharaszt m² ár
847 e Ft
526 e Ft -61%
Ennek az ára
Csévharaszt átlagár
77.9 M Ft m Ft
53.5 m Ft -46%

Az ingatlan elhelyezkedése

Cím: Csévharaszt

Eladó ingatlanok a környékről

Eladó családi ház
Eladó családi ház

Csévharaszt

28.5 M Ft
2 szoba
50 m2
Eladó családi ház
Eladó családi ház

Csévharaszt, Széchenyi utca

94.9 M Ft
7 szoba
302 m2
Eladó családi ház
Eladó családi ház

Csévharaszt

84.99 M Ft
4 szoba
99 m2
Eladó családi ház
Eladó családi ház

Csévharaszt

84.99 M Ft
4 szoba
99 m2
Eladó családi ház
Eladó családi ház

Budakeszi, Budakeszi kertváros

140 M Ft
2 szoba
55 m2
Eladó családi ház
Eladó családi ház

Tápiószele

45 M Ft
6 szoba
360 m2
Eladó családi ház
Eladó családi ház

Csévharaszt

175 M Ft
6 szoba
250 m2
Eladó családi ház
Eladó családi ház

Tápiószele

11.9 M Ft
3 szoba
62 m2
Eladó telek
Eladó telek

Hernád

9 M Ft
1777 m²
Eladó családi ház
Eladó családi ház

Hernád

52.9 M Ft
2 szoba
67 m2
Eladó családi ház
Eladó családi ház

Csévharaszt

84.99 M Ft
4 szoba
99 m2
Eladó családi ház
Eladó családi ház

Budakeszi, Makkosmária

100 M Ft
1 szoba
10 m2
Eladó családi ház
Eladó családi ház

Tápiószentmárton

7.9 M Ft
2 + 1 szoba
86 m2
Eladó családi ház
Eladó családi ház

Csévharaszt

99.9 M Ft
4 szoba
118 m2
Eladó családi ház
Eladó családi ház

Dunakeszi

250 M Ft
4 szoba
180 m2
Eladó családi ház
Eladó családi ház

Majosháza

65 M Ft
3 szoba
85 m2
Eladó családi ház
Eladó családi ház

Tápiószentmárton

48 M Ft
5 szoba
180 m2
Eladó családi ház
Eladó családi ház

Zebegény

69.9 M Ft
6 szoba
245 m2
Eladó családi ház
Eladó családi ház

Délegyháza

165 M Ft
4 szoba
186 m2
Eladó családi ház
Eladó családi ház

Tápiószentmárton

16.5 M Ft
3 szoba
50 m2
Eladó családi ház
Eladó családi ház

Csévharaszt

60 M Ft
1 + 1 szoba
43 m2
Eladó családi ház
Eladó családi ház

Tápiószele

18.9 M Ft
4 szoba
68 m2
Eladó családi ház
Eladó családi ház

Tápiószőlős

34.9 M Ft
5 szoba
210 m2
Eladó családi ház
Eladó családi ház

Csévharaszt

68 M Ft
2 szoba
49 m2

Falusi CSOK ingatlanok

Eladó családi ház
Eladó családi ház

Bugac

170 M Ft
187 m2
Eladó családi ház
Eladó családi ház

Fülöpszállás

23.6 M Ft
3 szoba
115 m2
Eladó családi ház
Eladó családi ház

Bogács

36.8 M Ft
2 szoba
64 m2
Eladó családi ház
Eladó családi ház

Tiszaroff

12.9 M Ft
3 szoba
87 m2
Eladó családi ház
Eladó családi ház

Andornaktálya

94.9 M Ft
1 + 2 szoba
80 m2
Eladó családi ház
Eladó családi ház

Abádszalók

70 M Ft
3 szoba
100 m2
Eladó családi ház
Eladó családi ház

Tabdi

95 M Ft
45 szoba
1490 m2
Eladó családi ház
Eladó családi ház

Bogács

62 M Ft
3 szoba
66 m2