Aerogate Homes

Eladó családi ház
Ceglédbercel

Figyelem!

Ez az ingatlan a 2019.07.01-től induló falusi CSOK által támogatott településen található

+ 1 kép 1/4
63 000 000 Ft63 M Ft 900 000 Ft/m2
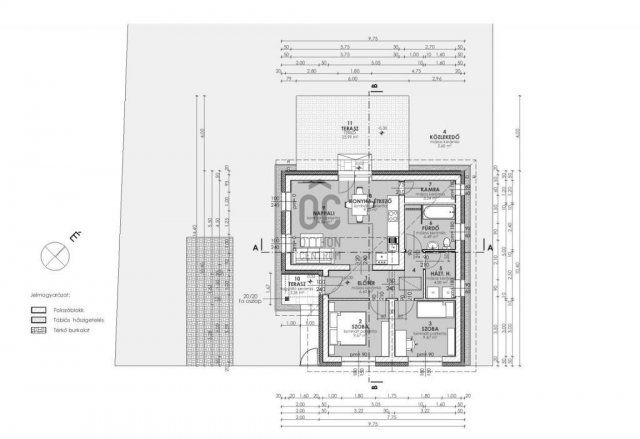
3 szoba
70 m2
építés éve:2025

Részletes adatok

Telekméret: 473 m2
Fűtés: Egyéb
Energetikai besorolás: Nem adta meg a hirdető

Az OTP Bank lakáshitel ajánlataFizetett hirdetés

+36 70 465
Szoboszlai Katalin
referens

Érdekel az OTP Bank kedvezményes lakáshitel ajánlata? *

* A kérdésre „Igen” válasz bejelölése esetén, az „Üzenet küldése” gombra kattintva kijelentem, hogy az OTP Bank Nyrt. Adatkezelési tájékoztatójának tartalmát megismertem és tudomásul vettem.

Eladó családi ház leírása

Ceglédbercelen új építésű családi ház eladó!

- tégla építésű lakás
- 20 cm-es homlokzati, és 30 cm-es födém hőszigetelés
- műanyag kívül antracit, belül fehér nyílászárók
- elektromos távírányítású hőszigetelt alumínium redőnyök
- terrán zenit elegant antracit beoncserép
- fűtés komplett hőszivattyús rendszer padlófűtéssel (helyiségenként termosztát), magasoldalfali fan-coilok hűtésre, melegvíz készítés tárolóba
- hidegburkolat 5000ft-ig választható
- melegburkolat 4000 ft-ig választható
- szinterezett ereszcsatorna antracit színben
- térkövezett személygépkocsi belálló
- utcafronti kerítés roppantott kerítéskő,fémszerkezetű kapukkal festett kivitelben
- elektromos kapunyitó és kaputelefon a vételárban
- riasztó kiépítve,beüzemelve
- átadás 2026 április vége

Otthon Start, Csok plusz támogatott hitelre alkalmas az ingatlan, továbbá bármilyen jeláloghitel is felvehető rá!
Ceglédbercel falusi Csok-os település

Megtekintéssel és bővebb információval kapcsolatban várom megtisztelő hívását.

Referencia szám: U0048742

Hirdetés feltöltve: 2025. 10. 17. Utoljára módosítva: 2025. 12. 14.

3 szobás családi házak ára Ceglédbercelen

Ebből az összehasonlításból megtudhatod, hogyan viszonyul a lakás ára a környékbeli családi házak átlagos árához. Ez nem azt jelenti, hogy ennyivel olcsóbb vagy drágább, mint amennyit a lakás ér, hanem hogy ennyivel tér el a környékbeli átlagtól.

Ennek a m² ára
Ceglédbercel m² ár
900 e Ft
682 e Ft -32%
Ennek az ára
Ceglédbercel átlagár
63 M Ft m Ft
83.3 m Ft 24%

Az ingatlan elhelyezkedése

Cím: Ceglédbercel

Eladó családi házak a környékről

Eladó családi ház
Eladó családi ház

Ceglédbercel

95 M Ft
6 szoba
220 m2
Eladó családi ház
Eladó családi ház

Ceglédbercel

67 M Ft
3 szoba
173 m2
Eladó családi ház
Eladó családi ház

Ceglédbercel

43.9 M Ft
2 szoba
75 m2
Eladó családi ház
Eladó családi ház

Dunakeszi

250 M Ft
4 szoba
180 m2
Eladó családi ház
Eladó családi ház

Tápiószentmárton

48 M Ft
5 szoba
180 m2
Eladó családi ház
Eladó családi ház

Ceglédbercel

38.9 M Ft
2 szoba
90 m2
Eladó családi ház
Eladó családi ház

Budakeszi, Makkosmária

100 M Ft
1 szoba
10 m2
Eladó családi ház
Eladó családi ház

Kerepes

199 M Ft
6 szoba
360 m2
Eladó családi ház
Eladó családi ház

Ceglédbercel

59.9 M Ft
4 szoba
110 m2
Eladó családi ház
Eladó családi ház

Ceglédbercel

457.2 M Ft
11 szoba
2850 m2
Eladó családi ház
Eladó családi ház

Sződ, Rátóti utca

149.99 M Ft
11 szoba
270 m2
Eladó családi ház
Eladó családi ház

Budakeszi, Budakeszi kertváros

140 M Ft
2 szoba
55 m2
Eladó családi ház
Eladó családi ház

Budaörs, Odvshegy utca

268.9 M Ft
5 szoba
235 m2
Eladó családi ház
Eladó családi ház

Remeteszőlős

399.9 M Ft
5 + 2 szoba
260 m2
Eladó családi ház
Eladó családi ház

Tápiószentmárton

7.9 M Ft
2 + 1 szoba
86 m2
Eladó családi ház
Eladó családi ház

Ceglédbercel

67 M Ft
4 szoba
165 m2
Eladó családi ház
Eladó családi ház

Budaörs, Városközpont utca

119.5 M Ft
5 + 1 szoba
140 m2
Eladó családi ház
Eladó családi ház

Dunavarsány

49.9 M Ft
3 + 2 szoba
130 m2
Eladó családi ház
Eladó családi ház

Tápiógyörgye

19.9 M Ft
3 szoba
65 m2
Eladó családi ház
Eladó családi ház

Ceglédbercel

104.99 M Ft
3 szoba
122 m2
Eladó családi ház
Eladó családi ház

Ceglédbercel

104.99 M Ft
3 szoba
122 m2
Eladó családi ház
Eladó családi ház

Ceglédbercel

75 M Ft
3 szoba
84 m2
Eladó családi ház
Eladó családi ház

Ceglédbercel

95 M Ft
6 szoba
220 m2
Eladó családi ház
Eladó családi ház

Budakeszi, Budakeszi kertváros

229 M Ft
10 szoba
450 m2

Falusi CSOK ingatlanok

Eladó családi ház
Eladó családi ház

Vásárosdombó

14.99 M Ft
2 szoba
69 m2
Eladó családi ház
Eladó családi ház

Törtel

13.5 M Ft
5 szoba
74 m2
Eladó családi ház
Eladó családi ház

Kondorfa, Fővég utca

24.9 M Ft
3 szoba
102 m2
Eladó családi ház
Eladó családi ház

Szigetcsép

110 M Ft
3 szoba
137 m2
Eladó családi ház
Eladó családi ház

Rédics

49.9 M Ft
3 szoba
107 m2
Eladó családi ház
Eladó családi ház

Szederkény

107.9 M Ft
6 szoba
224 m2
Eladó családi ház
Eladó családi ház

Bakonynána

44.999 M Ft
4 szoba
129 m2
Eladó téglalakás
Eladó téglalakás

Balatonszemes

119.9 M Ft
2 szoba
81 m2

Falusi CSOK ingatlanok

Eladó családi ház
Eladó családi ház

Ceglédbercel

67 M Ft
3 szoba
173 m2
Eladó családi ház
Eladó családi ház

Bag

16.9 M Ft
6 szoba
160 m2
Eladó családi ház
Eladó családi ház

Rédics

49.9 M Ft
3 szoba
107 m2
Eladó családi ház
Eladó családi ház

Egyházasrádóc

69.5 M Ft
3 szoba
100 m2
Eladó családi ház
Eladó családi ház

Mikebuda

44.9 M Ft
3 szoba
93 m2
Eladó családi ház
Eladó családi ház

Kondorfa

29.9 M Ft
3 + 1 szoba
65 m2
Eladó családi ház
Eladó családi ház

Ádánd

69.9 M Ft
6 szoba
251 m2
Eladó családi ház
Eladó családi ház

Farmos

38.9 M Ft
2 szoba
46 m2