Kedves Felhasználónk! Rendszerfrissítés miatt az oldalunk 2026. február 9-én 12 órától várhatóan 20 óráig nem lesz elérhető. Köszönjük megértésed!
Aerogate Homes

Eladó családi ház
Bükkábrány

Figyelem!

Ez az ingatlan a 2019.07.01-től induló falusi CSOK által támogatott településen található

+ 17 kép 1/20
75 000 000 Ft75 M Ft 535 714 Ft/m2
5 szoba
140 m2
építés éve:1984

Részletes adatok

Telekméret: 1148 m2
Fűtés: Gázkazán
Energetikai besorolás: Nem adta meg a hirdető

Az OTP Bank lakáshitel ajánlataFizetett hirdetés

+36 30 590
Drótos Bence
OTP Ingatlanpont Miskolc Szemere

Érdekel az OTP Bank kedvezményes lakáshitel ajánlata? *

* A kérdésre „Igen” válasz bejelölése esetén, az „Üzenet küldése” gombra kattintva kijelentem, hogy az OTP Bank Nyrt. Adatkezelési tájékoztatójának tartalmát megismertem és tudomásul vettem.

Eladó családi ház leírása

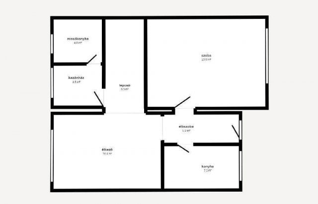
Két Generációs Álom Családi Ház Bükkábrányban, 140 m2
Azonnal Költözhető!
Főbb Adatok
Helyszín: Bükkábrány, csendes, nyugodt utca
Alapterület: 140 m2
(Tágas élettér a teljes kényelemért)
Szobák száma: 5 (Tökéletes elosztás két generációnak vagy nagycsaládnak)
Állapot: Több ponton felújított, azonnal költözhető

Miért Válassza Ezt a Házat?
Kivételes lehetőség azoknak, akik egy fedél alatt, de mégis kényelmesen elkülönülve szeretnének élni. Ez a 140 m2-es, 5 szobás családi ház Bükkábrány egyik csendes, keresett utcájában található, és teljes mértékben készen áll a beköltözésre!

Korszerű Műszaki Tartalom és Kényelem
A közelmúltban végzett felújításoknak köszönhetően a ház műszakilag is kiváló állapotban van:

Kettős Fűtési Rendszer: A fűtés rendkívül gazdaságos és rugalmas. Választhat a rezsicsökkentést támogató, hatékony vegyestüzelésű kazán és a kényelmes, gyorsan szabályozható gázkazán között.

Modern Hőleadás: A házban új, esztétikus modern lapradiátorok biztosítják a gyors és egyenletes hőelosztást.

Energiatakarékos Nyílászárók: A beépített műanyag nyílászárók garantálják a kiváló hőszigetelést, ami hozzájárul az alacsonyabb fűtésszámlához és a csendes belső térhez.

Rendezett Udvar és Extrák
Igényes Külső: Az udvar teljesen térkövezett, ami elegáns megjelenést kölcsönöz a háznak, miközben rendkívül könnyen karbantartható.

Aknás Garázs: Az autók biztonságos tárolása és karbantartása sem jelent gondot, hiszen egy aknás garázs áll rendelkezésre, ami szereléshez, hobbi tevékenységhez vagy plusz tárolóként is ideális.

Ne maradjon le erről a gondosan karbantartott, azonnal költözhető, remek elosztású családi házról! Hívjon még ma, hogy megtekinthesse! OTP Banki hátterünknek köszönhetően finanszírozási igényekben (pl. Otthon Start Hitelprogram , Babaváró, Falusi CSOK, CSOK Plusz, Lakáshitel, Személyi kölcsön stb.), illetve biztosítások tekintetében is díjmentesen, soron kívüli ügyintézéssel segítem ügyfeleim!
Hívjon bizalommal, és hivatkozzon az M311210 referenciaszámra.

Hirdetés feltöltve: 2025. 11. 06. Utoljára módosítva: 2026. 01. 13.

Az ingatlan elhelyezkedése

Cím: Bükkábrány

Eladó ingatlanok a környékről

Eladó családi ház
Eladó családi ház

Telkibánya

65 M Ft
4 + 1 szoba
85 m2
Eladó családi ház
Eladó családi ház

Mezőkövesd

28 M Ft
4 szoba
200 m2
Eladó családi ház
Eladó családi ház

Komlóska

55.9 M Ft
7 szoba
247 m2
Eladó panellakás
Eladó panellakás

Miskolc

20 M Ft
1 szoba
28 m2
Eladó családi ház
Eladó családi ház

Bükkábrány

75 M Ft
5 szoba
140 m2
Eladó családi ház
Eladó családi ház

Mályi

28.99 M Ft
4 szoba
130 m2
Eladó családi ház
Eladó családi ház

Bükkábrány

75 M Ft
5 szoba
140 m2
Eladó családi ház
Eladó családi ház

Nyékládháza

37.99 M Ft
4 szoba
100 m2
Eladó téglalakás
Eladó téglalakás

Mezőkövesd

39.9 M Ft
4 szoba
115 m2
Eladó családi ház
Eladó családi ház

Miskolc

39.9 M Ft
7 szoba
130 m2
Eladó családi ház
Eladó családi ház

Szikszó

89.9 M Ft
3 szoba
100 m2
Eladó családi ház
Eladó családi ház

Ózd

17.5 M Ft
5 szoba
160 m2
Eladó panellakás
Eladó panellakás

Miskolc

39.5 M Ft
2 + 1 szoba
63 m2
Eladó családi ház
Eladó családi ház

Gönc

26 M Ft
3 szoba
130 m2
Eladó családi ház
Eladó családi ház

Miskolc

78 M Ft
3 szoba
105 m2
Eladó családi ház
Eladó családi ház

Varbóc, Dózsa György utca

15.5 M Ft
1 + 1 szoba
60 m2
Eladó telek
Eladó telek

Perkupa, Gyöngyvirág út

3.5 M Ft
916 m²
Eladó családi ház
Eladó családi ház

Gönc, Kossuth Lajos utca

26 M Ft
2 + 1 szoba
130 m2
Eladó családi ház
Eladó családi ház

Hernádkércs

29.5 M Ft
6 + 2 szoba
300 m2
Eladó telek
Eladó telek

Varbóc, Dózsa György utca

4 M Ft
1154 m²
Eladó családi ház
Eladó családi ház

Edelény

31.5 M Ft
2 szoba
75 m2
Eladó téglalakás
Eladó téglalakás

Kazincbarcika

29.5 M Ft
2 szoba
62 m2
Eladó családi ház
Eladó családi ház

Miskolc, Belváros, Őz utca

24.5 M Ft
2 szoba
81 m2
Eladó családi ház
Eladó családi ház

Kazincbarcika

75 M Ft
4 szoba
90 m2

Falusi CSOK ingatlanok

Eladó családi ház
Eladó családi ház

Véménd

46.9 M Ft
5 szoba
195 m2
Eladó családi ház
Eladó családi ház

Dunaszekcső

12.5 M Ft
3 szoba
110 m2
Eladó családi ház
Eladó családi ház

Jakabszállás

69.99 M Ft
1 + 4 szoba
91 m2
Eladó családi ház
Eladó családi ház

Magyarszék

48.5 M Ft
3 + 1 szoba
86 m2
Eladó családi ház
Eladó családi ház

Szederkény

107.9 M Ft
6 szoba
224 m2
Eladó családi ház
Eladó családi ház

Kesztölc

129.9 M Ft
8 szoba
210 m2
Eladó családi ház
Eladó családi ház

Elek

85.9 M Ft
5 szoba
274 m2
Eladó családi ház
Eladó családi ház

Somogyszentpál

25.3 M Ft
3 szoba
80 m2

Falusi CSOK ingatlanok

Eladó családi ház
Eladó családi ház

Véménd

46.9 M Ft
5 szoba
195 m2
Eladó családi ház
Eladó családi ház

Rábapaty

99.99 M Ft
5 szoba
132 m2
Eladó családi ház
Eladó családi ház

Kölked

42 M Ft
3 szoba
100 m2
Eladó családi ház
Eladó családi ház

Bugac

90 M Ft
5 szoba
230 m2
Eladó családi ház
Eladó családi ház

Zengővárkony

28 M Ft
3 szoba
87 m2
Eladó családi ház
Eladó családi ház

Sárisáp, Orgona utca

60 M Ft
4 szoba
145 m2
Eladó családi ház
Eladó családi ház

Tésenfa, Kossuth utca 23/a

5.55 M Ft
1 + 1 szoba
109 m2
Eladó családi ház
Eladó családi ház

Szigliget

299 M Ft
3 szoba
95 m2