Eladó családi ház
Bükkábrány

Figyelem!

Ez az ingatlan a 2019.07.01-től induló falusi CSOK által támogatott településen található

+ 17 kép 1/20
75 000 000 Ft75 M Ft 535 714 Ft/m2
5 szoba
140 m2
építés éve:1984

Részletes adatok

Állapot: Átlagos
Telekméret: 1148 m2
Fűtés: Gázkazán
Parkolás: Garázs
Energetikai besorolás: Nem adta meg a hirdető
Zenga Premier

Friss hirdetések, amiket nem találsz meg más ingatlankereső portálon.

Fedezd fel elsőként a Zenga Premier címkés eladó ingatlanokat!

További részletek a zenga.hu-n

Az OTP Bank lakáshitel ajánlataFizetett hirdetés

+36 70 201
Kégl Zsolt
referens

Érdekel az OTP Bank kedvezményes lakáshitel ajánlata? *

* A kérdésre „Igen” válasz bejelölése esetén, az „Üzenet küldése” gombra kattintva kijelentem, hogy az OTP Bank Nyrt. Adatkezelési tájékoztatójának tartalmát megismertem és tudomásul vettem.

Eladó családi ház leírása

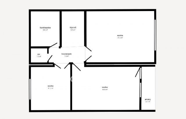
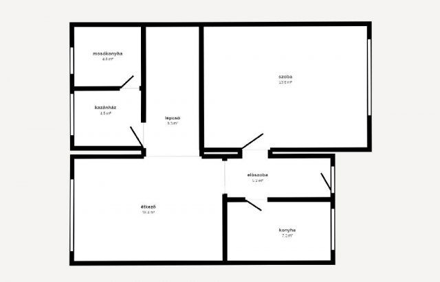
Két Generációs Álom Családi Ház Bükkábrányban, 140 m2
Azonnal Költözhető!
Főbb Adatok
Helyszín: Bükkábrány, csendes, nyugodt utca
Alapterület: 140 m2
(Tágas élettér a teljes kényelemért)
Szobák száma: 5 (Tökéletes elosztás két generációnak vagy nagycsaládnak)
Állapot: Több ponton felújított, azonnal költözhető

Miért Válassza Ezt a Házat?
Kivételes lehetőség azoknak, akik egy fedél alatt, de mégis kényelmesen elkülönülve szeretnének élni. Ez a 140 m2-es, 5 szobás családi ház Bükkábrány egyik csendes, keresett utcájában található, és teljes mértékben készen áll a beköltözésre!

Korszerű Műszaki Tartalom és Kényelem
A közelmúltban végzett felújításoknak köszönhetően a ház műszakilag is kiváló állapotban van:

Kettős Fűtési Rendszer: A fűtés rendkívül gazdaságos és rugalmas. Választhat a rezsicsökkentést támogató, hatékony vegyestüzelésű kazán és a kényelmes, gyorsan szabályozható gázkazán között.

Modern Hőleadás: A házban új, esztétikus modern lapradiátorok biztosítják a gyors és egyenletes hőelosztást.

Energiatakarékos Nyílászárók: A beépített műanyag nyílászárók garantálják a kiváló hőszigetelést, ami hozzájárul az alacsonyabb fűtésszámlához és a csendes belső térhez.

Rendezett Udvar és Extrák
Igényes Külső: Az udvar teljesen térkövezett, ami elegáns megjelenést kölcsönöz a háznak, miközben rendkívül könnyen karbantartható.

Aknás Garázs: Az autók biztonságos tárolása és karbantartása sem jelent gondot, hiszen egy aknás garázs áll rendelkezésre, ami szereléshez, hobbi tevékenységhez vagy plusz tárolóként is ideális.

Ne maradjon le erről a gondosan karbantartott, azonnal költözhető, remek elosztású családi házról! Hívjon még ma, hogy megtekinthesse! OTP Banki hátterünknek köszönhetően finanszírozási igényekben (pl. Otthon Start Hitelprogram , Babaváró, Falusi CSOK, CSOK Plusz, Lakáshitel, Személyi kölcsön stb.), illetve biztosítások tekintetében is díjmentesen, soron kívüli ügyintézéssel segítem ügyfeleim!
Hívjon bizalommal, és hivatkozzon az M311210 referenciaszámra.

Hirdetés feltöltve: 2025. 10. 01. Utoljára módosítva: 2025. 10. 01.

Az ingatlan elhelyezkedése

Cím: Bükkábrány

Eladó ingatlanok a környékről

Eladó családi ház
Eladó családi ház

Zirc

78 M Ft
3 szoba
94 m2
Eladó telek
Eladó telek

Balatonkenese

149.9 M Ft
2485 m²
Eladó téglalakás
Eladó téglalakás

Várpalota

69.9 M Ft
3 szoba
62 m2
Eladó családi ház
Eladó családi ház

Adásztevel

8.9 M Ft
2 szoba
63 m2
Eladó családi ház
Eladó családi ház

Balatonfűzfő

270 M Ft
5 + 4 szoba
270 m2
Eladó téglalakás
Eladó téglalakás

Balatonalmádi

93.84 M Ft
2 szoba
49 m2
Eladó családi ház
Eladó családi ház

Balatonalmádi

99.9 M Ft
4 + 1 szoba
98 m2
Eladó téglalakás
Eladó téglalakás

Várpalota, Weöres Sándor út

79.9 M Ft
4 szoba
74 m2
Eladó telek
Eladó telek

Balatonfüred

39.5 M Ft
727 m²
Eladó nyaraló
Eladó nyaraló

Balatonfűzfő, Radnóti Miklós utca

85.9 M Ft
5 szoba
168 m2
Eladó családi ház
Eladó családi ház

Veszprém

149 M Ft
4 + 1 szoba
250 m2
Eladó családi ház
Eladó családi ház

Pápateszér

28.99 M Ft
4 + 1 szoba
151 m2
Eladó családi ház
Eladó családi ház

Bakonyjákó

22 M Ft
2 szoba
78 m2
Eladó családi ház
Eladó családi ház

Monoszló

1913.597 M Ft
9 szoba
1615 m2
Eladó ikerház
Eladó ikerház

Balatonalmádi

119 M Ft
5 szoba
120 m2
Eladó családi ház
Eladó családi ház

Városlőd

23 M Ft
2 szoba
95 m2
Eladó téglalakás
Eladó téglalakás

Balatonfüred

89.9 M Ft
3 szoba
69 m2
Eladó családi ház
Eladó családi ház

Adásztevel

32.9 M Ft
2 szoba
84 m2
Eladó téglalakás
Eladó téglalakás

Várpalota

82.9 M Ft
4 szoba
74 m2
Eladó családi ház
Eladó családi ház

Csopak

266 M Ft
9 szoba
350 m2
Eladó családi ház
Eladó családi ház

Veszprém

149 M Ft
684 m²
252 m2
Eladó családi ház
Eladó családi ház

Veszprém

139.8 M Ft
4 szoba
157 m2
Eladó téglalakás
Eladó téglalakás

Balatonfüred

232 M Ft
10 szoba
233 m2
Eladó családi ház
Eladó családi ház

Balatonalmádi

74.6 M Ft
3 szoba
51 m2

Falusi CSOK ingatlanok

Eladó családi ház
Eladó családi ház

Kaposgyarmat

695 M Ft
6 szoba
610 m2
Eladó családi ház
Eladó családi ház

Böhönye, Dózsa körút

20.9 M Ft
5 + 1 szoba
127 m2
Eladó családi ház
Eladó családi ház

Tihany

345 M Ft
6 szoba
347 m2
Eladó családi ház
Eladó családi ház

Kisgyalán

33.3 M Ft
3 + 1 szoba
121 m2
Eladó családi ház
Eladó családi ház

Táborfalva

119.723 M Ft
5 szoba
105 m2
Eladó családi ház
Eladó családi ház

Táborfalva

24.9 M Ft
2 + 1 szoba
81 m2
Eladó családi ház
Eladó családi ház

Szőlősgyörök, Arany János utca

89.9 M Ft
3 szoba
130 m2
Eladó családi ház
Eladó családi ház

Fülöpszállás

14.7 M Ft
2 szoba
80 m2

Falusi CSOK ingatlanok

Eladó családi ház
Eladó családi ház

Tabdi

22 M Ft
4 + 1 szoba
97 m2
Eladó családi ház
Eladó családi ház

Cece

23.5 M Ft
2 szoba
56 m2
Eladó családi ház
Eladó családi ház

Tápiószőlős

69 M Ft
3 szoba
77 m2
Eladó családi ház
Eladó családi ház

Recsk

40 M Ft
3 + 1 szoba
130 m2
Eladó téglalakás
Eladó téglalakás

Tokaj

116.5 M Ft
2 szoba
49 m2
Eladó családi ház
Eladó családi ház

Bakonya

48 M Ft
3 szoba
168 m2
Eladó családi ház
Eladó családi ház

Kaszaper

14.5 M Ft
3 szoba
63 m2
Eladó családi ház
Eladó családi ház

Orci

39.9 M Ft
3 szoba
80 m2