NapForrás 20 - Buda

Eladó családi ház
Bükkábrány

Figyelem!

Ez az ingatlan a 2019.07.01-től induló falusi CSOK által támogatott településen található

+ 17 kép 1/20
75 000 000 Ft75 M Ft 535 714 Ft/m2
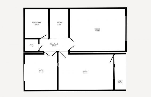
5 szoba
140 m2
építés éve:1984

Részletes adatok

Telekméret: 1148 m2
Fűtés: Gázkazán
Energetikai besorolás: Nem adta meg a hirdető

Az OTP Bank lakáshitel ajánlataFizetett hirdetés

+36 70 907
Klubert Gergő
OTP Ingatlanpont Miskolc Szemere

Érdekel az OTP Bank kedvezményes lakáshitel ajánlata? *

* A kérdésre „Igen” válasz bejelölése esetén, az „Üzenet küldése” gombra kattintva kijelentem, hogy az OTP Bank Nyrt. Adatkezelési tájékoztatójának tartalmát megismertem és tudomásul vettem.

Eladó családi ház leírása

Két Generációs Álom Családi Ház Bükkábrányban, 140 m2
Azonnal Költözhető!
Főbb Adatok
Helyszín: Bükkábrány, csendes, nyugodt utca
Alapterület: 140 m2
(Tágas élettér a teljes kényelemért)
Szobák száma: 5 (Tökéletes elosztás két generációnak vagy nagycsaládnak)
Állapot: Több ponton felújított, azonnal költözhető

Miért Válassza Ezt a Házat?
Kivételes lehetőség azoknak, akik egy fedél alatt, de mégis kényelmesen elkülönülve szeretnének élni. Ez a 140 m2-es, 5 szobás családi ház Bükkábrány egyik csendes, keresett utcájában található, és teljes mértékben készen áll a beköltözésre!

Korszerű Műszaki Tartalom és Kényelem
A közelmúltban végzett felújításoknak köszönhetően a ház műszakilag is kiváló állapotban van:

Kettős Fűtési Rendszer: A fűtés rendkívül gazdaságos és rugalmas. Választhat a rezsicsökkentést támogató, hatékony vegyestüzelésű kazán és a kényelmes, gyorsan szabályozható gázkazán között.

Modern Hőleadás: A házban új, esztétikus modern lapradiátorok biztosítják a gyors és egyenletes hőelosztást.

Energiatakarékos Nyílászárók: A beépített műanyag nyílászárók garantálják a kiváló hőszigetelést, ami hozzájárul az alacsonyabb fűtésszámlához és a csendes belső térhez.

Rendezett Udvar és Extrák
Igényes Külső: Az udvar teljesen térkövezett, ami elegáns megjelenést kölcsönöz a háznak, miközben rendkívül könnyen karbantartható.

Aknás Garázs: Az autók biztonságos tárolása és karbantartása sem jelent gondot, hiszen egy aknás garázs áll rendelkezésre, ami szereléshez, hobbi tevékenységhez vagy plusz tárolóként is ideális.

Ne maradjon le erről a gondosan karbantartott, azonnal költözhető, remek elosztású családi házról! Hívjon még ma, hogy megtekinthesse! OTP Banki hátterünknek köszönhetően finanszírozási igényekben (pl. Otthon Start Hitelprogram , Babaváró, Falusi CSOK, CSOK Plusz, Lakáshitel, Személyi kölcsön stb.), illetve biztosítások tekintetében is díjmentesen, soron kívüli ügyintézéssel segítem ügyfeleim!
Hívjon bizalommal, és hivatkozzon az M311210 referenciaszámra.

Hirdetés feltöltve: 2025. 10. 22. Utoljára módosítva: 2026. 01. 13.

Az ingatlan elhelyezkedése

Cím: Bükkábrány

Eladó ingatlanok a környékről

Eladó családi ház
Eladó családi ház

Ózd

15 M Ft
7 szoba
225 m2
Eladó családi ház
Eladó családi ház

Telkibánya

65 M Ft
4 + 1 szoba
85 m2
Eladó családi ház
Eladó családi ház

Putnok

11 M Ft
3 szoba
79 m2
Eladó családi ház
Eladó családi ház

Nemesbikk, Kossuth utca 3

4.5 M Ft
2 szoba
80 m2
Eladó családi ház
Eladó családi ház

Léh

23.99 M Ft
2 + 1 szoba
100 m2
Eladó családi ház
Eladó családi ház

Miskolc

79 M Ft
4 + 1 szoba
157 m2
Eladó családi ház
Eladó családi ház

Telkibánya

65 M Ft
4 + 1 szoba
85 m2
Eladó téglalakás
Eladó téglalakás

Miskolc, Diósgyőr, Kiss Tábornok

23.9 M Ft
1 szoba
35 m2
Eladó családi ház
Eladó családi ház

Bükkábrány

75 M Ft
5 szoba
140 m2
Eladó panellakás
Eladó panellakás

Miskolc, Martin kertváros, Gálffy Ignác utca

39.5 M Ft
3 szoba
63 m2
Eladó családi ház
Eladó családi ház

Miskolc

149.9 M Ft
5 szoba
345 m2
Eladó családi ház
Eladó családi ház

Edelény

31.5 M Ft
2 szoba
75 m2
Eladó panellakás
Eladó panellakás

Miskolc

22.9 M Ft
1 + 1 szoba
35 m2
Eladó családi ház
Eladó családi ház

Miskolc

25.9 M Ft
4 szoba
148 m2
Eladó családi ház
Eladó családi ház

Mezőkeresztes

14.9 M Ft
2 + 1 szoba
65 m2
Eladó családi ház
Eladó családi ház

Bükkábrány

75 M Ft
5 szoba
140 m2
Eladó hotel
Eladó hotel

Sárospatak

89 M Ft
250 m2
Eladó családi ház
Eladó családi ház

Bükkábrány

75 M Ft
5 szoba
140 m2
Eladó családi ház
Eladó családi ház

Gönc

20.5 M Ft
2 szoba
80 m2
Eladó családi ház
Eladó családi ház

Rudabánya

19.9 M Ft
5 szoba
140 m2
Eladó családi ház
Eladó családi ház

Járdánháza, József Attila

2.9 M Ft
1 szoba
50 m2
Eladó családi ház
Eladó családi ház

Szögliget

31.8 M Ft
3 szoba
93 m2
Eladó családi ház
Eladó családi ház

Mezőkövesd

29.9 M Ft
2 szoba
74 m2
Eladó sorház
Eladó sorház

Felsőzsolca

74.99 M Ft
4 szoba
109 m2

Falusi CSOK ingatlanok

Eladó családi ház
Eladó családi ház

Berkesd

48.9 M Ft
8 szoba
180 m2
Eladó családi ház
Eladó családi ház

Magyarszék

48.5 M Ft
3 + 1 szoba
86 m2
Eladó családi ház
Eladó családi ház

Kaposmérő

93.5 M Ft
3 szoba
140 m2
Eladó családi ház
Eladó családi ház

Tápiószőlős

14.9 M Ft
2 szoba
67 m2
Eladó ikerház
Eladó ikerház

Balatonakali

129 M Ft
4 szoba
145 m2
Eladó családi ház
Eladó családi ház

Vajszló

18 M Ft
2 szoba
91 m2
Eladó családi ház
Eladó családi ház

Szakmár

12.9 M Ft
3 + 1 szoba
90 m2
Eladó családi ház
Eladó családi ház

Ábrahámhegy

139 M Ft
4 szoba
106 m2

Falusi CSOK ingatlanok

Eladó családi ház
Eladó családi ház

Mályi

84.9 M Ft
4 szoba
100 m2
Eladó családi ház
Eladó családi ház

Nemesbőd

87 M Ft
5 szoba
120 m2
Eladó családi ház
Eladó családi ház

Szentbékkálla, Szentbékkálla

63.9 M Ft
2 szoba
143 m2
Eladó családi ház
Eladó családi ház

Töttös, Rákóczi utca

55.9 M Ft
4 szoba
129 m2
Eladó családi ház
Eladó családi ház

Somogygeszti

10.9 M Ft
2 szoba
115 m2
Eladó családi ház
Eladó családi ház

Dág

39.9 M Ft
2 szoba
80 m2
Eladó családi ház
Eladó családi ház

Szászvár, Meggyes utca

9.99 M Ft
2 szoba
90 m2
Eladó családi ház
Eladó családi ház

Tapsony

23.8 M Ft
3 szoba
130 m2