River Life

Eladó családi ház
Budapest, XXIII. kerület, Szitás utca

+ 17 kép 1/20
59 900 000 Ft59.9 M Ft 950 794 Ft/m2
3 szoba
63 m2
építés éve:1950

Részletes adatok

Állapot: Átlagos
Fűtés: Gázkazán
Közmű: Víz, Gáz, Villany, Csatorna
Energetikai besorolás: Nem adta meg a hirdető

Az OTP Bank lakáshitel ajánlataFizetett hirdetés

+36 70 383
Szimeth Norbert
Balla Ingatlan - XVIII. kerület, Gyál, Üllő, Vecsés, Péteri

Érdekel az OTP Bank kedvezményes lakáshitel ajánlata? *

* A kérdésre „Igen” válasz bejelölése esetén, az „Üzenet küldése” gombra kattintva kijelentem, hogy az OTP Bank Nyrt. Adatkezelési tájékoztatójának tartalmát megismertem és tudomásul vettem.

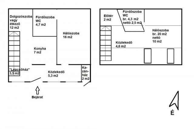
Eladó családi ház leírása

Dupla komfortos házrész saját kerttel a XXIII. kerület csendes mellékutcájában, hitelre is megvásárolható
Budapest XXIII. kerületének egyik legnyugodtabb részén, a Szitás utcában, egy csendes mellékutcában kínálunk megvételre egy háromlakásos udvarban található, önálló házrészt. Az ingatlanhoz ügyvéd által készített használati megosztási szerződés tartozik, így hitelkonstrukcióban is megvásárolható, jogilag rendezett formában.
A lakás összesen 79,4 m²-es valós alapterülettel rendelkezik, amely nettó 53 m²-t jelent, de a terek kihasználtsága és a tetőtér beépítése miatt jóval tágasabbnak érződik. A földszint 48,5 m², a tetőtér bruttó 30,9 m², nettó 14,5 m², így a lakás ideális lehet pároknak, kis családoknak vagy akár két generáció számára is.

Felújított, kényelmes otthon
A ház 2008-ban teljes körű felújításon esett át: megújult az elektromos, víz- és csatornahálózat, ekkor történt a tetőtér beépítése is, betonfödémmel. A fűtést gázcirkó rendszer biztosítja, radiátorokon keresztül, a gázfelhasználás pedig bőven a kvóta alatt tartható. A földszinten 270 cm, a tetőtérben 250 cm a belmagasság a gerincnél, így a terek szellősek és világosak.
A ház dupla komfortos, azaz két külön fürdőszobával rendelkezik, ez ritka előny ebben a kategóriában.
A falazat vegyes: eredetileg vályog- és mészkőtéglából épült, a felújítás során Ytong téglákkal alakították ki a válaszfalakat és a közlekedőket, így a szerkezet stabil és jól szigetelt.

Saját kert és melléképületek
Az ingatlanhoz 70 m²-es saját kertrész tartozik, amely ideális pihenésre, kerti munkára vagy akár kisállattartásra. A kertben három különálló melléképület található: 4 m², 7 m² és 12 m² alapterülettel. A legnagyobb épületben elektromos áram és gázfűtés is rendelkezésre áll, így akár műhelynek, tárolónak vagy hobbihelyiségnek is kiválóan alkalmas.

Környezet és közlekedés
A Szitás utca nyugodt, családi házas övezet, ahol a természet közelsége és a városi infrastruktúra ideális egyensúlyban van. A környék rendezett, barátságos lakóközösséggel, kevés átmenő forgalommal, tökéletes választás azoknak, akik nyugalmat keresnek, de nem szeretnének elszakadni Budapesttől.
Közlekedés:
• Autóval gyorsan elérhető az M0-s, az M5-ös és a régi 51-es út
• Tömegközlekedéssel a belváros 30–40 perc alatt elérhető
• A közelben több buszjárat is közlekedik, amelyek Soroksár, Pesterzsébet és Kispest felé biztosítanak kapcsolatot

Ez az ingatlan azoknak szól, akik nem csupán négy falat keresnek, hanem egy valódi otthont, saját kerttel, nyugalommal, és minden olyan műszaki háttérrel, amely hosszú távon is kényelmes és fenntartható életet biztosít. Ha szeretné megtapasztalni, milyen érzés lehet itt élni, szívesen megmutatjuk!

Hirdetés feltöltve: 2025. 11. 04. Utoljára módosítva: 2025. 12. 03.

3 szobás családi házak ára Budapesten

Ebből az összehasonlításból megtudhatod, hogyan viszonyul a lakás ára a környékbeli családi házak átlagos árához. Ez nem azt jelenti, hogy ennyivel olcsóbb vagy drágább, mint amennyit a lakás ér, hanem hogy ennyivel tér el a környékbeli átlagtól.

Ennek a m² ára
XXIII. kerület m² ár
Budapest m² ár
951 e Ft
890 e Ft -7%
1127 e Ft 16%
Ennek az ára
XXIII. kerület átlagár
Budapest átlagár
59.9 M Ft m Ft
72.3 m Ft 17%
108.5 m Ft 45%

Az ingatlan elhelyezkedése

Cím: Budapest, XXIII. kerület, Szitás utca

Eladó ingatlanok a környékről

Eladó családi ház
Eladó családi ház

XXIII. kerület

115 M Ft
250 m2
Eladó téglalakás
Eladó téglalakás

VII. kerület, Belső Erzsébetváros, Erzsébet körút

89.9 M Ft
1 + 1 szoba
71 m2
Eladó családi ház
Eladó családi ház

XXIII. kerület, Soroksár

86.9 M Ft
4 szoba
150 m2
Eladó családi ház
Eladó családi ház

XXIII. kerület, Soroksár

350 M Ft
7 szoba
253 m2
Eladó téglalakás
Eladó téglalakás

VII. kerület, Belső Erzsébetváros, Erzsébet körút

160 M Ft
3 szoba
88 m2
Eladó családi ház
Eladó családi ház

XXIII. kerület

59 M Ft
3 szoba
75 m2
Eladó családi ház
Eladó családi ház

XXIII. kerület, Soroksár

359 M Ft
6 szoba
311 m2
Eladó családi ház
Eladó családi ház

XXIII. kerület

129 M Ft
4 szoba
258 m2
Eladó téglalakás
Eladó téglalakás

V. kerület, Váci utca

179 M Ft
3 szoba
86 m2
Eladó téglalakás
Eladó téglalakás

XIV. kerület, Kiszugló, Kövér Lajos utca

168 M Ft
3 + 1 szoba
84 m2
Eladó téglalakás
Eladó téglalakás

III. kerület, Rómaifürdő

195 M Ft
5 szoba
130 m2
Eladó téglalakás
Eladó téglalakás

XIII. kerület, Angyalföld, Gyermek tér

66.5 M Ft
2 szoba
40 m2
Eladó családi ház
Eladó családi ház

XXIII. kerület, Soroksár

149 M Ft
7 szoba
190 m2
Eladó családi ház
Eladó családi ház

XIX. kerület, Kispest, Arpád utca

69 M Ft
2 szoba
60 m2
Eladó családi ház
Eladó családi ház

XXIII. kerület

290 M Ft
6 szoba
140 m2
Eladó téglalakás
Eladó téglalakás

XIV. kerület, Thököly utca

62.5 M Ft
2 szoba
45 m2
Eladó családi ház
Eladó családi ház

XXIII. kerület

69.9 M Ft
3 szoba
100 m2
Eladó téglalakás
Eladó téglalakás

VII. kerület, Belső Erzsébetváros, Rózsa utca

170 M Ft
5 szoba
124 m2
Eladó téglalakás
Eladó téglalakás

XIII. kerület, Vizafogó, Marina part, Hajóépítő sétány

97 M Ft
2 szoba
47 m2
Eladó téglalakás
Eladó téglalakás

XI. kerület

62.5 M Ft
1 + 1 szoba
29 m2
Eladó családi ház
Eladó családi ház

XXIII. kerület

115 M Ft
7 + 1 szoba
232 m2
Eladó téglalakás
Eladó téglalakás

VIII. kerület, Palotanegyed, Rákóczi út

190 M Ft
5 szoba
121 m2
Eladó ikerház
Eladó ikerház

XX. kerület

122 M Ft
5 szoba
122 m2
Eladó családi ház
Eladó családi ház

XXIII. kerület, Soroksár-újtelep, Mezőlak utca

37 M Ft
3 szoba
90 m2

Falusi CSOK ingatlanok

Eladó családi ház
Eladó családi ház

Patak

26.9 M Ft
4 szoba
160 m2
Eladó téglalakás
Eladó téglalakás

Balatonszemes

125.2 M Ft
2 szoba
50 m2
Eladó téglalakás
Eladó téglalakás

Balatonszemes

244.5 M Ft
3 szoba
107 m2
Eladó családi ház
Eladó családi ház

Kondorfa, Fővég utca

24.9 M Ft
3 szoba
102 m2
Eladó családi ház
Eladó családi ház

Marcaltő

26 M Ft
3 szoba
103 m2
Eladó családi ház
Eladó családi ház

Jászalsószentgyörgy

39.9 M Ft
2 szoba
74 m2
Eladó családi ház
Eladó családi ház

Kaposkeresztúr

10 M Ft
2 szoba
50 m2
Eladó családi ház
Eladó családi ház

Iklad

70 M Ft
5 szoba
150 m2