Oasis Residence

Eladó családi ház
Budapest, XXII. kerület

+ 11 kép 1/14
159 900 000 Ft159.9 M Ft 918 966 Ft/m2
5 + 2 szoba
174 m²

Részletes adatok

Telekméret: 777 m2
Fűtés: Gázkazán
Parkolás: Garázs
Közmű: Víz, Gáz, Villany, Csatorna
Energetikai besorolás: C

Az OTP Bank lakáshitel ajánlataFizetett hirdetés

+36 20 591
Bali Csaba
Art Home Ingatlan

Érdekel az OTP Bank kedvezményes lakáshitel ajánlata? *

* A kérdésre „Igen” válasz bejelölése esetén, az „Üzenet küldése” gombra kattintva kijelentem, hogy az OTP Bank Nyrt. Adatkezelési tájékoztatójának tartalmát megismertem és tudomásul vettem.

Eladó családi ház leírása

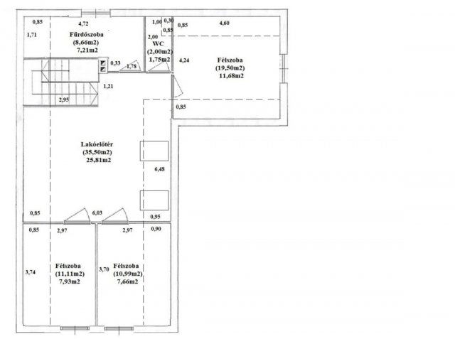
Budapest XXII. kerületében, Baross Gábor-telepen kínálom megvételre ezt a 174 négyzetméteres, két szintes, jó állapotú családi házat, amely az 1990-es évek végén épült. Az ingatlan kiválóan alkalmas akár két generáció kényelmes együttélésére is.

A ház 10 cm-es hőszigeteléssel rendelkezik, ami hozzájárul az alacsony fenntartási költségekhez.

A földszinten két külön bejáratú szoba, egy tágas konyha és nappali, valamint egy fürdőszoba, külön mellékhelyiség és a kazánház-lépcsőház található.

Az emeleten a lakótér kialakítása három szobát, egy nappalit, egy fürdőszobát és egy külön wc-t foglal magába. A két szint elrendezése lehetővé teszi a könnyű átalakítást két különálló lakrésszé.

Az ingatlanhoz tartozik egy impozáns, 35 négyzetméteres garázs, amely bőséges helyet biztosít járműve számára, sőt, egy része jelenleg kisebb konditeremként funkcionál.

Keressen bizalommal további információkért vagy megtekintés céljából!

Hirdetés feltöltve: 2026. 02. 05. Utoljára módosítva: 2026. 02. 25.

Az ingatlan elhelyezkedése

Cím: Budapest, XXII. kerület

Eladó ingatlanok a környékről

XXII. kerület
Eladó családi ház

Budapest, XXII. kerület

399 M Ft
5 szoba
300 m²
XXII. kerület, Nagytétény, Máriás utca
Eladó családi ház

Budapest, XXII. kerület

149 M Ft
3 szoba
88 m²
XXII. kerület, Baross Gábor telep
Eladó családi ház

Budapest, XXII. kerület

142 M Ft
5 szoba
120 m²
XXII. kerület, Budatétény
Eladó családi ház

Budapest, XXII. kerület

325 M Ft
7 szoba
257 m²
VII. kerület
Eladó téglalakás

Budapest, VII. kerület

55 M Ft
1 szoba
35 m²
VII. kerület, Belső Erzsébetváros, Kertész
Eladó téglalakás

Budapest, VII. kerület

49.9 M Ft
1 szoba
28 m²
VII. kerület, Belső Erzsébetváros, Nagy Diófa utca
Eladó téglalakás

Budapest, VII. kerület

160 M Ft
4 szoba
118 m²
XXII. kerület
Eladó családi ház

Budapest, XXII. kerület

275 M Ft
5 szoba
300 m²
XXII. kerület, Budafok
Eladó családi ház

Budapest, XXII. kerület

129 M Ft
4 + 3 szoba
250 m²
XIII. kerület
Eladó téglalakás

Budapest, XIII. kerület

58.9 M Ft
1 szoba
36 m²
XXII. kerület, Budafok, Bencés utca
Eladó családi ház

Budapest, XXII. kerület

220 M Ft
10 szoba
370 m²
XXII. kerület
Eladó családi ház

Budapest, XXII. kerület

204.9 M Ft
6 szoba
260 m²
VII. kerület, Belső Erzsébetváros, Kertész
Eladó téglalakás

Budapest, VII. kerület

52.9 M Ft
1 szoba
30 m²
XIV. kerület
Eladó panellakás

Budapest, XIV. kerület

82.6 M Ft
1 + 2 szoba
68 m²
XVII. kerület
Eladó panellakás

Budapest, XVII. kerület

83.9 M Ft
1 + 2 szoba
73 m²
XXII. kerület, Nagytétény, Aranyhegyi utca
Eladó családi ház

Budapest, XXII. kerület

45 M Ft
2 szoba
35 m²
XIII. kerület
Eladó téglalakás

Budapest, XIII. kerület

76.9 M Ft
2 szoba
45 m²
XXII. kerület
Eladó családi ház

Budapest, XXII. kerület

229 M Ft
6 szoba
306 m²
XXII. kerület, Nagytétény
Eladó családi ház

Budapest, XXII. kerület

135 M Ft
3 szoba
100 m²
VII. kerület, Külső Erzsébetváros, Dohány utca
Eladó téglalakás

Budapest, VII. kerület

56 M Ft
1 szoba
34 m²
XXII. kerület, Budafok
Eladó családi ház

Budapest, XXII. kerület

275 M Ft
5 szoba
300 m²
VII. kerület, Belső Erzsébetváros, Akácfa utca
Eladó téglalakás

Budapest, VII. kerület

139.9 M Ft
3 szoba
73 m²
XIV. kerület, Alsórákos, Dorozsmai utca 203-209
Eladó téglalakás

Budapest, XIV. kerület

94.9 M Ft
2 szoba
50 m²
VII. kerület, Belső Erzsébetváros, Kertész utca
Eladó téglalakás

Budapest, VII. kerület

55.9 M Ft
1 szoba
33 m²

Falusi CSOK ingatlanok

Letenye
Eladó családi ház

Letenye

46.5 M Ft
7 szoba
220 m²
Ceglédbercel
Eladó családi ház

Ceglédbercel

67 M Ft
4 szoba
165 m²
Kislőd
Eladó családi ház

Kislőd

23.9 M Ft
2 szoba
68 m²
Igal
Eladó családi ház

Igal

94.5 M Ft
4 + 2 szoba
278 m²
Újkígyós
Eladó családi ház

Újkígyós

19.99 M Ft
2 + 1 szoba
72 m²
Kocsér
Eladó családi ház

Kocsér

58.59 M Ft
4 szoba
92 m²
Szarvaskend
Eladó családi ház

Szarvaskend

26.9 M Ft
2 szoba
83 m²
Románd
Eladó családi ház

Románd

44.9 M Ft
3 szoba
100 m²