Metrodom

Eladó családi ház
Budapest, XXII. kerület

+ 17 kép 1/20
163 000 000 Ft163 M Ft 673 554 Ft/m2
9 + 2 szoba
242 m²
építés éve:1970

Részletes adatok

Telekméret: 728 m2
Fűtés: Gázkazán
Energetikai besorolás: Nem adta meg a hirdető

Az OTP Bank lakáshitel ajánlataFizetett hirdetés

+36 70 237
Zatykó Krisztina
referens

Érdekel az OTP Bank kedvezményes lakáshitel ajánlata? *

* A kérdésre „Igen” válasz bejelölése esetén, az „Üzenet küldése” gombra kattintva kijelentem, hogy az OTP Bank Nyrt. Adatkezelési tájékoztatójának tartalmát megismertem és tudomásul vettem.

Eladó családi ház leírása

A XXII. kerület legkedveltebb részén, DUNATELEPEN három lakásos családiház eladó.
Az utca végén Duna part, Kis-Háros sziget, természetvédelmi terület, lovarda, kajak-kenu egyesület és SUP kölcsönzési lehetőség!
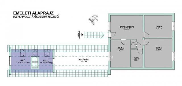
Eladásra kínálok egy nettó 242m2-es két szintes családi házat, melyben jelenleg három különálló lakás van kialakítva. A 724m2-es telken a házon felül fedett sütögető hely, tárolók, és mászóka is található.
Az épületen belül a három lakás a mellékelt alaprajz szerint helyezkedik el. Az 1. lakás 122m2, a 2. lakás, ami két szintes nettó 35m2-es, a 3. lakás pedig 86m2-es.
A fűtést automata váltókapcsolóval ellátott kondenzációs-, vagy vegyestüzelésű kazán biztosítja.
Az épület szigetelt, 2005-ben teljeskörűen felújították, azóta is folyamatosan karbantartják.
A parkolás a telken belül, és az utcán is lehetséges. Az utca zsákutca, átmenő forgalomtól mentes.
Lke-2/D/1-es övezeti besorolás alapján a telek 20%-os beépíthetőségi, 50% zöldterületi mutató, és 6 m-es építménymagassági maximummal rendelkezik.

Dunatelep lakó pihenő övezet, a lakók összetartóak, utcabálokat szerveznek, saját facebook csoportban segítik egymást. A Covid óta ez a legkedveltebb része a kerületnek.
Az ingatlan közvetlen közelében helyezkedik el a Dunapart ABC, mely élelmiszer kiskereskedés. 800m-re pedig két élelmiszer áruházlánci egység is elérhető (ALDI, LIDL). Bevásárló központ két kilométerre található, ahol a közműszolgáltatók, telefontársaságok kirendeltségein kívül posta, gyógyszertár, fodrász, fitnesz-terem, benzinkút is megtalálható (CAMPONA Bevásárló Központ)
Háziorvosi rendelő, bölcsőde, óvoda, iskola, 1 km távolságra.
A közelben éjszakai és nappali BKV járatok, agglomeráció felé közlekedő távolsági buszok megállói, és vasútállomás is található, a part mentén kerékpárút vezet, melyen szintén elérhetjük a belvárost.

Ne szalassza el ezt a lehetőséget.
Igény szerint hitelügyintézést, ügyvédi közreműködést biztosítunk, és segítséget nyújtunk az adásvétel folyamatának intézéséhez.

Amennyiben érdekli az ingatlan, vagy további kérdései vannak, hívjon telefonon.

Referencia szám: M298131

Hirdetés feltöltve: 2025. 11. 25. Utoljára módosítva: 2026. 01. 13.

Az ingatlan elhelyezkedése

Cím: Budapest, XXII. kerület

Eladó ingatlanok a környékről

XVI. kerület
Eladó téglalakás

Budapest, XVI. kerület

67.99 M Ft
2 szoba
49 m²
XXII. kerület
Eladó családi ház

Budapest, XXII. kerület

399 M Ft
5 szoba
300 m²
XXII. kerület, Nagytétény, Máriás utca
Eladó családi ház

Budapest, XXII. kerület

149 M Ft
3 szoba
88 m²
XXII. kerület
Eladó családi ház

Budapest, XXII. kerület

780 M Ft
4818 m²
2900 m²
XIX. kerület
Eladó téglalakás

Budapest, XIX. kerület

67.5 M Ft
2 szoba
53 m²
XXII. kerület, Nagytétény, Barackos út
Eladó családi ház

Budapest, XXII. kerület

119 M Ft
4 szoba
104 m²
XVIII. kerület
Eladó ikerház

Budapest, XVIII. kerület

195 M Ft
4 szoba
150 m²
XXII. kerület
Eladó családi ház

Budapest, XXII. kerület

229 M Ft
6 szoba
306 m²
VI. kerület
Eladó téglalakás

Budapest, VI. kerület

66 M Ft
2 szoba
45 m²
XXII. kerület
Eladó családi ház

Budapest, XXII. kerület

94 M Ft
4 szoba
106 m²
XIII. kerület
Eladó téglalakás

Budapest, XIII. kerület

92.5 M Ft
3 szoba
76 m²
XXII. kerület, Budafok
Eladó családi ház

Budapest, XXII. kerület

129 M Ft
4 + 3 szoba
250 m²
VI. kerület
Eladó téglalakás

Budapest, VI. kerület

64.9 M Ft
1 szoba
44 m²
XXII. kerület, Budafok, Alkotmány utca
Eladó családi ház

Budapest, XXII. kerület

380 M Ft
5 szoba
310 m²
V. kerület
Eladó téglalakás

Budapest, V. kerület

116 M Ft
2 + 1 szoba
55 m²
XIV. kerület, Rákosfalva
Eladó panellakás

Budapest, XIV. kerület

81.9 M Ft
3 szoba
59 m²
XVIII. kerület
Eladó ikerház

Budapest, XVIII. kerület

147 M Ft
5 szoba
149 m²
XXII. kerület
Eladó családi ház

Budapest, XXII. kerület

399 M Ft
5 szoba
300 m²
VII. kerület
Eladó téglalakás

Budapest, VII. kerület

95 M Ft
3 szoba
73 m²
XXII. kerület, Budatétény
Eladó családi ház

Budapest, XXII. kerület

225 M Ft
5 + 1 szoba
306 m²
XXII. kerület
Eladó családi ház

Budapest, XXII. kerület

540 M Ft
7 szoba
600 m²
VII. kerület, Külső Erzsébetváros, Nefelejcs utca
Eladó téglalakás

Budapest, VII. kerület

42 M Ft
1 + 1 szoba
15 m²
VII. kerület, Külső Erzsébetváros, Nefelejcs utca
Eladó téglalakás

Budapest, VII. kerület

44.5 M Ft
1 szoba
19 m²
XXII. kerület, Budafok
Eladó családi ház

Budapest, XXII. kerület

239 M Ft
9 szoba
325 m²

Falusi CSOK ingatlanok

Cece
Eladó családi ház

Cece

69.8 M Ft
4 szoba
215 m²
Balatonszemes
Eladó téglalakás

Balatonszemes

125.2 M Ft
2 szoba
50 m²
Darnózseli
Eladó családi ház

Darnózseli

72.9 M Ft
4 szoba
104 m²
Homokbödöge
Eladó családi ház

Homokbödöge

49.9 M Ft
4 + 1 szoba
167 m²
Letenye
Eladó családi ház

Letenye

46.5 M Ft
7 szoba
220 m²
Tésenfa, Kossuth utca 23/a
Eladó családi ház

Tésenfa

5.55 M Ft
1 + 1 szoba
109 m²
Bugac
Eladó családi ház

Bugac

55 M Ft
3 szoba
90 m²
Úrkút
Eladó családi ház

Úrkút

94.9 M Ft
4 szoba
186 m²