Oasis Residence

Eladó családi ház
Budapest, XXII. kerület

+ 17 kép 1/20
490 000 000 Ft490 M Ft 1 361 111 Ft/m2
8 + 1 szoba
360 m2
építés éve:1995

Részletes adatok

Állapot: Felújított
Telekméret: 1279 m2
Fűtés: Gázkazán
Energetikai besorolás: Nem adta meg a hirdető

Az OTP Bank lakáshitel ajánlataFizetett hirdetés

+36 70 237
Zatykó Krisztina
Budapest XI. kerület OTP Ingatlanpont

Érdekel az OTP Bank kedvezményes lakáshitel ajánlata? *

* A kérdésre „Igen” válasz bejelölése esetén, az „Üzenet küldése” gombra kattintva kijelentem, hogy az OTP Bank Nyrt. Adatkezelési tájékoztatójának tartalmát megismertem és tudomásul vettem.

Eladó családi ház leírása

Budapest XXII. kerületében, Budafokon eladó egy 3 szintes, 330 m2 lakóterű + 150m2 pinceszintes családi ház, ami két generációnak, vagy akár családi vállalkozás számára is tökéletes lehet.

Az emeleti lakrész külön bejáratú, vadonatúj, ízlésesen kivitelezett és berendezett, napfényes és tágas, mind a kivitelezés, mind a felhasznált anyagok minősége önmagáért beszél.

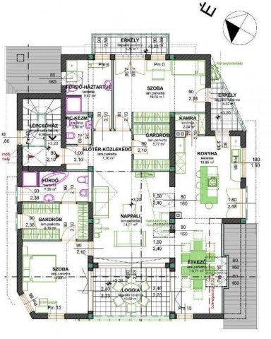
Az itt található helyiségek:
Nappali 24,5 m2
Konyha 18,9 m2
Étkező 15,7 m2
Kamra 2 m2
Szoba 19,7 m2
Szoba 16,2 m2
Félszoba 8,2 m2
Gardrób 5,8 m2
Fürdőszoba 9,5 m2
Fürdőszoba 7,4 m2
Előszoba 7,7 m2
WC 2,7 m2
Loggia 13,6 m2
Erkély 5,8 m2
Erkély 4,2 m2

A földszinti lakás szintén tágas, nagy terek és belmagasság jellemzi.
Helyiségek:
Nappali 30,7 m2
Konyha-Étkező 25,9 m2
Kamra 3 m2
Szoba 27,4 m2
Szoba 22 m2
Szoba 17,5 m2
Fürdőszoba 6,7 m2
Előszoba 16,4 m2
Gardrób 2,6 m2
WC 1,6 m2
Lépcsőház 8 m2
Terasz 20 m2

Az épület alatt komplett pinceszint található tárolókkal és garázzsal.

A telek 1279 m2, melyen számtalan növényt ültettek és egy medencét telepítettek korábban.

Az elhelyezkedésnek köszönhetően mind a tömegközlekedés kiváló, mind autóval könnyedén eljuthatunk bárhova, gépkocsival az M0, M1, M6 és M7 autópálya 10 perc alatt elérhető.

Vevőinknek szükség esetén kedvezményes hitelt biztosítunk teljes körű ügyintézéssel.

Keressen bizalommal.

Referencia szám: M270234

Hirdetés feltöltve: 2025. 06. 18. Utoljára módosítva: 2025. 11. 02.

Az ingatlan elhelyezkedése

Cím: Budapest, XXII. kerület

Eladó ingatlanok a környékről

Eladó családi ház
Eladó családi ház

XIX. kerület, Kispest, Nádasdy

105 M Ft
5 szoba
175 m2
Eladó családi ház
Eladó családi ház

XXII. kerület, Baross Gábor telep

142 M Ft
5 szoba
120 m2
Eladó családi ház
Eladó családi ház

XXII. kerület, Budafok, Alkotmány utca

380 M Ft
5 szoba
310 m2
Eladó ikerház
Eladó ikerház

XI. kerület, Sasad, Lanka utca

249 M Ft
6 szoba
240 m2
Eladó üzlethelyiség
Eladó üzlethelyiség

IV. kerület

103 M Ft
3 szoba
81 m2
Eladó családi ház
Eladó családi ház

XXII. kerület, Nagytétény, Diósdi utca

71.5 M Ft
2 szoba
50 m2
Eladó téglalakás
Eladó téglalakás

XIII. kerület, Vizafogó, Marina part, Hajóépítő sétány

97 M Ft
2 szoba
47 m2
Eladó családi ház
Eladó családi ház

XXII. kerület

540 M Ft
7 szoba
600 m2
Eladó téglalakás
Eladó téglalakás

XI. kerület

62.5 M Ft
1 + 1 szoba
29 m2
Eladó családi ház
Eladó családi ház

XXII. kerület

780 M Ft
4818 m²
2900 m2
Eladó családi ház
Eladó családi ház

XXII. kerület, Budafok

239 M Ft
9 szoba
325 m2
Eladó családi ház
Eladó családi ház

XXII. kerület

204.9 M Ft
6 szoba
260 m2
Eladó családi ház
Eladó családi ház

XXII. kerület, Nagytétény, Aranyhegyi utca

45 M Ft
2 szoba
35 m2
Eladó téglalakás
Eladó téglalakás

VII. kerület, Belső Erzsébetváros, Holló utca 12-14

85 M Ft
2 szoba
50 m2
Eladó téglalakás
Eladó téglalakás

XIV. kerület

81 M Ft
2 szoba
50 m2
Eladó téglalakás
Eladó téglalakás

XIII. kerület, Angyalföld, Szabolcs utca

0.26 M Ft
1 szoba
35 m2
Eladó családi ház
Eladó családi ház

XXII. kerület, Nagytétény, Mátyás király utca

150 M Ft
5 szoba
120 m2
Eladó ikerház
Eladó ikerház

XXII. kerület

152 M Ft
5 szoba
95 m2
Eladó családi ház
Eladó családi ház

XXII. kerület, Nagytétény, Máriás utca

149 M Ft
3 szoba
88 m2
Eladó téglalakás
Eladó téglalakás

III. kerület, Rómaifürdő

195 M Ft
5 szoba
130 m2
Eladó téglalakás
Eladó téglalakás

VII. kerület, Külső Erzsébetváros, Garay utca 37

69.9 M Ft
3 szoba
58 m2
Eladó családi ház
Eladó családi ház

XXII. kerület, Nagytétény

75 M Ft
2 szoba
50 m2
Eladó téglalakás
Eladó téglalakás

XIV. kerület, Alsórákos, Egyenes utca

0.21 M Ft
2 szoba
40 m2
Eladó téglalakás
Eladó téglalakás

XIV. kerület, Herminamező, Kacsóh Pongrácz út

69.9 M Ft
2 szoba
54 m2

Falusi CSOK ingatlanok

Eladó ikerház
Eladó ikerház

Táborfalva

49.9 M Ft
4 szoba
54 m2
Eladó családi ház
Eladó családi ház

Hegyeshalom

85 M Ft
4 + 1 szoba
123 m2
Eladó családi ház
Eladó családi ház

Ádánd

53.5 M Ft
6 szoba
180 m2
Eladó családi ház
Eladó családi ház

Ceglédbercel, Iskola utca

109 M Ft
5 szoba
133 m2
Eladó családi ház
Eladó családi ház

Szederkény

107.9 M Ft
6 szoba
224 m2
Eladó családi ház
Eladó családi ház

Vácegres

279.9 M Ft
6 szoba
194 m2
Eladó családi ház
Eladó családi ház

Nagykarácsony

34.9 M Ft
3 szoba
112 m2
Eladó ikerház
Eladó ikerház

Besnyő

79.6 M Ft
5 szoba
117 m2