Oasis Residence

Eladó családi ház
Budapest, XVIII. kerület

1/2
149 900 000 Ft149.9 M Ft 914 024 Ft/m2
4 szoba
164 m²
építés éve:2026

Részletes adatok

Telekméret: 500 m2
Fűtés: Egyéb
Energetikai besorolás: Nem adta meg a hirdető

Az OTP Bank lakáshitel ajánlataFizetett hirdetés

+36 70 421
Zámbó Beatrix
referens

Érdekel az OTP Bank kedvezményes lakáshitel ajánlata? *

* A kérdésre „Igen” válasz bejelölése esetén, az „Üzenet küldése” gombra kattintva kijelentem, hogy az OTP Bank Nyrt. Adatkezelési tájékoztatójának tartalmát megismertem és tudomásul vettem.

Eladó családi ház leírása

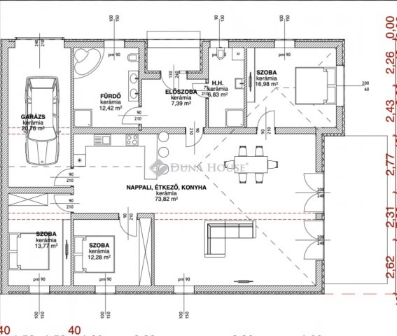
18.kerület legkedveltebb részén AlmáskertbenAlmáskertben modern környezetben eladó új építésű ikerházfél.A kivitelező sok éves múlttal és rengeteg elégedett ügyféllel rendelkezik, referenciák akár itt a lakóparkban is megtekinthetőek.164,25 négyzetméter hasznos lakótérrel rendelkezik, mely egy 500 négyzetméteres telken fekszik. Nappali+3hálószobával rendelkezik, a szobák minimum 12 négyzetméteresek. A földszinten elhelyezkedő 73négyzetméteres nappali+amerikai konyha tágas életteret biztosít, melyből egy csodás privát teraszon keresztül juthatunk ki a saját privát kertünkbe.Autóval garázsban és az udvaron is lehet parkolni.Műszaki adatok:-30-as Prototherm tégla falazat-15 cm-es homlokzati szigetelés-29 cm-es szigetelés az aljzat felől-35 cm-es szigetelés a födém felől-3 rétegű műanyag nyílászárók, fehér színnel-a tető szerkezete fafödém cserépfedéssel-elektromos garázskapu fehér színnel-elektromos kertikapu-Hőszivattyús fűtés, padlófűtéssel-1db hűtő-fűtő klíma-mosókonyha-riasztó és kamerarendszer-térkövezett autóbeállóBurkolatok/beltéri ajtók/szaniterek még választhatóak.A HÁZAK CSAK GARÁZZSAL ÉRINTKEZNEK!A lakópark teljesen új modern környezet, összetartó közösség jellemzi. Közlekedést tekintve autóval a Gyorsforgalmi út, Üllői út, Gyömrői út az M0-ás, M5-ös és a 4-es út mind-mind maximum 5 perc alatt megközelíthető.Tömegközlekedés 3 perc sétára, ahonnan a buszok Kőbánya Kispest vasútállomásig, illetve Határ úti metrómegálló, Ferihegyi vasútállomás is megközelíthető. 10 perc busz távolságra Ferihegyi vasútállomás, melyről a Nyugati pályaudvarig közlekedhetünk. Séta távolságra: Gyógyszertár, Spar, Iskola, Óvoda, PostaFelkeltette érdeklődését keressen bizalommal a hét bármely napján!

Referencia szám: HZ081612-ZE

Hirdetés feltöltve: 2026. 04. 01. Utoljára módosítva: 2026. 04. 02.

4 szobás családi házak ára Budapesten

Ebből az összehasonlításból megtudhatod, hogyan viszonyul a lakás ára a környékbeli családi házak átlagos árához. Ez nem azt jelenti, hogy ennyivel olcsóbb vagy drágább, mint amennyit a lakás ér, hanem hogy ennyivel tér el a környékbeli átlagtól.

Ennek a m² ára
XVIII. kerület m² ár
Budapest m² ár
914 e Ft
1002 e Ft 9%
1086 e Ft 16%
Ennek az ára
XVIII. kerület átlagár
Budapest átlagár
149.9 M Ft m Ft
137 m Ft -9%
152.7 m Ft 2%

Az ingatlan elhelyezkedése

Cím: Budapest, XVIII. kerület

Eladó ingatlanok a környékről

XVIII. kerület
Eladó családi ház

Budapest, XVIII. kerület

145.8 M Ft
4 szoba
130 m²
XVIII. kerület
Eladó családi ház

Budapest, XVIII. kerület

149.9 M Ft
8 + 1 szoba
270 m²
XI. kerület
Eladó téglalakás

Budapest, XI. kerület

109 M Ft
2 + 1 szoba
57 m²
V. kerület, Lipótváros, Bazilika
Eladó téglalakás

Budapest, V. kerület

196 M Ft
3 szoba
98 m²
XVIII. kerület
Eladó családi ház

Budapest, XVIII. kerület

220 M Ft
4 szoba
200 m²
XVIII. kerület, Kossuth Ferenc telep, Brigád utca
Eladó családi ház

Budapest, XVIII. kerület

79.99 M Ft
4 szoba
88 m²
XIII. kerület, Angyalföld, Szabolcs utca
Eladó téglalakás

Budapest, XIII. kerület

48.5 M Ft
1 szoba
24 m²
VII. kerület
Eladó téglalakás

Budapest, VII. kerület

86 M Ft
2 szoba
67 m²
XVIII. kerület
Eladó családi ház

Budapest, XVIII. kerület

160 M Ft
3 + 1 szoba
156 m²
XVIII. kerület
Eladó családi ház

Budapest, XVIII. kerület

289.9 M Ft
11 szoba
300 m²
XVIII. kerület, Nagybani piac közelében, kertvárosi részen
Eladó családi ház

Budapest, XVIII. kerület

260 M Ft
8 + 2 szoba
600 m²
XVIII. kerület
Eladó családi ház

Budapest, XVIII. kerület

330 M Ft
7 szoba
360 m²
VIII. kerület, Józsefváros, Népszínház
Eladó téglalakás

Budapest, VIII. kerület

172.2 M Ft
5 szoba
178 m²
XVIII. kerület
Eladó családi ház

Budapest, XVIII. kerület

209.6 M Ft
8 szoba
304 m²
XIV. kerület
Eladó családi ház

Budapest, XIV. kerület

339 M Ft
10 + 2 szoba
393 m²
IX. kerület, Ferencváros, Petőfi Híd lába
Eladó téglalakás

Budapest, IX. kerület

119.9 M Ft
5 szoba
122 m²
XI. kerület
Eladó panellakás

Budapest, XI. kerület

75.9 M Ft
1 + 2 szoba
51 m²
XVIII. kerület
Eladó családi ház

Budapest, XVIII. kerület

330 M Ft
7 szoba
360 m²
XX. kerület
Eladó családi ház

Budapest, XX. kerület

89.9 M Ft
4 szoba
120 m²
XVIII. kerület
Eladó családi ház

Budapest, XVIII. kerület

140 M Ft
6 szoba
193 m²
XVIII. kerület, Újpéteritelep, Ady Endre utca
Eladó családi ház

Budapest, XVIII. kerület

125.99 M Ft
4 szoba
130 m²
XIV. kerület
Eladó panellakás

Budapest, XIV. kerület

62.5 M Ft
2 szoba
46 m²
X. kerület
Eladó téglalakás

Budapest, X. kerület

50 M Ft
2 szoba
39 m²
VIII. kerület, Józsefváros, Kálvária tér
Eladó téglalakás

Budapest, VIII. kerület

49.9 M Ft
1 szoba
41 m²

Falusi CSOK ingatlanok

Perbál
Eladó családi ház

Perbál

130 M Ft
5 szoba
190 m²
Felsőlajos
Eladó családi ház

Felsőlajos

100 M Ft
4 szoba
140 m²
Szabadbattyán
Eladó családi ház

Szabadbattyán

147.99 M Ft
5 szoba
255 m²
Szentmártonkáta
Eladó családi ház

Szentmártonkáta

35 M Ft
3 szoba
70 m²
Halimba
Eladó családi ház

Halimba

59.9 M Ft
6 szoba
182 m²
Vokány
Eladó családi ház

Vokány

30 M Ft
4 szoba
100 m²
Nyáregyháza
Eladó családi ház

Nyáregyháza

189 M Ft
2 szoba
260 m²
Mezőkeresztes
Eladó ikerház

Mezőkeresztes

13.5 M Ft
2 + 1 szoba
70 m²