River Life

Eladó családi ház
Budapest, XVIII. kerület

1/2
149 900 000 Ft149.9 M Ft 914 024 Ft/m2
4 szoba
164 m²
építés éve:2026

Részletes adatok

Telekméret: 500 m2
Fűtés: Egyéb
Energetikai besorolás: Nem adta meg a hirdető

Az OTP Bank lakáshitel ajánlataFizetett hirdetés

+36 70 421
Zámbó Beatrix
referens

Érdekel az OTP Bank kedvezményes lakáshitel ajánlata? *

* A kérdésre „Igen” válasz bejelölése esetén, az „Üzenet küldése” gombra kattintva kijelentem, hogy az OTP Bank Nyrt. Adatkezelési tájékoztatójának tartalmát megismertem és tudomásul vettem.

Eladó családi ház leírása

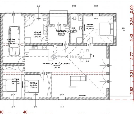
18.kerület legkedveltebb részén AlmáskertbenAlmáskertben modern környezetben eladó új építésű ikerházfél.A kivitelező sok éves múlttal és rengeteg elégedett ügyféllel rendelkezik, referenciák akár itt a lakóparkban is megtekinthetőek.164,25 négyzetméter hasznos lakótérrel rendelkezik, mely egy 500 négyzetméteres telken fekszik. Nappali+3hálószobával rendelkezik, a szobák minimum 12 négyzetméteresek. A földszinten elhelyezkedő 73négyzetméteres nappali+amerikai konyha tágas életteret biztosít, melyből egy csodás privát teraszon keresztül juthatunk ki a saját privát kertünkbe.Autóval garázsban és az udvaron is lehet parkolni.Műszaki adatok:-30-as Prototherm tégla falazat-15 cm-es homlokzati szigetelés-29 cm-es szigetelés az aljzat felől-35 cm-es szigetelés a födém felől-3 rétegű műanyag nyílászárók, fehér színnel-a tető szerkezete fafödém cserépfedéssel-elektromos garázskapu fehér színnel-elektromos kertikapu-Hőszivattyús fűtés, padlófűtéssel-1db hűtő-fűtő klíma-mosókonyha-riasztó és kamerarendszer-térkövezett autóbeállóBurkolatok/beltéri ajtók/szaniterek még választhatóak.A HÁZAK CSAK GARÁZZSAL ÉRINTKEZNEK!A lakópark teljesen új modern környezet, összetartó közösség jellemzi. Közlekedést tekintve autóval a Gyorsforgalmi út, Üllői út, Gyömrői út az M0-ás, M5-ös és a 4-es út mind-mind maximum 5 perc alatt megközelíthető.Tömegközlekedés 3 perc sétára, ahonnan a buszok Kőbánya Kispest vasútállomásig, illetve Határ úti metrómegálló, Ferihegyi vasútállomás is megközelíthető. 10 perc busz távolságra Ferihegyi vasútállomás, melyről a Nyugati pályaudvarig közlekedhetünk. Séta távolságra: Gyógyszertár, Spar, Iskola, Óvoda, PostaFelkeltette érdeklődését keressen bizalommal a hét bármely napján!

Referencia szám: HZ081612-ZE

Hirdetés feltöltve: 2026. 04. 01. Utoljára módosítva: 2026. 04. 02.

4 szobás családi házak ára Budapesten

Ebből az összehasonlításból megtudhatod, hogyan viszonyul a lakás ára a környékbeli családi házak átlagos árához. Ez nem azt jelenti, hogy ennyivel olcsóbb vagy drágább, mint amennyit a lakás ér, hanem hogy ennyivel tér el a környékbeli átlagtól.

Ennek a m² ára
XVIII. kerület m² ár
Budapest m² ár
914 e Ft
1002 e Ft 9%
1086 e Ft 16%
Ennek az ára
XVIII. kerület átlagár
Budapest átlagár
149.9 M Ft m Ft
137 m Ft -9%
152.7 m Ft 2%

Az ingatlan elhelyezkedése

Cím: Budapest, XVIII. kerület

Eladó ingatlanok a környékről

XVIII. kerület
Eladó családi ház

Budapest, XVIII. kerület

220 M Ft
4 szoba
200 m²
XVIII. kerület, Kossuth Ferenc telep, Brigád utca
Eladó családi ház

Budapest, XVIII. kerület

79.99 M Ft
4 szoba
88 m²
VIII. kerület, Józsefváros, Kálvária tér
Eladó téglalakás

Budapest, VIII. kerület

49.9 M Ft
1 szoba
41 m²
XVIII. kerület
Eladó családi ház

Budapest, XVIII. kerület

160 M Ft
3 + 1 szoba
156 m²
X. kerület
Eladó panellakás

Budapest, X. kerület

85 M Ft
3 szoba
68 m²
IX. kerület, Ferencváros, Petőfi Híd lába
Eladó téglalakás

Budapest, IX. kerület

119.9 M Ft
5 szoba
122 m²
XIV. kerület
Eladó családi ház

Budapest, XIV. kerület

339 M Ft
10 + 2 szoba
393 m²
XII. kerület
Eladó téglalakás

Budapest, XII. kerület

45 M Ft
1 szoba
20 m²
XVIII. kerület
Eladó családi ház

Budapest, XVIII. kerület

105 M Ft
6 szoba
180 m²
XVIII. kerület
Eladó családi ház

Budapest, XVIII. kerület

220 M Ft
6 szoba
244 m²
XI. kerület
Eladó téglalakás

Budapest, XI. kerület

109 M Ft
1 + 1 szoba
57 m²
VIII. kerület, Palotanegyed, Kálvin
Eladó téglalakás

Budapest, VIII. kerület

108.9 M Ft
3 szoba
104 m²
XVIII. kerület, Lónyaytelep, Széchenyi István utca
Eladó családi ház

Budapest, XVIII. kerület

94.9 M Ft
4 szoba
128 m²
X. kerület
Eladó téglalakás

Budapest, X. kerület

50 M Ft
2 szoba
39 m²
XVIII. kerület, Ganztelep, Sió utca
Eladó családi ház

Budapest, XVIII. kerület

160 M Ft
3 + 1 szoba
156 m²
XVIII. kerület
Eladó családi ház

Budapest, XVIII. kerület

105 M Ft
6 szoba
180 m²
XX. kerület
Eladó családi ház

Budapest, XX. kerület

89.9 M Ft
4 szoba
120 m²
XIII. kerület, Angyalföld, Szabolcs utca
Eladó téglalakás

Budapest, XIII. kerület

48.5 M Ft
1 szoba
24 m²
XVIII. kerület
Eladó családi ház

Budapest, XVIII. kerület

162 M Ft
5 szoba
195 m²
XIV. kerület
Eladó panellakás

Budapest, XIV. kerület

62.5 M Ft
2 szoba
46 m²
VIII. kerület, Kerepesdűlő, Ciprus utca
Eladó téglalakás

Budapest, VIII. kerület

93.8 M Ft
3 szoba
64 m²
XVIII. kerület
Eladó családi ház

Budapest, XVIII. kerület

145.8 M Ft
4 szoba
130 m²
XVIII. kerület
Eladó családi ház

Budapest, XVIII. kerület

260 M Ft
8 szoba
650 m²
XI. kerület
Eladó téglalakás

Budapest, XI. kerület

109 M Ft
2 + 1 szoba
57 m²

Falusi CSOK ingatlanok

Tápióbicske
Eladó ikerház

Tápióbicske

93.5 M Ft
7 szoba
136 m²
Tápióbicske
Eladó ikerház

Tápióbicske

93.5 M Ft
7 szoba
136 m²
Magyarpolány
Eladó családi ház

Magyarpolány

90 M Ft
2 szoba
70 m²
Levelek
Eladó családi ház

Levelek

73 M Ft
5 szoba
220 m²
Mezőnyárád
Eladó családi ház

Mezőnyárád

32 M Ft
3 szoba
86 m²
Újlengyel
Eladó ikerház

Újlengyel

78 M Ft
4 szoba
88 m²
Ceglédbercel
Eladó családi ház

Ceglédbercel

65.9 M Ft
3 szoba
97 m²
Tápiógyörgye
Eladó családi ház

Tápiógyörgye

14.9 M Ft
2 szoba
60 m²