Astora Márvány8

Eladó családi ház
Budapest, XVIII. kerület

+ 9 kép 1/12
79 990 000 Ft79.99 M Ft 908 977 Ft/m2
4 szoba
88 m²
építés éve:1945

Részletes adatok

Telekméret: 710 m2
Fűtés: Elektromos
Energetikai besorolás: Nem adta meg a hirdető

Az OTP Bank lakáshitel ajánlataFizetett hirdetés

+36 1 690
Drevnó Béla
Duna House Kispest

Érdekel az OTP Bank kedvezményes lakáshitel ajánlata? *

* A kérdésre „Igen” válasz bejelölése esetén, az „Üzenet küldése” gombra kattintva kijelentem, hogy az OTP Bank Nyrt. Adatkezelési tájékoztatójának tartalmát megismertem és tudomásul vettem.

Eladó családi ház leírása

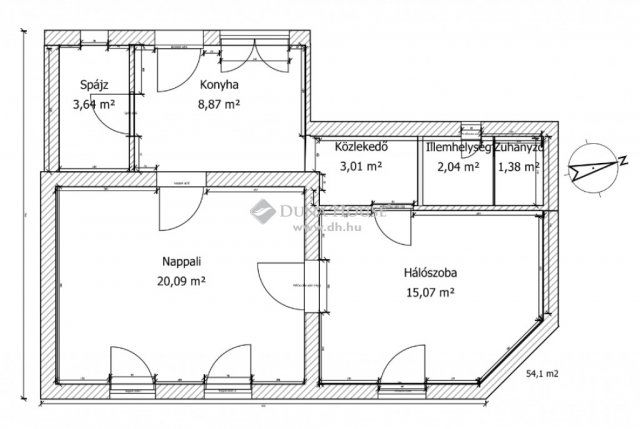
Eladó a 18. kerület közkedvelt részén, nyugodt, rendezett környezetben, egy 54 nm-es, és egy 33nm-es, két generációnak kiválóan alkalmas családi házak, 710 nm-es telken!

Mindkét ház két szobás, és összkomfortos.

A nagyobbik ingatlan felújított, a tetőre 5,8 KW 20 panel napelem került felszerelésre, ami mindkét otthont ellátja energiával.
A kisebbik ingatlan felújítandó, alatta pince található.

A kert kiválóan alkalmas baráti összejövetelekre, ásott kút, szaletli, sütögető, és egy kis játszótér szolgálja kényelmünket.

Ha felkeltette érdeklődését ez a kiváló paraméterekkel rendelkező ingatlan, további kérdéseivel, megtekintésért kérem hívjon, akár hétvégén is!
A Duna House teljes kínálatával kapcsolatban forduljanak hozzám bizalommal!

Bankfüggetlen pénzügyi szakembereink tanácsadással, ügyintézéssel tudják segíteni Önöket álmaik, céljaik megvalósításában!

Vegye igénybe díjmentes konzultációinkat!

https://www.facebook.com/otthonkonnyeden

Referencia szám: HZ067330

Hirdetés feltöltve: 2026. 03. 09. Utoljára módosítva: 2026. 03. 31.

4 szobás családi házak ára Budapesten

Ebből az összehasonlításból megtudhatod, hogyan viszonyul a lakás ára a környékbeli családi házak átlagos árához. Ez nem azt jelenti, hogy ennyivel olcsóbb vagy drágább, mint amennyit a lakás ér, hanem hogy ennyivel tér el a környékbeli átlagtól.

Ennek a m² ára
XVIII. kerület m² ár
Budapest m² ár
909 e Ft
1002 e Ft 9%
1086 e Ft 16%
Ennek az ára
XVIII. kerület átlagár
Budapest átlagár
79.99 M Ft m Ft
137 m Ft 42%
152.7 m Ft 48%

Az ingatlan elhelyezkedése

Cím: Budapest, XVIII. kerület

Eladó ingatlanok a környékről

III. kerület, Békásmegyer, Pünkösdfürdő utca 5
Eladó téglalakás

Budapest, III. kerület

151.99 M Ft
4 szoba
93 m²
III. kerület, Békásmegyer, Pünkösdfürdő utca 5
Eladó téglalakás

Budapest, III. kerület

75.99 M Ft
1 szoba
36 m²
XVIII. kerület, Kossuth Ferenc telep, Brigád utca
Eladó családi ház

Budapest, XVIII. kerület

79.99 M Ft
4 szoba
88 m²
XVIII. kerület, Újpéteritelep, Nagybani piac közelében, kertvárosi részen
Eladó családi ház

Budapest, XVIII. kerület

260 M Ft
8 + 2 szoba
600 m²
III. kerület, Békásmegyer, Pünkösdfürdő utca 5
Eladó téglalakás

Budapest, III. kerület

175.49 M Ft
4 szoba
93 m²
III. kerület, Békásmegyer, Pünkösdfürdő utca 5
Eladó téglalakás

Budapest, III. kerület

110.49 M Ft
3 szoba
63 m²
XVIII. kerület, Bókaytelep
Eladó családi ház

Budapest, XVIII. kerület

162 M Ft
5 szoba
195 m²
III. kerület, Békásmegyer, Pünkösdfürdő utca 5
Eladó téglalakás

Budapest, III. kerület

195.99 M Ft
4 szoba
93 m²
III. kerület, Békásmegyer, Pünkösdfürdő utca 5
Eladó téglalakás

Budapest, III. kerület

110.99 M Ft
3 szoba
57 m²
XVIII. kerület
Eladó családi ház

Budapest, XVIII. kerület

149.9 M Ft
8 + 1 szoba
270 m²
XVIII. kerület, Újpéteritelep
Eladó családi ház

Budapest, XVIII. kerület

330 M Ft
7 szoba
360 m²
XVIII. kerület
Eladó családi ház

Budapest, XVIII. kerület

330 M Ft
7 szoba
360 m²
XVIII. kerület
Eladó családi ház

Budapest, XVIII. kerület

260 M Ft
8 szoba
650 m²
XVIII. kerület, Lónyaytelep
Eladó családi ház

Budapest, XVIII. kerület

209.6 M Ft
8 szoba
304 m²
XVIII. kerület
Eladó családi ház

Budapest, XVIII. kerület

162 M Ft
5 szoba
195 m²
III. kerület, Békásmegyer, Pünkösdfürdő utca 5
Eladó téglalakás

Budapest, III. kerület

101.99 M Ft
2 szoba
46 m²
III. kerület, Békásmegyer, Pünkösdfürdő utca 5
Eladó téglalakás

Budapest, III. kerület

155.49 M Ft
4 szoba
93 m²
III. kerület, Békásmegyer, Pünkösdfürdő utca 5
Eladó téglalakás

Budapest, III. kerület

109.49 M Ft
3 szoba
60 m²
III. kerület, Békásmegyer, Pünkösdfürdő utca 5
Eladó téglalakás

Budapest, III. kerület

160.99 M Ft
4 szoba
93 m²
XVIII. kerület, Gloriett-telep
Eladó családi ház

Budapest, XVIII. kerület

145.8 M Ft
4 szoba
130 m²
III. kerület, Békásmegyer, Pünkösdfürdő utca 5
Eladó téglalakás

Budapest, III. kerület

172.49 M Ft
4 szoba
90 m²
III. kerület, Békásmegyer, Pünkösdfürdő utca 5
Eladó téglalakás

Budapest, III. kerület

178.99 M Ft
4 szoba
96 m²
III. kerület, Békásmegyer, Pünkösdfürdő utca 5
Eladó téglalakás

Budapest, III. kerület

109.49 M Ft
3 szoba
65 m²
III. kerület, Békásmegyer, Pünkösdfürdő utca 5
Eladó téglalakás

Budapest, III. kerület

107.49 M Ft
3 szoba
57 m²

Falusi CSOK ingatlanok

Porva
Eladó családi ház

Porva

74.6 M Ft
3 szoba
115 m²
Pálfa
Eladó családi ház

Pálfa

22 M Ft
3 szoba
98 m²
Tápiógyörgye
Eladó családi ház

Tápiógyörgye

29.49 M Ft
2 szoba
60 m²
Lengyeltóti
Eladó családi ház

Lengyeltóti

26.5 M Ft
2 szoba
85 m²
Fülöpszállás
Eladó családi ház

Fülöpszállás

299 M Ft
14 + 5 szoba
680 m²
Ságvár
Eladó családi ház

Ságvár

53.9 M Ft
3 szoba
75 m²
Szentmártonkáta
Eladó családi ház

Szentmártonkáta

35 M Ft
3 szoba
70 m²
Nagyréde
Eladó családi ház

Nagyréde

69.5 M Ft
4 szoba
110 m²