City Pearl

Eladó családi ház
Budapest, XVIII. kerület, Almáskert

1/2
149 900 000 Ft149.9 M Ft 914 024 Ft/m2
4 szoba
164 m2
építés éve:2026

Részletes adatok

Telekméret: 500 m2
Fűtés: Egyéb
Energetikai besorolás: Nem adta meg a hirdető

Az OTP Bank lakáshitel ajánlataFizetett hirdetés

+36 1 690
Zöldi Norbert
referens

Érdekel az OTP Bank kedvezményes lakáshitel ajánlata? *

* A kérdésre „Igen” válasz bejelölése esetén, az „Üzenet küldése” gombra kattintva kijelentem, hogy az OTP Bank Nyrt. Adatkezelési tájékoztatójának tartalmát megismertem és tudomásul vettem.

Eladó családi ház leírása

18.kerület legkedveltebb részén, Almáskertben

Almáskertben modern környezetben eladó új építésű ikerházfél.
A kivitelező sok éves múlttal és rengeteg elégedett ügyféllel rendelkezik, referenciák akár itt a lakóparkban is megtekinthetők.

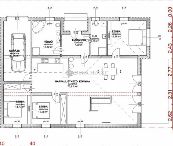
164,25 négyzetméter hasznos lakótérrel rendelkezik, mely egy 500 négyzetméteres telken fekszik. Nappali + 3 hálószobával rendelkezik, a szobák minimum 12 négyzetméteresek.
A földszinten elhelyezkedő 73 négyzetméteres nappali+amerikai konyha tágas életteret biztosít, melyből egy csodás privát teraszon keresztül juthatunk ki a saját privát kertünkbe.

Autóval garázsban és az udvaron is lehet parkolni.

Műszaki adatok:
-30-as Prototherm tégla falazat
-15 cm-es homlokzati szigetelés
-29 cm-es szigetelés az aljzat felől
-35 cm-es szigetelés a födém felől
-3 rétegű műanyag nyílászárók, fehér színnel
-a tető szerkezete fafödém cserépfedéssel
-elektromos garázskapu fehér színnel
-elektromos kertikapu
-Hőszivattyús fűtés, padlófűtéssel
-1db hűtő-fűtő klíma
-mosókonyha
-riasztó és kamerarendszer
-térkövezett autóbeálló

Burkolatok/beltéri ajtók/szaniterek még választhatóak.

A HÁZAK CSAK GARÁZZSAL ÉRINTKEZNEK!

A lakópark teljesen új modern környezet, összetartó közösség jellemzi. Közlekedést tekintve autóval a Gyorsforgalmi út, Üllői út, Gyömrői út az M0-ás, M5-ös és a 4-es út mind-mind maximum 5 perc alatt megközelíthető.

Tömegközlekedés 3 perc sétára, ahonnan a buszok Kőbánya Kispest vasútállomásig, illetve Határ úti metrómegálló, Ferihegyi vasútállomás is megközelíthető. 10 perc busz távolságra Ferihegyi vasútállomás, melyről a Nyugati pályaudvarig közlekedhetünk. Séta távolságra: Gyógyszertár, Spar, Iskola, Óvoda, Posta

Felkeltette érdeklődését keressen bizalommal a hét bármely napján!
Zöldi Norbert +36709450148

Referencia szám: HZ081612

Hirdetés feltöltve: 2025. 10. 06. Utoljára módosítva: 2025. 12. 10.

4 szobás családi házak ára Budapesten

Ebből az összehasonlításból megtudhatod, hogyan viszonyul a lakás ára a környékbeli családi házak átlagos árához. Ez nem azt jelenti, hogy ennyivel olcsóbb vagy drágább, mint amennyit a lakás ér, hanem hogy ennyivel tér el a környékbeli átlagtól.

Ennek a m² ára
XVIII. kerület m² ár
Budapest m² ár
914 e Ft
986 e Ft 7%
1075 e Ft 15%
Ennek az ára
XVIII. kerület átlagár
Budapest átlagár
149.9 M Ft m Ft
138.2 m Ft -8%
154.1 m Ft 3%

Az ingatlan elhelyezkedése

Cím: Budapest, XVIII. kerület, Almáskert

Eladó ingatlanok a környékről

Eladó családi ház
Eladó családi ház

XVIII. kerület, Bókaytelep

162 M Ft
5 szoba
195 m2
Eladó családi ház
Eladó családi ház

XVIII. kerület, Bókay utca

489 M Ft
4 szoba
295 m2
Eladó téglalakás
Eladó téglalakás

V. kerület, Belváros, Belgrád rakpart

78 M Ft
1 + 1 szoba
42 m2
Eladó téglalakás
Eladó téglalakás

VII. kerület, Belső Erzsébetváros, Rózsa utca

170 M Ft
5 szoba
124 m2
Eladó téglalakás
Eladó téglalakás

XIV. kerület, Kiszugló, Kövér Lajos utca

168 M Ft
3 + 1 szoba
84 m2
Eladó családi ház
Eladó családi ház

XVIII. kerület, Szent Imre kertváros, Üllői út

170 M Ft
3 szoba
284 m2
Eladó téglalakás
Eladó téglalakás

VI. kerület, Külső Terézváros, Szófia utca

112.9 M Ft
4 szoba
103 m2
Eladó téglalakás
Eladó téglalakás

VI. kerület, Külső Terézváros, Szív utca

119.5 M Ft
3 szoba
94 m2
Eladó téglalakás
Eladó téglalakás

VII. kerület, Belső Erzsébetváros, Erzsébet körút

89.9 M Ft
1 + 1 szoba
71 m2
Eladó téglalakás
Eladó téglalakás

XX. kerület

39 M Ft
2 szoba
49 m2
Eladó téglalakás
Eladó téglalakás

XIV. kerület

81.9 M Ft
1 szoba
32 m2
Eladó családi ház
Eladó családi ház

XVIII. kerület, Szemeretelep

145 M Ft
5 + 2 szoba
165 m2
Eladó családi ház
Eladó családi ház

XVIII. kerület, Lónyaytelep, Széchenyi István utca

94.9 M Ft
4 szoba
128 m2
Eladó téglalakás
Eladó téglalakás

IV. kerület, Újpest, Kassai utca

84.9 M Ft
2 + 1 szoba
71 m2
Eladó téglalakás
Eladó téglalakás

XI. kerület, Gellérthegy, Gombócz Zoltán utca

142 M Ft
2 + 1 szoba
71 m2
Eladó családi ház
Eladó családi ház

XVIII. kerület, Darányi Ignác utca

169.9 M Ft
6 szoba
192 m2
Eladó családi ház
Eladó családi ház

XVIII. kerület, Ganztelep, Sió utca

160 M Ft
3 + 1 szoba
156 m2
Eladó családi ház
Eladó családi ház

XVIII. kerület, Kossuth Ferenc telep, Brigád utca

79.99 M Ft
4 szoba
88 m2
Eladó téglalakás
Eladó téglalakás

XXI. kerület, Csepel belváros, Kossuth

59.9 M Ft
2 szoba
42 m2
Eladó családi ház
Eladó családi ház

XVIII. kerület

94.9 M Ft
4 szoba
128 m2
Eladó családi ház
Eladó családi ház

XVIII. kerület, Bókaytelep

158 M Ft
6 szoba
192 m2
Eladó családi ház
Eladó családi ház

XVIII. kerület

289.9 M Ft
11 szoba
300 m2
Eladó téglalakás
Eladó téglalakás

VIII. kerület, Palotanegyed, Rákóczi út

185 M Ft
5 szoba
121 m2
Eladó téglalakás
Eladó téglalakás

III. kerület, Óbuda, Szomolnok utca

89.9 M Ft
2 + 2 szoba
96 m2

Falusi CSOK ingatlanok

Eladó családi ház
Eladó családi ház

Helesfa

17.999 M Ft
2 szoba
74 m2
Eladó családi ház
Eladó családi ház

Nyírábrány

17.9 M Ft
2 szoba
65 m2
Eladó családi ház
Eladó családi ház

Sellye

21.6 M Ft
2 szoba
72 m2
Eladó családi ház
Eladó családi ház

Tiszaroff

12.9 M Ft
3 szoba
87 m2
Eladó családi ház
Eladó családi ház

Mezőlak, Arany János utca

35.7 M Ft
3 szoba
104 m2
Eladó családi ház
Eladó családi ház

Hunya

10.99 M Ft
3 szoba
80 m2
Eladó családi ház
Eladó családi ház

Szentliszló

29.9 M Ft
3 + 2 szoba
157 m2
Eladó családi ház
Eladó családi ház

Somogygeszti

38.6 M Ft
3 + 1 szoba
98 m2