Astora Art House

Eladó családi ház
Budapest, XVII. kerület

+ 17 kép 1/20
244 990 000 Ft244.99 M Ft 1 189 272 Ft/m2
6 szoba
206 m²
építés éve:2002

Részletes adatok

Telekméret: 605 m2
Fűtés: Gázkazán
Közmű: Gáz, Villany, Csatorna
Energetikai besorolás: Nem adta meg a hirdető

Az OTP Bank lakáshitel ajánlataFizetett hirdetés

+36 70 435
Sipos Zoltánné
referens

Érdekel az OTP Bank kedvezményes lakáshitel ajánlata? *

* A kérdésre „Igen” válasz bejelölése esetén, az „Üzenet küldése” gombra kattintva kijelentem, hogy az OTP Bank Nyrt. Adatkezelési tájékoztatójának tartalmát megismertem és tudomásul vettem.

Eladó családi ház leírása

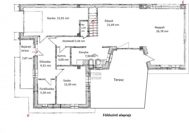
XVII. kerületben a méltán kedvelt Pesti úti lakóparkban kínálunk megvásárlásra egy nappali+ 5 szobás, sok extrával felszerelt kiváló állapotú családi házat 605 nm-es telekkel. Az ingatlan önálló helyrajzi számon van, egyik oldalról nem körbejárható, mivel telekhatáron álló beépítési móddal épült, viszont a szomszédhoz jogilag és szerkezetileg sincs közünk, két főfal van a két ház között és közte légrés. A lakóépület 2002-ben épült, azóta a Tulajdonosa esztétikailag és műszakilag is felújította, így a mai igényeknek maximálisan megfelel. A ház belső elosztása kiváló, nagyobb létszámú családnak, két generációnak is kényelmes Otthona lehet. A földszinten a tágas előszobából nyílik a felújított fürdőszoba, egy nagy méretű szoba, ez az egység külön lakrészként is funkcionálhat. A garázsból közvetlenül a lakásba jutunk. A ház központi része a közel 50 nm-es, napfényben úszó ( DK-i tájolás) nagyobb belmagasságú nappali az étkezővel, innen közvetlen kertkapcsolatunk van a nagy méretű teraszon keresztül. A konyhában új, gépesített (Bosch elektromos főzőlap, mosogatógép, sütő, mikró), német minőségi konyhabútor található, mely a vételár részét képezi. A nappaliban lévő fatüzelésű kandalló gondoskodik télen a meghitt hangulatról. Az emeletre kényelmes lépcső vezet, ahol négy tágas hálószoba, egy újszerű fürdőszoba és egy háztartási helyiség kapott helyet. Itt egy padlástéri helyiség még beépíthető, tárolásra kiválóan alkalmas. A mai energiaérzékeny világban fontos, hogy a rezsi ne legyen magas. Az ingatlan 10 KW-os napelemrendszerrel rendelkezik (még 7 évig szaldós), így a villanyszámla nulla. Elektromos autó töltő lett kiépítve, 5 db inverteres hűtő-fűtő klíma lett felszerelve, a fűtést és a használati melegvizet egy fiatal kondenzációs kazán biztosítja. Az ablakokban az üvegezés nemrég lett cserélve, továbbá a belső ajtók is megújultak, modern, minőségi nyílászárók lettek beépítve. A hátsó, növényekkel körbeültetett intim kertben egy gépesített, épített medence került kialakításra napozóterasszal, a medence mérete 7,5 m x 4 m, hőszivattyú fűti a vizét. A medence mellett kapott helyet a 4 személyes finn szauna, továbbá kerti sütögető, bográcsozó is. A fűtött garázsban egy autó elfér, az előkertben további két autónak van hely, elektromos kapukon történik a bejutás, videós beléptető rendszer lett kialakítva. Az utcai kerítés cserélve lett porfestett alumínium kerítésre. A növényeket a 3 körös automata öntözőrendszer locsolja, a biztonságról riasztó gondoskodik. A környék kifejezetten szép, nívós, kulturált szomszédokkal, csendes kertvárosi környezet. Séta távolságra több bevásárlási lehetőség (Lidl, Spar), benzinkút, nagy játszótér, Home Centerben sok üzlet megtalálható, buszmegálló is rövid időn belül elérhető (97E, 202E).
#eladóház #kertesház #csendes #medence #napelem #szauna #klíma #szigetelt #alacsonyrezsi #kandalló #szépház #lakópark #garázs #modern #eladóingatlan

Ez az ingatlan a "Felező csomag" megbízási portfólióhoz tartozik. Részletek az Otthon Centrum weboldalán.

Hirdetés feltöltve: 2026. 02. 25. Utoljára módosítva: 2026. 05. 11.

Az ingatlan elhelyezkedése

Cím: Budapest, XVII. kerület

Eladó ingatlanok a környékről

XVII. kerület
Eladó családi ház

Budapest, XVII. kerület

349.9 M Ft
6 szoba
420 m²
XVII. kerület, Rákoshegy, Dobos István utca
Eladó családi ház

Budapest, XVII. kerület

350 M Ft
3 + 1 szoba
212 m²
XIX. kerület
Eladó családi ház

Budapest, XIX. kerület

79.99 M Ft
2 + 1 szoba
73 m²
XVII. kerület
Eladó családi ház

Budapest, XVII. kerület

256 M Ft
5 szoba
250 m²
XVII. kerület, Rákoscsaba-újtelep, Dallamos utca
Eladó családi ház

Budapest, XVII. kerület

108.9 M Ft
3 szoba
120 m²
XVII. kerület, Rákoskeresztúr, Budapest 17. kerület - kertváros
Eladó családi ház

Budapest, XVII. kerület

180 M Ft
5 szoba
155 m²
XVII. kerület
Eladó családi ház

Budapest, XVII. kerület

350 M Ft
5 szoba
180 m²
XVII. kerület
Eladó családi ház

Budapest, XVII. kerület

295 M Ft
6 szoba
395 m²
XXI. kerület
Eladó panellakás

Budapest, XXI. kerület

46.9 M Ft
1 + 1 szoba
46 m²
XXI. kerület
Eladó téglalakás

Budapest, XXI. kerület

66.9 M Ft
4 szoba
70 m²
XVIII. kerület
Eladó családi ház

Budapest, XVIII. kerület

126 M Ft
6 szoba
196 m²
XVII. kerület
Eladó családi ház

Budapest, XVII. kerület

94.9 M Ft
6 szoba
220 m²
XVII. kerület
Eladó családi ház

Budapest, XVII. kerület

249 M Ft
9 szoba
373 m²
XXI. kerület
Eladó téglalakás

Budapest, XXI. kerület

55.9 M Ft
3 szoba
68 m²
XXI. kerület
Eladó téglalakás

Budapest, XXI. kerület

64.9 M Ft
3 szoba
66 m²
XVII. kerület
Eladó családi ház

Budapest, XVII. kerület

180 M Ft
6 szoba
226 m²
XXI. kerület
Eladó panellakás

Budapest, XXI. kerület

58.5 M Ft
2 + 1 szoba
58 m²
XIX. kerület
Eladó ikerház

Budapest, XIX. kerület

289 M Ft
7 szoba
260 m²
XXI. kerület
Eladó ikerház

Budapest, XXI. kerület

179.9 M Ft
4 szoba
171 m²
XVII. kerület, Rákoskeresztúr
Eladó családi ház

Budapest, XVII. kerület

162 M Ft
6 szoba
227 m²
XV. kerület
Eladó téglalakás

Budapest, XV. kerület

54.9 M Ft
2 szoba
42 m²
XVII. kerület
Eladó családi ház

Budapest, XVII. kerület

110 M Ft
5 szoba
150 m²
XVII. kerület
Eladó családi ház

Budapest, XVII. kerület

120 M Ft
4 + 1 szoba
150 m²
XXI. kerület
Eladó panellakás

Budapest, XXI. kerület

66.5 M Ft
2 szoba
63 m²

Falusi CSOK ingatlanok

Badacsonytomaj
Eladó családi ház

Badacsonytomaj

285 M Ft
4 szoba
230 m²
Fonyód, Rózsa utca
Eladó ikerház

Fonyód

105 M Ft
5 szoba
134 m²
Fonyód
Eladó téglalakás

Fonyód

175 M Ft
3 szoba
79 m²
Csárdaszállás
Eladó családi ház

Csárdaszállás

11.99 M Ft
3 + 2 szoba
100 m²
Tab, Rákóczi utca 45
Eladó családi ház

Tab

17.13 M Ft
1 + 1 szoba
105 m²
Balatonkenese, Széchenyi utca
Eladó téglalakás

Balatonkenese

129.9 M Ft
3 szoba
83 m²
Csurgó
Eladó téglalakás

Csurgó

12.5 M Ft
2 szoba
54 m²
Győrság
Eladó családi ház

Győrság

89.9 M Ft
4 szoba
92 m²