Avico

Eladó családi ház
Budapest, XVI. kerület, Mátyásföldi repülőtér közelében

+ 17 kép 1/20
160 000 000 Ft160 M Ft 1 095 890 Ft/m2
4 szoba
146 m2
építés éve:1950

Részletes adatok

Állapot: Újszerű
Telekméret: 936 m2
Fűtés: Gázkazán
Parkolás: Kocsibeálló
Közmű: Víz, Gáz, Villany, Csatorna
Energetikai besorolás: Nem adta meg a hirdető

Az OTP Bank lakáshitel ajánlataFizetett hirdetés

+36 70 953
Hegedűs Irén
Balla Ingatlan - XVI. kerület, Kistarcsa, Csömör, Kerepes

Érdekel az OTP Bank kedvezményes lakáshitel ajánlata? *

* A kérdésre „Igen” válasz bejelölése esetén, az „Üzenet küldése” gombra kattintva kijelentem, hogy az OTP Bank Nyrt. Adatkezelési tájékoztatójának tartalmát megismertem és tudomásul vettem.

Eladó családi ház leírása

AZONNAL KÖLTÖZHETŐ ÖNÁLLÓ, FÖLDSZINTES, KÉTGENERÁCIÓS, FELÚJÍTOTT CSALÁDI HÁZ NAGY TELEKKEL !

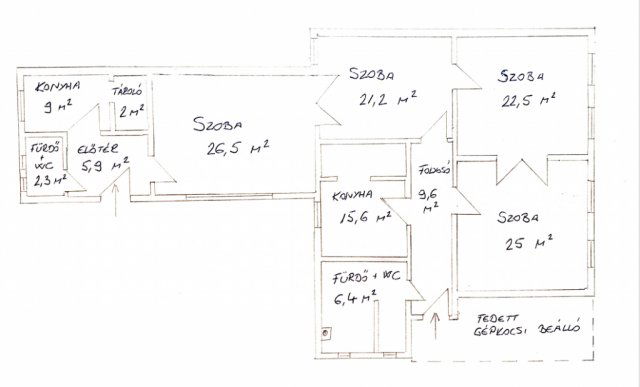
XVI. Mátyásföld központi részén eladó egy földszintes, 146 m2-es, kétgenerációs, teljes felújításon átesett, azonnal költözhető családi ház.

A 936 m2-es telekre az 1950-es években, kisméretű tömör téglából épült a 4 szobás, két konyhás és két fürdőszobás masszív, beton alapra épült családi ház.
A nagyméretű szobák: két 5x5m, egy 5x4,5m és egy 5,25x5,25 m.
A belmagasság 3,40m.

A két bejáratnak és a dupla komfortnak köszönhetően igény szerint leválasztható két különálló lakássá.
A felújítás mindenre kiterjedt, kivéve a járólapokat, a hidegburkolatú helyiségekben.
A külső nyílászárók és a bejárati ajtók műanyagra lettek cserélve, redőnnyel szereltek.
Kívülről 10 cm grafitos szigeteléssel, a padlás födém 30 cm kőzetgyapot szigeteléssel lett ellátva.
Az elektromos hálózat 2x20 A, éjszakai áram is van, a felújítási munka dokumentációja hozzáférhető.
A vízvezeték rendszer szintén fel lett újítva.
Az egész ház fűtését egy 5 éves Wiessmann kombi kondenzációs kazán látja el.
A két lakás elektromos fogyasztása, illetve a vízfogyasztása almérőn keresztül számolható el.

A kert ápolt, rengeteg termő gyümölcsfával, alma, körte, barack, cseresznye, meggy, szilva, füge...
A felszerelt kerti locsolási vízmérő által gazdaságosabb az öntözés.
A kert végében egy kis tégla épület még felújítás alatt, itt kaphatnak helyet a kerti szerszámok, kerti bútorok.
A főépület alatt egy száraz, kb. 12m2-es pince található.

A parkolást egy fedett, és egy nyitott autóbeálló teszi lehetővé, illetve a ház előtt az utcán is díjmentesen lehet parkolni.

Nagycsaládosoknak, összeköltözőknek, de vállalkozás céljából is jó választás. Irodának, orvosi rendelőnek, bemutatóteremnek stb...

A közlekedés kiváló, több tömegközlekedési eszközzel is el lehet jutni 15 perc alatt az Örs vezér terére, illetve az aglomerációba.
Számtalan vásárlási lehetőség, iskola, óvoda, orvosi tendelő, gyógyszertár percek alatt elérhető.

A ház azonnal költözhető, az új tulajdonosnak csak konyhabútort kell vásárolnia, egyéb ráfordítással nem kell számolnia.

Megtekintési szándékával a hét bármely napján hívható vagyok.

Ha esetleg saját lakásának eladásában is tudnánk segíteni, kérem keressen bizalommal! Cégünk piacvezetőként már akár 2,5%-os közvetítői díjért is segít az értékesítésben!

Hirdetés feltöltve: 2025. 11. 12.

4 szobás családi házak ára Budapesten

Ebből az összehasonlításból megtudhatod, hogyan viszonyul a lakás ára a környékbeli családi házak átlagos árához. Ez nem azt jelenti, hogy ennyivel olcsóbb vagy drágább, mint amennyit a lakás ér, hanem hogy ennyivel tér el a környékbeli átlagtól.

Ennek a m² ára
XVI. kerület m² ár
Budapest m² ár
1096 e Ft
1094 e Ft 0%
1023 e Ft -7%
Ennek az ára
XVI. kerület átlagár
Budapest átlagár
160 M Ft m Ft
169.3 m Ft 5%
151.5 m Ft -6%

Az ingatlan elhelyezkedése

Cím: Budapest, XVI. kerület, Mátyásföldi repülőtér közelében

Eladó ingatlanok a környékről

Eladó téglalakás
Eladó téglalakás

VI. kerület, Külső Terézváros, Szív utca

119.5 M Ft
3 szoba
94 m2
Eladó téglalakás
Eladó téglalakás

XIV. kerület, Alsórákos

41.9 M Ft
1 szoba
29 m2
Eladó családi ház
Eladó családi ház

XVI. kerület, Sashalom

257 M Ft
5 + 1 szoba
208 m2
Eladó családi ház
Eladó családi ház

XVI. kerület, Rákosszentmihály

209 M Ft
7 szoba
270 m2
Eladó téglalakás
Eladó téglalakás

VI. kerület, Külső Terézváros, Szófia utca

119.9 M Ft
4 szoba
103 m2
Eladó téglalakás
Eladó téglalakás

V. kerület, Belváros, Belgrád rakpart

78 M Ft
1 + 1 szoba
42 m2
Eladó családi ház
Eladó családi ház

XVI. kerület, Rákosszentmihály

269.99 M Ft
6 szoba
360 m2
Eladó téglalakás
Eladó téglalakás

I. kerület, Krisztinaváros, Kosciuszkó Tádé utca

48 M Ft
1 szoba
30 m2
Eladó téglalakás
Eladó téglalakás

X. kerület

75.9 M Ft
2 szoba
55 m2
Eladó családi ház
Eladó családi ház

XVI. kerület, Rákosszentmihály, Csömöri út

94.99 M Ft
3 szoba
134 m2
Eladó téglalakás
Eladó téglalakás

VII. kerület, Belső Erzsébetváros, Rózsa utca

170 M Ft
5 szoba
124 m2
Eladó családi ház
Eladó családi ház

XVI. kerület, Rákosszentmihály

360 M Ft
5 + 1 szoba
316 m2
Eladó téglalakás
Eladó téglalakás

XIII. kerület, Angyalföld, Fiastyúk utca

41.99 M Ft
1 + 1 szoba
34 m2
Eladó téglalakás
Eladó téglalakás

VII. kerület, Belső Erzsébetváros, Erzsébet körút

160 M Ft
3 szoba
88 m2
Eladó családi ház
Eladó családi ház

XVI. kerület

260 M Ft
5 szoba
290 m2
Eladó családi ház
Eladó családi ház

XVI. kerület, Mátyásföld

370 M Ft
3 + 2 szoba
715 m2
Eladó téglalakás
Eladó téglalakás

III. kerület, Óbuda, Szomolnok utca

89.9 M Ft
2 + 2 szoba
96 m2
Eladó családi ház
Eladó családi ház

XVI. kerület

220 M Ft
5 szoba
330 m2
Eladó családi ház
Eladó családi ház

XVI. kerület

180 M Ft
1 szoba
160 m2
Eladó téglalakás
Eladó téglalakás

VIII. kerület, Palotanegyed, Rákóczi út

190 M Ft
5 szoba
121 m2
Eladó családi ház
Eladó családi ház

XVI. kerület

360 M Ft
6 szoba
210 m2
Eladó téglalakás
Eladó téglalakás

V. kerület, Belváros

269 M Ft
3 szoba
91 m2
Eladó családi ház
Eladó családi ház

XVI. kerület, Rákosszentmihály, Iskola utca

280 M Ft
8 szoba
480 m2
Eladó családi ház
Eladó családi ház

XVI. kerület, Mátyásföld-Petőfikert

79.9 M Ft
3 szoba
85 m2

Falusi CSOK ingatlanok

Eladó ikerház
Eladó ikerház

Szigetcsép

88.9 M Ft
5 szoba
134 m2
Eladó családi ház
Eladó családi ház

Szigliget

125 M Ft
2 + 2 szoba
137 m2
Eladó családi ház
Eladó családi ház

Nemeskolta

14 M Ft
2 szoba
75 m2
Eladó családi ház
Eladó családi ház

Alattyán

8.5 M Ft
1 + 1 szoba
70 m2
Eladó családi ház
Eladó családi ház

Iváncsa

73.9 M Ft
1 + 3 szoba
97 m2
Eladó családi ház
Eladó családi ház

Kemeneshőgyész

8 M Ft
2 szoba
60 m2
Eladó családi ház
Eladó családi ház

Katymár

6.7 M Ft
4 szoba
136 m2
Eladó családi ház
Eladó családi ház

Mernye

14.9 M Ft
2 szoba
61 m2