Astora Art House

Eladó családi ház
Budapest, II. kerület

+ 17 kép 1/20
570 000 000 Ft570 M Ft 2 651 163 Ft/m2
5 szoba
215 m²
építés éve:2025

Részletes adatok

Állapot: Újszerű
Telekméret: 520 m2
Fűtés: Egyéb
Komfort: Összkomfortos
Energetikai besorolás: Nem adta meg a hirdető

Az OTP Bank lakáshitel ajánlataFizetett hirdetés

+36 70 465
Fodor Tivadar
referens

Érdekel az OTP Bank kedvezményes lakáshitel ajánlata? *

* A kérdésre „Igen” válasz bejelölése esetén, az „Üzenet küldése” gombra kattintva kijelentem, hogy az OTP Bank Nyrt. Adatkezelési tájékoztatójának tartalmát megismertem és tudomásul vettem.

Eladó családi ház leírása

Újépítésű családi ház saját medencével, parkosított környezetben
ÜDV ITTHON!

Letisztult, kortárs építészet, valódi zöld környezet és magas műszaki tartalom – egy önálló családi otthon, amely a kerttel átgondolt egységet alkot.

AZ ÉPÜLET ÉS KÖRNYEZET
Három önálló épület egy nagy telken (önálló helyrajzi számon), igényesen parkosított környezetben:
- gondosan megtervezett növényzet
- gyepfelületek
- automata öntözőrendszerrel ellátott kert
- 6×3 méteres medence - otthoni wellness a nappali teraszáról

Egy épület eladó már csak!
FŐBB ADATOK
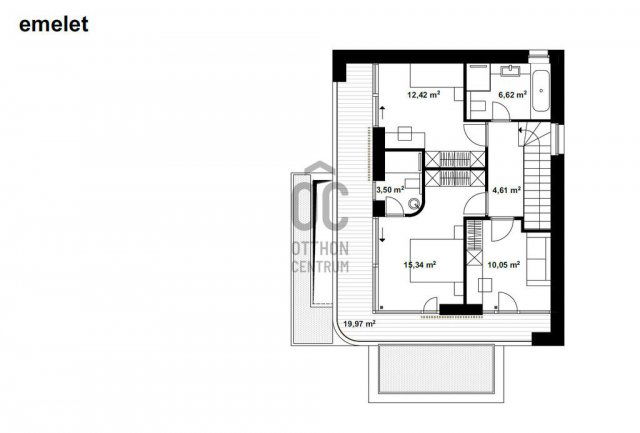
- Nettó hasznos alapterület: 193 m²
- Terasz: 44 m²
- Különálló medence: 18 m²
- Bruttó: 215 m²
- Saját, kizárólagos használatú privát kert: 520 m²

Funkcionális elosztás:
- Nappali + 4 szoba
- 2 fürdőszoba
- 1 külön WC
- Tároló
- Fűtött garázs (3 autónak)
- Mosókonyha
- Gépészeti helyiség

MŰSZAKI TARTALOM – HŐSZIVATTYÚ, KOMFORT, ENERGIAHATÉKONYSÁG
- Önálló hőszivattyús rendszer
- Szobánként külön vezérelhető mennyezethűtés
- Padlófűtés a kiegyenlített hőérzetért
- 30-as Porotherm X-Therm „okostégla” falszerkezet
- 20 cm Dryvit hőszigetelés – korszerű, energiahatékony épületburok

KULCSRAKÉSZ – PRÉMIUM RÉSZLETEKKEL
Az épület elkészült, az ár tartalmazza:
- Belsőépítész által tervezett, egységes belső koncepció
- Asztalos által készített egyedi beltéri ajtók
- Fürdőszobai beépített szekrények
- Prémium TRES csaptelepek
- Gépesített NOBILIA konyhabútor
- Kültéren: parkosítás, öntözőrendszer, saját privát medence

KINEK AJÁNLOM?
Annak, aki:
- újépítésű házat, komplett életteret keres,
- értékeli a magas műszaki tartalmat és az alacsonyabb üzemeltetési költségeket,
- fontosnak tartja a privát kertet és a saját medencét,
- hosszú távra, értékálló, prémium otthonban gondolkodik.

Önnek nem mindennapos egy ilyen ingatlan megvásárlása, nekem minden napom erről szól.
Ha szeretné részletesen átbeszélni a műszaki tartalmat és a személyre szabási lehetőségeket, keressen bizalommal – nézzük meg együtt, mit adhat Önnek ez az otthon.

Budapest, Buda, II. kerület, 2. kerület, Remetekertváros, eladó ház, újépítésű, 5 szoba, nappali és 4 háló, 2 fürdő, vendég wc, 3 állásos garázs, nagy terasz, medence

Az energetikai tanúsítvány készítése folyamatban van, amint rendelkezésre áll, úgy azzal a hirdetés frissítésre kerül.

Hirdetés feltöltve: 2026. 03. 21. Utoljára módosítva: 2026. 05. 13.

5 szobás családi házak ára Budapesten

Ebből az összehasonlításból megtudhatod, hogyan viszonyul a lakás ára a környékbeli családi házak átlagos árához. Ez nem azt jelenti, hogy ennyivel olcsóbb vagy drágább, mint amennyit a lakás ér, hanem hogy ennyivel tér el a környékbeli átlagtól.

Ennek a m² ára
II. kerület m² ár
Budapest m² ár
2651 e Ft
1354 e Ft -96%
961 e Ft -176%
Ennek az ára
II. kerület átlagár
Budapest átlagár
570 M Ft m Ft
412.1 m Ft -38%
236.6 m Ft -141%

Az ingatlan elhelyezkedése

Cím: Budapest, II. kerület

Eladó ingatlanok a környékről

IX. kerület, Ferencváros, Ráday utca
Eladó téglalakás

Budapest, IX. kerület

165 M Ft
3 szoba
78 m²
II. kerület
Eladó családi ház

Budapest, II. kerület

1365.074 M Ft
12 szoba
913 m²
II. kerület
Eladó családi ház

Budapest, II. kerület

1464 M Ft
8 szoba
500 m²
II. kerület
Eladó családi ház

Budapest, II. kerület

3300 M Ft
8 szoba
1100 m²
XIV. kerület
Eladó panellakás

Budapest, XIV. kerület

68.9 M Ft
3 szoba
55 m²
II. kerület
Eladó családi ház

Budapest, II. kerület

449 M Ft
730 m²
350 m²
II. kerület
Eladó családi ház

Budapest, II. kerület

379 M Ft
4 szoba
300 m²
II. kerület
Eladó családi ház

Budapest, II. kerület

543 M Ft
5 szoba
193 m²
II. kerület
Eladó családi ház

Budapest, II. kerület

275 M Ft
8 szoba
392 m²
II. kerület, Remetekertváros, Kertváros utca
Eladó családi ház

Budapest, II. kerület

240 M Ft
9 szoba
286 m²
XIII. kerület
Eladó téglalakás

Budapest, XIII. kerület

142 M Ft
4 szoba
126 m²
II. kerület, Adyliget, Irányi Dániel utca
Eladó családi ház

Budapest, II. kerület

455 M Ft
6 szoba
300 m²
XVI. kerület
Eladó ikerház

Budapest, XVI. kerület

239 M Ft
4 szoba
160 m²
II. kerület
Eladó családi ház

Budapest, II. kerület

549 M Ft
5 szoba
300 m²
II. kerület
Eladó családi ház

Budapest, II. kerület

498 M Ft
8 szoba
650 m²
XVIII. kerület
Eladó családi ház

Budapest, XVIII. kerület

98 M Ft
6 szoba
150 m²
II. kerület
Eladó családi ház

Budapest, II. kerület

2514.61 M Ft
5 szoba
840 m²
II. kerület
Eladó családi ház

Budapest, II. kerület

1756.8 M Ft
9 szoba
550 m²
III. kerület, Csillaghegy
Eladó telek

Budapest, III. kerület

199.5 M Ft
977 m²
0 m²
XIV. kerület
Eladó téglalakás

Budapest, XIV. kerület

79.6 M Ft
2 szoba
46 m²
XII. kerület, Mártonhegy, Németvölgyi
Eladó téglalakás

Budapest, XII. kerület

45 M Ft
1 szoba
20 m²
II. kerület
Eladó családi ház

Budapest, II. kerület

916.037 M Ft
5 szoba
700 m²
II. kerület
Eladó családi ház

Budapest, II. kerület

1500 M Ft
14 + 1 szoba
875 m²
III. kerület
Eladó családi ház

Budapest, III. kerület

375 M Ft
3 szoba
165 m²

Falusi CSOK ingatlanok

Győrság
Eladó családi ház

Győrság

79.9 M Ft
4 szoba
92 m²
Villány
Eladó családi ház

Villány

31 M Ft
1 szoba
35 m²
Balatonszemes
Eladó téglalakás

Balatonszemes

125.2 M Ft
2 szoba
50 m²
Ónod
Eladó családi ház

Ónod

14.999 M Ft
3 szoba
80 m²
Röszke
Eladó családi ház

Röszke

69.99 M Ft
4 szoba
99 m²
Balatonszemes
Eladó téglalakás

Balatonszemes

110.9 M Ft
2 szoba
0 m²
Balatonszemes
Eladó téglalakás

Balatonszemes

91.5 M Ft
2 szoba
0 m²
Törtel
Eladó családi ház

Törtel

32.5 M Ft
3 szoba
66 m²