Seven Pearl

Eladó családi ház
Békéscsaba

+ 17 kép 1/20
39 900 000 Ft39.9 M Ft 546 575 Ft/m2
3 szoba
73 m²
építés éve:1970

Részletes adatok

Állapot: Átlagos
Telekméret: 933 m2
Fűtés: Gázkazán
Parkolás: Garázs
Közmű: Víz, Gáz, Villany, Csatorna, Szélessáv
Energetikai besorolás: F

Az OTP Bank lakáshitel ajánlataFizetett hirdetés

+367053221
Namaste Ingatlan
referens

Érdekel az OTP Bank kedvezményes lakáshitel ajánlata? *

* A kérdésre „Igen” válasz bejelölése esetén, az „Üzenet küldése” gombra kattintva kijelentem, hogy az OTP Bank Nyrt. Adatkezelési tájékoztatójának tartalmát megismertem és tudomásul vettem.

Eladó családi ház leírása

VÁROSKÖZPONT KÖZELI , JÓ ADOTTSÁGÚ , KELLEMES KÖRNYEZETBEN , SZÉLES-SZELLŐS UTCÁBAN LÉVŐ KÁDÁRKOCKA ELADÓ !
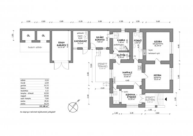
Belvárostól autóval 2 percre , kellemes szomszédság közt várja új gazdáját , egy 70-ben épült, összkomfortos , jó szerkezeti állapotú , előkertes , minimálisan modernizált ( 3 db új redőnyözött ablak + egyik szoba lam. parketta ) ÉK-i tájolású , 73 m2-es kádárkocka , napos terasszal , nyári konyhával , fűtött garázzsal , 2. kocsibeállóval és gazdasági épületekkel , rendezett , gondozott 933 m2-es telken.
Lokáció : Békés vármegye , Békéscsaba , a központtól bő 1 km-re a Hétvezér utcában
Közeli városok : Gyula 15 , Békés 10 , Szarvas és Gyomaendrőd 40 km , Közvetlen M44-es autóút csatlakozás
Adottságai , tulajdonságai :
- beton alapra , tégla lábazattal és jelenleg is száraz vályog falazattal épült , fagerendás-sártapasztású födém- és tetőszerkezete is korát meghazudtoló állapotú , statikailag kifogástalan , ezt tanúsítja a hibátlan homlokzati kőporozás is
- a vályog falazat egész évben kellemes klímát biztosít
- virágoskertnek helyet adó előkerttel épült , a telek kerítéssel teljesen körbekerített
- 73 m2-es , 2 szoba-nappalis beosztású ( némi fantáziával 3+nappalissá alakítható ) , napos étkezőkonyhával , tusolós- WC-s fürdőszobával , kamrával , előtérrel + egy beépíthető fedett előtérrel , hátsó bejárata előtt 11 m2-es napos terasszal és a kamrából nyíló 7,8 m2-es nyári konyhával rendelkezik
- egyéb helyiségek , épületek : 6,11 m2-es külön bejáratú kazánház , 13,7 m2-es fűtött garázs , góré , számos különböző ( pl. kutyakenelnek is alkalmas ) tároló helyiség , a kocsibejáróval szemben könnyűszerkezetes betonozott 23,5 m2-es garázs-műhely épület
- normál , 3 m-es a belmagasság , szellős terek jellemzik
- fűtését gáz- és vegyes cirkó fűtés , gázkonvektor és egy gyönyörű cserépkályha látja el
- a meleg vizet kedvezményes éjszakai áramról működő villanybojler biztosítja
- 16 Amper ( 32 Amperig díjmentesen bővíthető ) + éjszakai áram , műa. csőben futó villamos hálózat
- az épületek mentén járdázott , a kocsibejáró betonozott , kúpcserepek kenve
- a hátsó udvar , kerítéssel szeparált , gyümölcsösnek , konyhakertnek kiváló , a terület fúrt kútról gazdaságosan locsolható
- az udvarban , utcán : szórtan örökzöldek és termő gyümölcsfák találhatóak
1 km-es sugarú körön belül : kórház , ALDI , benzinkút , liget-játszótér , óvoda , ált. és középiskolák , orvosi centrum , számos szolgáltató , szoc. intézmény , sportolási lehetőségek , a belvárosban , a belvárosban szinte minden megtalálható
Ajánlom : fiataloknak , 1-2 gyermekes családnak és energikus idősebbeknek is egyaránt , akik nem ijednek meg a felújítástól , saját ízlésük szerint kialakított otthonban éreznék igazán jól magukat !
Finanszírozható : OSP ( 3 % ) , CSOK+ , Babaváró , munkás és piaci hitel ill. ezek kombinációjának segítségével ( díjmentes bankfüggetlen hitelügyintéző , a felújításhoz megbízható kivitelező igény esetén biztosított , a jogi háttérrel , energikussal és szinte minden egyéb esetlegesen szükséges szakemberrel együtt
Térképszelvénye banki szempontból lényeges részeiben kifogástalan
1/1-es tulajdon , tehermentes
IR.ÁR: 39,99 M Ft
Érd. és személyes megtekintés kérhető a 06-30-627-7452-es számon
H-P : 9-19 , Sz: 9-14 óra között

Hirdetés feltöltve: 2026. 04. 02. Utoljára módosítva: 2026. 04. 22.

3 szobás családi házak ára Békéscsabán

Ebből az összehasonlításból megtudhatod, hogyan viszonyul a lakás ára a környékbeli családi házak átlagos árához. Ez nem azt jelenti, hogy ennyivel olcsóbb vagy drágább, mint amennyit a lakás ér, hanem hogy ennyivel tér el a környékbeli átlagtól.

Ennek a m² ára
Békéscsaba m² ár
547 e Ft
480 e Ft -14%
Ennek az ára
Békéscsaba átlagár
39.9 M Ft m Ft
54.9 m Ft 27%

Az ingatlan elhelyezkedése

Cím: Békéscsaba

Eladó családi házak a környékről

Békéscsaba
Eladó családi ház

Békéscsaba

35 M Ft
2 + 6 szoba
152 m²
Békéscsaba
Eladó családi ház

Békéscsaba

285 M Ft
13 szoba
600 m²
Mezőkovácsháza
Eladó családi ház

Mezőkovácsháza

52.9 M Ft
7 szoba
400 m²
Sarkad
Eladó családi ház

Sarkad

18.7 M Ft
4 szoba
103 m²
Sarkad
Eladó családi ház

Sarkad

15 M Ft
3 szoba
110 m²
Békéscsaba
Eladó családi ház

Békéscsaba

119 M Ft
4 szoba
162 m²
Gyomaendrőd
Eladó családi ház

Gyomaendrőd

6.8 M Ft
1 szoba
60 m²
Elek
Eladó családi ház

Elek

28.7 M Ft
12 + 6 szoba
390 m²
Tótkomlós
Eladó családi ház

Tótkomlós

15 M Ft
3 szoba
100 m²
Sarkad
Eladó családi ház

Sarkad

15 M Ft
4 szoba
150 m²
Békéscsaba
Eladó családi ház

Békéscsaba

130 M Ft
9 + 2 szoba
293 m²
Gyula, Vár utca
Eladó családi ház

Gyula

85.9 M Ft
4 szoba
180 m²
Békéscsaba
Eladó családi ház

Békéscsaba

59.5 M Ft
4 szoba
155 m²
Békéscsaba
Eladó családi ház

Békéscsaba

79.325 M Ft
4 szoba
95 m²
Békéscsaba
Eladó családi ház

Békéscsaba

99.5 M Ft
8 szoba
290 m²
Békéscsaba
Eladó családi ház

Békéscsaba

84.9 M Ft
4 szoba
123 m²
Sarkad
Eladó családi ház

Sarkad

8.7 M Ft
2 szoba
90 m²
Békéscsaba
Eladó családi ház

Békéscsaba

79.325 M Ft
4 szoba
95 m²
Tótkomlós
Eladó családi ház

Tótkomlós

13 M Ft
3 szoba
100 m²
Sarkad
Eladó családi ház

Sarkad

16.95 M Ft
9 szoba
170 m²
Elek
Eladó családi ház

Elek

6.9 M Ft
2 + 1 szoba
70 m²
Békéscsaba
Eladó családi ház

Békéscsaba

59.9 M Ft
7 szoba
200 m²
Doboz
Eladó családi ház

Doboz

10 M Ft
4 szoba
100 m²
Békéscsaba
Eladó családi ház

Békéscsaba

99.5 M Ft
8 szoba
290 m²

Falusi CSOK ingatlanok

Bag
Eladó családi ház

Bag

16.9 M Ft
6 szoba
160 m²
Verseg
Eladó családi ház

Verseg

32.5 M Ft
1 + 1 szoba
42 m²
Somogyszentpál
Eladó családi ház

Somogyszentpál

25.3 M Ft
3 szoba
80 m²
Bükkábrány
Eladó családi ház

Bükkábrány

37.5 M Ft
5 + 1 szoba
180 m²
Sásd
Eladó családi ház

Sásd

35.9 M Ft
4 + 1 szoba
71 m²
Nyáregyháza
Eladó családi ház

Nyáregyháza

15.9 M Ft
2 szoba
39 m²
Mályi
Eladó családi ház

Mályi

105 M Ft
6 szoba
267 m²
Badacsonytördemic
Eladó családi ház

Badacsonytördemic

86 M Ft
4 szoba
110 m²