Stay Family Park

Kiadó téglalakás, albérlet
Debrecen, földszint

+ 17 kép 1/20
590 000 Ft590 E Ft / hó 5 364 Ft/m2
3 szoba
110 m2
földszint
építés éve:2020

Részletes adatok

Állapot: Újszerű
Telekméret: 300 m2
Fűtés: Gázkazán
Energetikai besorolás: Nem adta meg a hirdető

Az OTP Bank lakáshitel ajánlataFizetett hirdetés

Hitelösszeg 10 millió Ft
Futamidő 20 év
Induló törlesztőrészlet 67 508 Ft
Törlesztőrészlet a 13. hónaptól 86 071 Ft
THM 8,6 %

A tájékoztatás nem teljes körű és nem minősül ajánlattételnek. Az OTP Évnyerő Lakáshitelei 1 éves türelmi idős kölcsönök, amellyel az első 12 hónapban alacsonyabb a havi törlesztőrészlet. A tőke törlesztését a 13. hónaptól kell megkezdeni.

    Részletes kalkuláció
    +36 20 213
    Oláhné Németi Gréta
    Debrecen Kürtös utca

    Érdekel az OTP Bank kedvezményes lakáshitel ajánlata? *

    * A kérdésre „Igen” válasz bejelölése esetén, az „Üzenet küldése” gombra kattintva kijelentem, hogy az OTP Bank Nyrt. Adatkezelési tájékoztatójának tartalmát megismertem és tudomásul vettem.

    Kiadó téglalakás, albérlet leírása

    Kiadó modern sorházi lakás Debrecen, Nyulas városrészben!

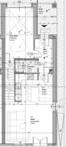
    Debrecen egyik legkedveltebb, modern városrészén, Nyulason kínálunk kiadásra egy 2020-ban épült, 110 m2-es, két szintes sorházi lakást. Az ingatlan egy 300 m2-es telken helyezkedik el, melyhez tágas, kb. 100 m2-es hátsó kert tartozik, tökéletes hely a kikapcsolódásra.

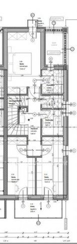
    A földszinten tágas nappali, amerikai konyha, előszoba, fürdőszoba és előtér található, míg az emeleten három külön nyíló szoba, egy második fürdőszoba, valamint az egyik szobában egy gardrób is helyet kapott.

    A lakás igényesen berendezett, modern bútorokkal és korszerű gépekkel felszerelt, így azonnal költözhető. A padlófűtés kényelmes, energiatakarékos megoldást nyújt a hűvösebb napokon, míg a klíma a nyári napokon gondoskodik a kellemes hőmérsékletről.
    Az ingatlanhoz tartozik egy, fűtött garázs, ami kényelmes parkolást biztosít egy autó számára.

    * Elhelyezkedés:
    Nyulas városrész az egyik legkedveltebb terület Debrecenben, csendes, biztonságos, mégis közel van mindenhez. A közelben iskola, óvoda, boltok, buszmegálló, valamint az autópálya-felhajtó is gyorsan elérhető.
    A városrészen ingyenes a parkolás.

    * Azonnal költözhető!
    * Kaució: 2 hónap
    * Minimum bérleti idő: 1 év

    Bővebb információért vagy megtekintéssel kapcsolatban keressen bizalomm

    Referencia szám: M314765

    Hirdetés feltöltve: 2025. 10. 15. Utoljára módosítva: 2025. 11. 02.

    3 szobás téglalakások ára Debrecenben

    Ebből az összehasonlításból megtudhatod, hogyan viszonyul a lakás ára a környékbeli téglalakások átlagos árához. Ez nem azt jelenti, hogy ennyivel olcsóbb vagy drágább, mint amennyit a lakás ér, hanem hogy ennyivel tér el a környékbeli átlagtól.

    Ennek a m² ára
    Debrecen m² ár
    5 e Ft
    5 e Ft -15%
    Ennek az ára
    Debrecen átlagár
    590 E Ft / hó m Ft
    0.4 m Ft -63%

    Az ingatlan elhelyezkedése

    Cím: Debrecen, földszint

    Kiadó téglalakások, albérletek a környékről

    Kiadó téglalakás, albérlet
    Kiadó téglalakás, albérlet

    Debrecen

    230 E Ft / hó
    2 szoba
    74 m2
    Kiadó téglalakás, albérlet
    Kiadó téglalakás, albérlet

    Debrecen

    390 E Ft / hó
    2 szoba
    48 m2
    Kiadó téglalakás, albérlet
    Kiadó téglalakás, albérlet

    Debrecen

    399 E Ft / hó
    3 szoba
    114 m2
    Kiadó téglalakás, albérlet
    Kiadó téglalakás, albérlet

    Debrecen

    200 E Ft / hó
    1 szoba
    50 m2
    Kiadó téglalakás, albérlet
    Kiadó téglalakás, albérlet

    Debrecen

    354 E Ft / hó
    2 szoba
    41 m2
    Kiadó téglalakás, albérlet
    Kiadó téglalakás, albérlet

    Debrecen, Belváros, Hatvan utca

    399 E Ft / hó
    3 szoba
    114 m2
    Kiadó téglalakás, albérlet
    Kiadó téglalakás, albérlet

    Debrecen

    230 E Ft / hó
    2 szoba
    67 m2
    Kiadó téglalakás, albérlet
    Kiadó téglalakás, albérlet

    Debrecen

    750 E Ft / hó
    4 szoba
    95 m2
    Kiadó téglalakás, albérlet
    Kiadó téglalakás, albérlet

    Debrecen

    550 E Ft / hó
    3 szoba
    100 m2
    Kiadó téglalakás, albérlet
    Kiadó téglalakás, albérlet

    Debrecen, Belváros, Kossuth utca

    1601 E Ft / hó
    4 szoba
    116 m2
    Kiadó téglalakás, albérlet
    Kiadó téglalakás, albérlet

    Debrecen

    400 E Ft / hó
    2 szoba
    54 m2
    Kiadó téglalakás, albérlet
    Kiadó téglalakás, albérlet

    Debrecen, Nagyerdőalja, Apafi utca

    350 E Ft / hó
    2 szoba
    67 m2
    Kiadó téglalakás, albérlet
    Kiadó téglalakás, albérlet

    Debrecen

    230 E Ft / hó
    2 szoba
    67 m2
    Kiadó téglalakás, albérlet
    Kiadó téglalakás, albérlet

    Debrecen

    230 E Ft / hó
    2 szoba
    67 m2
    Kiadó téglalakás, albérlet
    Kiadó téglalakás, albérlet

    Debrecen

    400 E Ft / hó
    2 szoba
    54 m2
    Kiadó téglalakás, albérlet
    Kiadó téglalakás, albérlet

    Debrecen

    720 E Ft / hó
    4 szoba
    140 m2
    Kiadó téglalakás, albérlet
    Kiadó téglalakás, albérlet

    Debrecen

    230 E Ft / hó
    2 szoba
    33 m2
    Kiadó téglalakás, albérlet
    Kiadó téglalakás, albérlet

    Debrecen, Belváros, Kossuth utca

    150 E Ft / hó
    1 szoba
    50 m2
    Kiadó téglalakás, albérlet
    Kiadó téglalakás, albérlet

    Debrecen

    230 E Ft / hó
    2 szoba
    67 m2
    Kiadó téglalakás, albérlet
    Kiadó téglalakás, albérlet

    Debrecen, Belváros, Arany János

    270 E Ft / hó
    3 szoba
    66 m2
    Kiadó téglalakás, albérlet
    Kiadó téglalakás, albérlet

    Debrecen, Vénkert, Dózsa György utca

    300 E Ft / hó
    2 szoba
    54 m2
    Kiadó téglalakás, albérlet
    Kiadó téglalakás, albérlet

    Debrecen

    230 E Ft / hó
    2 szoba
    33 m2
    Kiadó téglalakás, albérlet
    Kiadó téglalakás, albérlet

    Debrecen, Belváros, Kossuth utca

    1601 E Ft / hó
    4 szoba
    116 m2
    Kiadó téglalakás, albérlet
    Kiadó téglalakás, albérlet

    Debrecen

    230 E Ft / hó
    2 szoba
    67 m2

    Falusi CSOK ingatlanok

    Eladó ikerház
    Eladó ikerház

    Balatonakali

    165 M Ft
    4 szoba
    138 m2
    Eladó családi ház
    Eladó családi ház

    Hövej

    149.9 M Ft
    4 szoba
    115 m2
    Eladó családi ház
    Eladó családi ház

    Vilonya

    71.9 M Ft
    5 szoba
    105 m2
    Eladó családi ház
    Eladó családi ház

    Örkény

    58 M Ft
    3 szoba
    135 m2
    Eladó családi ház
    Eladó családi ház

    Szigetújfalu

    120 M Ft
    291 m2
    Eladó családi ház
    Eladó családi ház

    Rédics

    49.9 M Ft
    3 szoba
    107 m2
    Eladó téglalakás
    Eladó téglalakás

    Balatonszemes

    244.5 M Ft
    3 szoba
    107 m2
    Eladó családi ház
    Eladó családi ház

    Ceglédbercel, Iskola utca

    109 M Ft
    5 szoba
    133 m2