Kiadó téglalakás, albérlet
Budapest, XII. kerület, Kissvábhegy, 1. emelet
Részletes adatok
Az OTP Bank lakáshitel ajánlataFizetett hirdetés
A tájékoztatás nem teljes körű és nem minősül ajánlattételnek. Az OTP Évnyerő Lakáshitelei 1 éves türelmi idős kölcsönök, amellyel az első 12 hónapban alacsonyabb a havi törlesztőrészlet. A tőke törlesztését a 13. hónaptól kell megkezdeni.
Kiadó téglalakás, albérlet leírása
PANORÁMA ÉS ZÖLD KÖRNYEZET A BELVÁROS KÖZELÉBEN
KIS-SVÁB-HEGYEN, PANORÁMÁS, TERASZOS LAKÁS KIADÓ
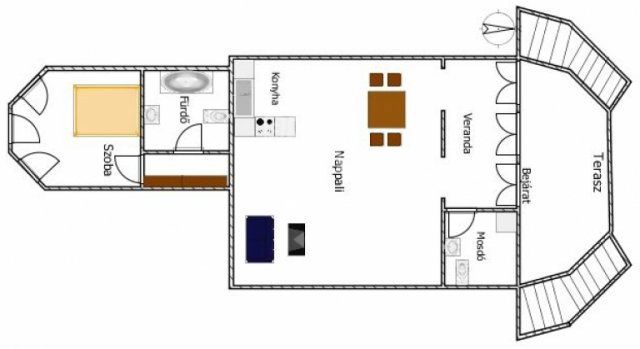
A XII. kerületben, jó tömegközlekedéssel rendelkező, csendes környéken kiadó egy 2 szobás, kertre néző lakás 15 nm-es panorámás terasszal.
A lakás egy 3 szintes, 6 lakásos, 1920-as években épült, jó állapotú villaépületben található, nagy kerttel körülvéve.
2008-ban teljes műszaki felújítást végeztek rajta, 2025-ben esztétikai javítást és tisztasági festést kapott.
A nappali, konyha és étkező keleti tájolású, kertre néző, innen nyílik a terasz is.
A fürdőszoba a nappali és hálószoba között található, a bejárat mellett külön háztartási helyiség WC-vel és kézmosóval. Fűtés: cirkó kazán.
A lakás bútorozott, gépesített konyhával és mosógéppel felszerelve.
Közlekedés: busszal és gyalogosan is gyorsan elérhető az Alkotás utca, a Déli pályaudvar és a Széll Kálmán tér.
Azonnal költözhető.
Érdeklődjön, szívesen megmutatom!
ID: 334105 ...TOVÁBBI, TÖBBEZRES INGATLAN KÍNÁLAT: www.gdn-ingatlan.hu - GDN azonosító: 388031
Hirdetés feltöltve: 2025. 10. 02. Utoljára módosítva: 2025. 10. 02.
2 szobás téglalakások ára Budapesten
Ebből az összehasonlításból megtudhatod, hogyan viszonyul a lakás ára a környékbeli téglalakások átlagos árához. Ez nem azt jelenti, hogy ennyivel olcsóbb vagy drágább, mint amennyit a lakás ér, hanem hogy ennyivel tér el a környékbeli átlagtól.
Az ingatlan elhelyezkedése
Cím: Budapest, XII. kerület, Kissvábhegy, 1. emelet
Kiadó ingatlanok, albérletek a környékről

XIII. kerület, Újlipótváros, Katona József utca

XIV. kerület, Kiszugló, Nagy Lajos király útja
