Oasis Residence

Kiadó téglalakás, albérlet
Budapest, VII. kerület, Belső Erzsébetváros, Kertész utca, 3. emelet

+ 8 kép 1/11
280 000 Ft280 E Ft / hó 3 733 Ft/m2
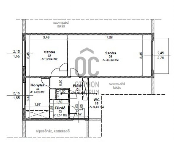
2 szoba
75 m²
3. emelet
építés éve:1890

Részletes adatok

Fűtés: Gázkazán
Emelet: 3. emelet
Közmű: Gáz, Villany, Csatorna
Energetikai besorolás: Nem adta meg a hirdető

Az OTP Bank lakáshitel ajánlataFizetett hirdetés

Hitelösszeg 10 millió Ft
Futamidő 20 év
Induló törlesztőrészlet 67 508 Ft
Törlesztőrészlet a 13. hónaptól 86 071 Ft
THM 8,6 %

A tájékoztatás nem teljes körű és nem minősül ajánlattételnek. Az OTP Évnyerő Lakáshitelei 1 éves türelmi idős kölcsönök, amellyel az első 12 hónapban alacsonyabb a havi törlesztőrészlet. A tőke törlesztését a 13. hónaptól kell megkezdeni.

    Részletes kalkuláció
    +36 70 465
    Szuromi Mirella
    referens

    Érdekel az OTP Bank kedvezményes lakáshitel ajánlata? *

    * A kérdésre „Igen” válasz bejelölése esetén, az „Üzenet küldése” gombra kattintva kijelentem, hogy az OTP Bank Nyrt. Adatkezelési tájékoztatójának tartalmát megismertem és tudomásul vettem.

    Kiadó téglalakás, albérlet leírása

    VII. kerületben, a Kertész utcában, liftes társasház 3. emeletén kiadásra kínálok egy 75 nm-es, 2 szobás, cirkófűtéses, bútorozatlan, udvari nézetű lakást.
    A lakás jó elosztású, csendes, rendezett társasházban található.
    Közös költség: 40 000 Ft/hó, amely tartalmazza a korlátlan vízfogyasztást, a felújítási alapot, a lift üzemeltetését és a szemétszállítást.
    A lakás hosszú távra kiadó.
    További információért kérem, keressen bizalommal.

    Egyedi igényekre szabott lakáshitelekkel állunk rendelkezésére.
    Bankfüggetlen Hitelcentrumunk az országban elérhető összes bank és hitelintézet ajánlatát versenyezteti az Ön számára díjmentesen.
    Munkatársaink nagy szakmai tapasztalattal, teljes körű CSOK PLUSZ és OTTHON START PROGRAM ügyintézéssel várják Önt előre egyeztetett időpontban akár a normál munkaidő után is.

    Hirdetés feltöltve: 2026. 04. 29. Utoljára módosítva: 2026. 05. 12.

    2 szobás téglalakások ára Budapesten

    Ebből az összehasonlításból megtudhatod, hogyan viszonyul a lakás ára a környékbeli téglalakások átlagos árához. Ez nem azt jelenti, hogy ennyivel olcsóbb vagy drágább, mint amennyit a lakás ér, hanem hogy ennyivel tér el a környékbeli átlagtól.

    Ennek a m² ára
    Belső Erzsébetváros m² ár
    VII. kerület m² ár
    Budapest m² ár
    4 e Ft
    5 e Ft 31%
    6 e Ft 37%
    7 e Ft 43%
    Ennek az ára
    Belső Erzsébetváros átlagár
    VII. kerület átlagár
    Budapest átlagár
    280 E Ft / hó m Ft
    0.3 m Ft 3%
    0.3 m Ft 13%
    0.5 m Ft 40%

    Az ingatlan elhelyezkedése

    Cím: Budapest, VII. kerület, Belső Erzsébetváros, Kertész utca, 3. emelet

    Kiadó ingatlanok, albérletek a környékről

    VII. kerület, Belső Erzsébetváros, Nyár utca
    Kiadó téglalakás, albérlet

    Budapest, VII. kerület

    500 E Ft / hó
    3 szoba
    81 m²
    VI. kerület, Külső Terézváros, Benczúr utca
    Kiadó téglalakás, albérlet

    Budapest, VI. kerület

    350 E Ft / hó
    3 szoba
    72 m²
    VI. kerület
    Kiadó üzlethelyiség

    Budapest, VI. kerület

    450 E Ft / hó
    198 m²
    198 m²
    XIII. kerület, Vizafogó, Dagály utca
    Kiadó téglalakás, albérlet

    Budapest, XIII. kerület

    320 E Ft / hó
    2 szoba
    40 m²
    VII. kerület, Belső Erzsébetváros, Nyár utca
    Kiadó téglalakás, albérlet

    Budapest, VII. kerület

    300 E Ft / hó
    2 szoba
    37 m²
    VII. kerület, Belső Erzsébetváros, Budapest VII. kerület Holló utca
    Kiadó téglalakás, albérlet

    Budapest, VII. kerület

    250 E Ft / hó
    1 szoba
    0 m²
    VI. kerület, Külső Terézváros, Benczúr utca
    Kiadó téglalakás, albérlet

    Budapest, VI. kerület

    350 E Ft / hó
    3 szoba
    72 m²
    XI. kerület, Albertfalva, Karcag utca
    Kiadó téglalakás, albérlet

    Budapest, XI. kerület

    225 E Ft / hó
    1 szoba
    34 m²
    XIII. kerület, Újlipótváros, Csanady
    Kiadó téglalakás, albérlet

    Budapest, XIII. kerület

    160 E Ft / hó
    1 szoba
    38 m²
    XIV. kerület, Herminamező, Bácskai 3
    Kiadó téglalakás, albérlet

    Budapest, XIV. kerület

    220 E Ft / hó
    2 szoba
    42 m²
    XXI. kerület, Gyártelep, Központi
    Kiadó ipari ingatlan

    Budapest, XXI. kerület

    235 E Ft / hó
    296 m²
    XXIII. kerület
    Kiadó téglalakás, albérlet

    Budapest, XXIII. kerület

    300 E Ft / hó
    3 szoba
    85 m²
    VII. kerület
    Kiadó téglalakás, albérlet

    Budapest, VII. kerület

    1072 E Ft / hó
    2 szoba
    50 m²
    VII. kerület
    Kiadó téglalakás, albérlet

    Budapest, VII. kerület

    500 E Ft / hó
    4 szoba
    105 m²
    VII. kerület, Belső Erzsébetváros, Károly körút
    Kiadó téglalakás, albérlet

    Budapest, VII. kerület

    542 E Ft / hó
    4 szoba
    100 m²
    XIII. kerület, Angyalföld, Angyalföldi út
    Kiadó téglalakás, albérlet

    Budapest, XIII. kerület

    320 E Ft / hó
    2 szoba
    49 m²
    I. kerület, Víziváros, Donáti utca
    Kiadó téglalakás, albérlet

    Budapest, I. kerület

    380 E Ft / hó
    3 szoba
    91 m²
    VII. kerület, Belső Erzsébetváros, Rózsa
    Kiadó téglalakás, albérlet

    Budapest, VII. kerület

    255 E Ft / hó
    2 szoba
    52 m²
    XIII. kerület, Angyalföld, Szent László út
    Kiadó téglalakás, albérlet

    Budapest, XIII. kerület

    300 E Ft / hó
    2 szoba
    47 m²
    VII. kerület
    Kiadó téglalakás, albérlet

    Budapest, VII. kerület

    776 E Ft / hó
    3 szoba
    96 m²
    VII. kerület
    Kiadó téglalakás, albérlet

    Budapest, VII. kerület

    289 E Ft / hó
    1 szoba
    33 m²
    IV. kerület, Újpest, Árpád út
    Kiadó téglalakás, albérlet

    Budapest, IV. kerület

    260 E Ft / hó
    1 szoba
    51 m²
    XIX. kerület, Kispest, Kosárfonó
    Kiadó panellakás, albérlet

    Budapest, XIX. kerület

    210 E Ft / hó
    2 szoba
    34 m²
    VI. kerület, Külső Terézváros, Benczúr utca
    Kiadó téglalakás, albérlet

    Budapest, VI. kerület

    350 E Ft / hó
    3 szoba
    72 m²

    Falusi CSOK ingatlanok

    Tápiószőlős
    Eladó családi ház

    Tápiószőlős

    39.9 M Ft
    4 szoba
    120 m²
    Verseg
    Eladó családi ház

    Verseg

    69.9 M Ft
    4 szoba
    0 m²
    Kunadacs
    Eladó családi ház

    Kunadacs

    80 M Ft
    4 szoba
    148 m²
    Hegyeshalom, Margaréta utca 12
    Eladó téglalakás

    Hegyeshalom

    50.09 M Ft
    2 szoba
    43 m²
    Hegyeshalom, Margaréta utca 12
    Eladó téglalakás

    Hegyeshalom

    46.91 M Ft
    2 szoba
    43 m²
    Kétegyháza
    Eladó családi ház

    Kétegyháza

    21 M Ft
    3 szoba
    105 m²
    Balatonszemes
    Eladó téglalakás

    Balatonszemes

    125.2 M Ft
    2 szoba
    50 m²
    Onga
    Eladó családi ház

    Onga

    46.99 M Ft
    3 szoba
    120 m²