City Pearl

Kiadó iroda
Miskolc, 1. emelet

+ 16 kép 1/19
470 000 Ft470 E Ft / hó 3 884 Ft/m2
5 szoba
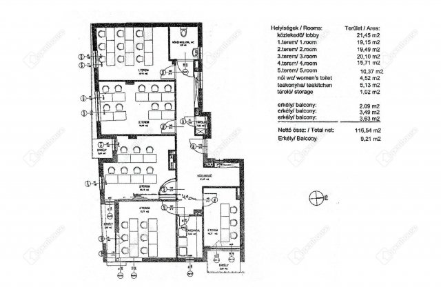
121 m²
1. emelet

Részletes adatok

Fűtés: Egyéb
Emelet: 1. emelet
Extrák: Lift
Energetikai besorolás: Nem adta meg a hirdető

Az OTP Bank lakáshitel ajánlataFizetett hirdetés

Hitelösszeg 10 millió Ft
Futamidő 20 év
Induló törlesztőrészlet 67 508 Ft
Törlesztőrészlet a 13. hónaptól 86 071 Ft
THM 8,6 %

A tájékoztatás nem teljes körű és nem minősül ajánlattételnek. Az OTP Évnyerő Lakáshitelei 1 éves türelmi idős kölcsönök, amellyel az első 12 hónapban alacsonyabb a havi törlesztőrészlet. A tőke törlesztését a 13. hónaptól kell megkezdeni.

    Részletes kalkuláció
    +36 70 467
    Béres Tamás
    Openhouse Miskolc

    Érdekel az OTP Bank kedvezményes lakáshitel ajánlata? *

    * A kérdésre „Igen” válasz bejelölése esetén, az „Üzenet küldése” gombra kattintva kijelentem, hogy az OTP Bank Nyrt. Adatkezelési tájékoztatójának tartalmát megismertem és tudomásul vettem.

    Kiadó iroda leírása

    Miskolci ingatlaniroda kiadásra kínálja a 158533-as számú, 120 m2-es, több helyiségből álló kiadó irodát Miskolc frekventált helyén, új építésű társasház utcafrontjáról megközelíthető helyen, a belváros szívében!

    360 fokos panorámaképek az Openhouse weboldalán megtekinthetők:
    https://oh.hu/ingatlanok/reszletek/158533

    A kiadó miskolci üzlethelyiség, iroda jellemzői:
    - Miskolc belvárosában, frekventált de csendes helyen található, 50 méterre a villamostól
    - új építésű társasházban található az autóktól mentes utcarészről nyíló iroda
    - műanyag nyílászárók szinte újak
    - a fűtést egyedi mérős távhő biztosítja emiatt a rezsi nagyon kedvező
    - a helyiségben több iroda, teakonyha, mosdó, wc, és tárgyaló is található, melyek egymástól elkülönülten helyezkednek el
    - a képeken látható bútorok a bérlemény részét képezik, szabadon használhatóak
    - közvetlen az iroda előtt kedvező árú autóparkoló található
    - gyalogosan is könnyen elérhető a sétálóutca felől, de tömegközlekedéssel is jól megközelíthető
    - kialakítása, elhelyezkedése tökéletesen alkalmassá teszi ügyfélszolgálat, üzlet, mintabolt, vagy akár ügyvédi irodák, magánorvosi rendelő, iskola, oktatási célú működtetésére is
    Ön megnézi és beleszeret, hívjon bármikor bizalommal!

    Amennyiben a 158533-as számú kiadó miskolci üzlethelyiség, iroda vagy bármely a kínálatunkban található kiadó vagy eladó iroda felkeltette érdeklődését, hívjon bármikor bizalommal!
    Béres Tamás 0630-733-0179

    Irodánk további szolgáltatásai:
    - díjmentes, bankfüggetlen és teljeskörű hitelügyintézés, lakástakarék-pénztár, CSOK ügyintézés, biztosítás
    - díjmentes jogi tanácsadás, kedvezményes ügyvédi díj
    - energetikai tanúsítás kedvezményes áron
    - napelemes rendszerek értékesítése felméréstől kezdve a kulcsrakész rendszer átadásáig

    Az ingatlan és az otthon közötti út élményéért dolgozunk!
    Openhouse - Az otthon érték. Az ingatlan üzlet.

    Bérleti díj: 470000 Ft/hó
    Érd.: Béres Tamás +3630/7330179, Email: tamas.beres@oh.hu, www.oh.hu

    Referencia szám: 158533

    Hirdetés feltöltve: 2026. 04. 21. Utoljára módosítva: 2026. 04. 21.

    Irodák ára Miskolcon

    Ebből az összehasonlításból megtudhatod, hogyan viszonyul a lakás ára a környékbeli irodák átlagos árához. Ez nem azt jelenti, hogy ennyivel olcsóbb vagy drágább, mint amennyit a lakás ér, hanem hogy ennyivel tér el a környékbeli átlagtól.

    Ennek a m² ára
    Miskolc m² ár
    4 e Ft
    3 e Ft -20%
    Ennek az ára
    Miskolc átlagár
    470 E Ft / hó m Ft
    0.4 m Ft -9%

    Az ingatlan elhelyezkedése

    Cím: Miskolc, 1. emelet

    Kiadó irodák a környékről

    Miskolc
    Kiadó iroda

    Miskolc

    67 E Ft / hó
    2 + 1 szoba
    56 m²
    Miskolc, Avasalja, Andrássy
    Kiadó iroda

    Miskolc

    300 E Ft / hó
    1 szoba
    107 m²
    Miskolc
    Kiadó iroda

    Miskolc

    60 E Ft / hó
    1 szoba
    15 m²
    Miskolc
    Kiadó iroda

    Miskolc

    84 E Ft / hó
    1 szoba
    21 m²
    Miskolc, Új Diósgyőr, Andrássy Gyula utca
    Kiadó iroda

    Miskolc

    600 E Ft / hó
    2 szoba
    200 m²
    Miskolc
    Kiadó iroda

    Miskolc

    69 E Ft / hó
    1 szoba
    23 m²
    Miskolc
    Kiadó iroda

    Miskolc

    7608 E Ft / hó
    102 szoba
    1902 m²
    Miskolc
    Kiadó iroda

    Miskolc

    7608 E Ft / hó
    102 szoba
    1902 m²
    Miskolc
    Kiadó iroda

    Miskolc

    120 E Ft / hó
    1 szoba
    30 m²
    Miskolc
    Kiadó iroda

    Miskolc

    144 E Ft / hó
    2 szoba
    36 m²
    Miskolc
    Kiadó iroda

    Miskolc

    108 E Ft / hó
    47 m²
    Miskolc
    Kiadó iroda

    Miskolc

    135 E Ft / hó
    58 m²
    Miskolc, Szentpéteri kapu Kelet, Macropolis, Arany János tér 1
    Kiadó iroda

    Miskolc

    224 E Ft / hó
    15 m²
    Miskolc
    Kiadó iroda

    Miskolc

    47 E Ft / hó
    17 m²
    Miskolc
    Kiadó iroda

    Miskolc

    264 E Ft / hó
    3 szoba
    66 m²
    Miskolc, Avasalja, Andrássy
    Kiadó iroda

    Miskolc

    300 E Ft / hó
    1 szoba
    107 m²
    Miskolc
    Kiadó iroda

    Miskolc

    70 E Ft / hó
    25 m²
    Miskolc, Belváros
    Kiadó iroda

    Miskolc

    2500 E Ft / hó
    8 + 2 szoba
    530 m²
    Miskolc, Új Diósgyőr, Andrássy Gyula utca
    Kiadó iroda

    Miskolc

    600 E Ft / hó
    2 szoba
    200 m²
    Miskolc
    Kiadó iroda

    Miskolc

    180 E Ft / hó
    2 szoba
    45 m²
    Miskolc
    Kiadó iroda

    Miskolc

    70 E Ft / hó
    40 m²
    Miskolc
    Kiadó iroda

    Miskolc

    108 E Ft / hó
    47 m²
    Miskolc
    Kiadó iroda

    Miskolc

    86 E Ft / hó
    37 m²
    Miskolc
    Kiadó iroda

    Miskolc

    201 E Ft / hó
    74 m²

    Falusi CSOK ingatlanok

    Hosszúhetény, Petőfi Sándor utca 10
    Eladó családi ház

    Hosszúhetény

    20.65 M Ft
    4 + 2 szoba
    133 m²
    Újpetre
    Eladó családi ház

    Újpetre

    39 M Ft
    3 + 1 szoba
    130 m²
    Újlengyel
    Eladó családi ház

    Újlengyel

    179 M Ft
    6 szoba
    280 m²
    Dombrád, Rákóczi út 22
    Eladó családi ház

    Dombrád

    12.74 M Ft
    1 + 1 szoba
    125 m²
    Badacsonytomaj
    Eladó családi ház

    Badacsonytomaj

    285 M Ft
    4 szoba
    230 m²
    Aba
    Eladó családi ház

    Aba

    74.9 M Ft
    5 szoba
    225 m²
    Bácsbokod
    Eladó családi ház

    Bácsbokod

    55 M Ft
    6 szoba
    250 m²
    Belezna
    Eladó családi ház

    Belezna

    9.5 M Ft
    2 szoba
    86 m²