Kiadó iroda
Budapest, XXII. kerület, Budatétény
Részletes adatok
Az OTP Bank lakáshitel ajánlataFizetett hirdetés
A tájékoztatás nem teljes körű és nem minősül ajánlattételnek. Az OTP Évnyerő Lakáshitelei 1 éves türelmi idős kölcsönök, amellyel az első 12 hónapban alacsonyabb a havi törlesztőrészlet. A tőke törlesztését a 13. hónaptól kell megkezdeni.
Kiadó iroda leírása
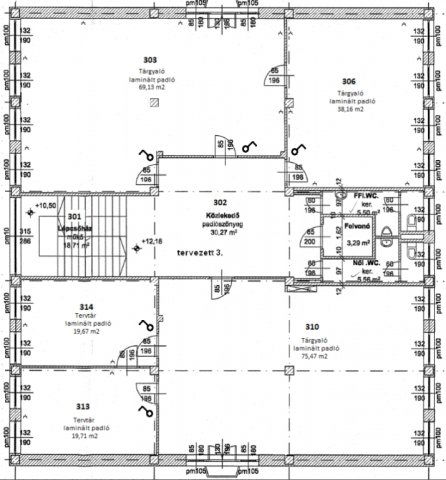
XXII. kerületben Budtétényben jó állapotú 6 szintes irodaházban, 30-222 m² alapterületű irodarészeket kínálunk kiadásra.
Az iroda portaszolgálattal liftes és klimatizált helységekkel rendelkezik.
A bérleti díj : 6 €/m²/hó + ÁFA.
Az üzemeltetési és fenntartási költség : 2,5 €/m²/hó +ÁFA.
A parkolás az iroda előtti közterületen ingyenesen biztosított, valamint területen belül pedig megegyezés szerint van lehetőség a bérlésre.
Az irodarész minimum 12 hónapra kiadó, 2 havi kaució és 1 havi bérleti díj megfizetése szükséges.
Igény esetén a teljes irodaszintek is kiadóak, alakitható belsőterek.
A telephely közvetlenül az M0 -M6 közvetlen közelében helyezkedik el. Könnyű megközelíthető miatt a szolgáltató központ is kialakítható.
Az ingatlan részletes ismertetése és bemutatása, előre egyeztetett időpontban lehetséges, amelyet NAGYON RUGALMASAN kezelünk,
HÉTVÉGÉN IS, további kérdéseivel kapcsolatban várom a jelentkezését. ...TOVÁBBI, TÖBBEZRES INGATLAN KÍNÁLAT: www.gdn-ingatlan.hu - GDN azonosító: 364901
Hirdetés feltöltve: 2025. 02. 15. Utoljára módosítva: 2025. 10. 04.
Irodák ára Budapesten
Ebből az összehasonlításból megtudhatod, hogyan viszonyul a lakás ára a környékbeli irodák átlagos árához. Ez nem azt jelenti, hogy ennyivel olcsóbb vagy drágább, mint amennyit a lakás ér, hanem hogy ennyivel tér el a környékbeli átlagtól.
Az ingatlan elhelyezkedése
Cím: Budapest, XXII. kerület, Budatétény
Kiadó ingatlanok a környékről
