Kiadó iroda
Budapest, XIV. kerület, Istvánmező, Izsó utca
Részletes adatok
Az OTP Bank lakáshitel ajánlataFizetett hirdetés
A tájékoztatás nem teljes körű és nem minősül ajánlattételnek. Az OTP Évnyerő Lakáshitelei 1 éves türelmi idős kölcsönök, amellyel az első 12 hónapban alacsonyabb a havi törlesztőrészlet. A tőke törlesztését a 13. hónaptól kell megkezdeni.
Kiadó iroda leírása
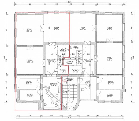
XIV., Izsó utcában, Zugló villanegyedében hosszú távra, de minimum 2 évre, irodai célra kiadó egy felújított, frissen festett, 163 nm-es, 3+1 szobás lakás egy kívül-belül felújított villaépület magasföldszintjén.
Tágas terek, nagy ablakok, elegáns környezet! A konyha gépesített, az ingatlan egyébként bútorozatlan. A klímás iroda riasztóval, kapunyitó rendszerrel felszerelt, fűtése házközponti.
Közlekedése kiváló, a 7-es buszcsalád megállója pár perc sétára, a 2-es metró Keleti pu. megállója 10 percre.
Az ingatlan 2 havi kaució és az aktuális havi bérleti díj kifizetésével vehető birtokba. Havi bérleti díj: EUR 7,- per nm + ÁFA. Rezsi: karbantartási díj: 30.000 Ft per hó (épület, kert karbantartása, működtetése, fűtéskarbantartás ...), riasztó: 8.000 Ft, szemétdíj: 5875 Ft, a többi ktsg (villany, víz, gáz) fogyasztás szerint, saját mérőórák alapján. A Bérbeadó számlát ad. Parkolás: megbeszélés szerint.
Az ingatlan azonnal birtokba vehető. Ugyanezen a szinten azonnal bérelhető egy 157 nm-es 3+1 szobás iroda is!
A villa legfelső, tetőtéri részén ugyancsak hosszú távra bérbe vehető egy 110 nm-es, frissen felújított lakás: 2 külön bejáratú, tágas szoba, külön fürdőszoba és mosdó, konyha, tároló. Bérleti díj:6 Euró per nm + ÁFA.
További információ, megtekintés miatt várom hívását.
Hirdetés feltöltve: 2025. 05. 25. Utoljára módosítva: 2025. 10. 01.
Irodák ára Budapesten
Ebből az összehasonlításból megtudhatod, hogyan viszonyul a lakás ára a környékbeli irodák átlagos árához. Ez nem azt jelenti, hogy ennyivel olcsóbb vagy drágább, mint amennyit a lakás ér, hanem hogy ennyivel tér el a környékbeli átlagtól.
Az ingatlan elhelyezkedése
Cím: Budapest, XIV. kerület, Istvánmező, Izsó utca
Kiadó ingatlanok a környékről

VII. kerület, Külső Erzsébetváros, Damjanich utca
