Seven Pearl

Kiadó iroda
Budapest, XI. kerület, Albertfalva, 1. emelet

+ 10 kép 1/13
350 000 Ft350 E Ft / hó 3 646 Ft/m2
4 szoba
96 m2
1. emelet
építés éve:1980

Részletes adatok

Állapot: Felújított
Fűtés: Gázkazán
Emelet: 1. emelet
Parkolás: Kocsibeálló
Energetikai besorolás: Nem adta meg a hirdető

Az OTP Bank lakáshitel ajánlataFizetett hirdetés

Hitelösszeg 10 millió Ft
Futamidő 20 év
Induló törlesztőrészlet 67 508 Ft
Törlesztőrészlet a 13. hónaptól 86 071 Ft
THM 8,6 %

A tájékoztatás nem teljes körű és nem minősül ajánlattételnek. Az OTP Évnyerő Lakáshitelei 1 éves türelmi idős kölcsönök, amellyel az első 12 hónapban alacsonyabb a havi törlesztőrészlet. A tőke törlesztését a 13. hónaptól kell megkezdeni.

    Részletes kalkuláció
    +36 70 421
    Agatity Roland
    referens

    Érdekel az OTP Bank kedvezményes lakáshitel ajánlata? *

    * A kérdésre „Igen” válasz bejelölése esetén, az „Üzenet küldése” gombra kattintva kijelentem, hogy az OTP Bank Nyrt. Adatkezelési tájékoztatójának tartalmát megismertem és tudomásul vettem.

    Kiadó iroda leírása

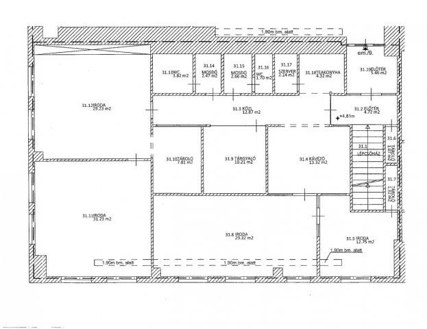
    Budapest XI. kerület, Albertfalván, a budafoki út közelében, ipari területen lévő 96 m2-es felújított irodahelyiség kiadó!
    Az ingatlan rendezett jogi háttérrel (társasház önálló helyrajzi számú irodákkal, saját mérők), délkeleti tájolással és saját parkolóval rendelkezik. Elsőrendű autós és teherautós közlekedési kapcsolat. 2020-ban felújításon esett át (vezetékek, burkolatok, nyílászárók, beépített konyha) riasztóval és valamennyi helyisége klímával van felszerelve. Közlekedési szempontból az iroda páratlan lehetőségeket nyújt. Az MO körgyűrű csomópontja mindössze 2 km-re, a 6-os főút 1000 méterre található, míg az M1 és M7 közös bevezető szakasza 5 km-re helyezkedik el. A Rákóczi híd budai hídfője 3 km-re van, és a repülőtér autóval 50 perc alatt elérhető. A közlekedés még egyszerűbbé válik, hiszen a 33,133E buszok az épület előtt állnak meg, míg további busz- és villamosjáratok mindössze 5-10 perces sétával elérhetők. ...TOVÁBBI, TÖBBEZRES INGATLAN KÍNÁLAT: www.gdn-ingatlan.hu - GDN azonosító: 390952

    Hirdetés feltöltve: 2025. 12. 21. Utoljára módosítva: 2026. 01. 16.

    Irodák ára Budapesten

    Ebből az összehasonlításból megtudhatod, hogyan viszonyul a lakás ára a környékbeli irodák átlagos árához. Ez nem azt jelenti, hogy ennyivel olcsóbb vagy drágább, mint amennyit a lakás ér, hanem hogy ennyivel tér el a környékbeli átlagtól.

    Ennek a m² ára
    XI. kerület m² ár
    Budapest m² ár
    4 e Ft
    4 e Ft 12%
    5 e Ft 22%
    Ennek az ára
    XI. kerület átlagár
    Budapest átlagár
    350 E Ft / hó m Ft
    0.9 m Ft 63%
    1 m Ft 65%

    Az ingatlan elhelyezkedése

    Cím: Budapest, XI. kerület, Albertfalva, 1. emelet

    Kiadó ingatlanok a környékről

    Kiadó iroda
    Kiadó iroda

    XI. kerület, Kelenföld, Újbuda

    1900 E Ft / hó
    2441 m2
    Kiadó téglalakás, albérlet
    Kiadó téglalakás, albérlet

    XI. kerület

    220 E Ft / hó
    1 szoba
    50 m2
    Kiadó téglalakás, albérlet
    Kiadó téglalakás, albérlet

    XIII. kerület

    325 E Ft / hó
    2 szoba
    41 m2
    Kiadó téglalakás, albérlet
    Kiadó téglalakás, albérlet

    V. kerület

    344 E Ft / hó
    1 szoba
    42 m2
    Kiadó iroda
    Kiadó iroda

    XI. kerület

    3300 E Ft / hó
    643 m²
    643 m2
    Kiadó iroda
    Kiadó iroda

    XI. kerület, Kelenföld, Újbuda

    1800 E Ft / hó
    13700 m2
    Kiadó panellakás, albérlet
    Kiadó panellakás, albérlet

    X. kerület, Gyárdűlő, Somfa köz

    43 E Ft / hó
    2 + 2 szoba
    58 m2
    Kiadó téglalakás, albérlet
    Kiadó téglalakás, albérlet

    XII. kerület, Hegyalja út

    160 E Ft / hó
    1 szoba
    23 m2
    Kiadó iroda
    Kiadó iroda

    XI. kerület

    2800 E Ft / hó
    600 m2
    Kiadó iroda
    Kiadó iroda

    XI. kerület, Kelenföld

    606 E Ft / hó
    150 m2
    Kiadó téglalakás, albérlet
    Kiadó téglalakás, albérlet

    XI. kerület, Albertfalva, Villányi út

    280 E Ft / hó
    2 szoba
    50 m2
    Kiadó téglalakás, albérlet
    Kiadó téglalakás, albérlet

    VII. kerület, Külső Erzsébetváros, Hernád utca

    287 E Ft / hó
    2 szoba
    56 m2
    Kiadó téglalakás, albérlet
    Kiadó téglalakás, albérlet

    VI. kerület, Külső Terézváros, Székely Bertalan utca

    200 E Ft / hó
    2 + 1 szoba
    23 m2
    Kiadó téglalakás, albérlet
    Kiadó téglalakás, albérlet

    VIII. kerület, Rákóczi út 61

    280 E Ft / hó
    3 szoba
    80 m2
    Kiadó üzlethelyiség
    Kiadó üzlethelyiség

    IX. kerület, Ferencváros, Dandár utca

    270 E Ft / hó
    1 szoba
    46 m2
    Kiadó téglalakás, albérlet
    Kiadó téglalakás, albérlet

    III. kerület

    200 E Ft / hó
    1 szoba
    35 m2
    Kiadó iroda
    Kiadó iroda

    XI. kerület, Dobogó, Budaörsi út

    401 E Ft / hó
    131 m2
    Kiadó iroda
    Kiadó iroda

    XI. kerület

    139 E Ft / hó
    90 m2
    Kiadó téglalakás, albérlet
    Kiadó téglalakás, albérlet

    XII. kerület, Városmajor utca

    330 E Ft / hó
    2 + 1 szoba
    62 m2
    Kiadó téglalakás, albérlet
    Kiadó téglalakás, albérlet

    XX. kerület

    210 E Ft / hó
    1 + 1 szoba
    42 m2
    Kiadó téglalakás, albérlet
    Kiadó téglalakás, albérlet

    XI. kerület, Albertfalva

    349 E Ft / hó
    3 szoba
    100 m2
    Kiadó téglalakás, albérlet
    Kiadó téglalakás, albérlet

    XI. kerület, Albertfalva, Bogdánfy utca

    200 E Ft / hó
    1 szoba
    37 m2
    Kiadó téglalakás, albérlet
    Kiadó téglalakás, albérlet

    XIII. kerület, Újlipótváros

    250 E Ft / hó
    2 szoba
    61 m2

    Falusi CSOK ingatlanok

    Eladó családi ház
    Eladó családi ház

    Magyarszék

    48.5 M Ft
    3 + 1 szoba
    86 m2
    Eladó családi ház
    Eladó családi ház

    Fülöpszállás

    299 M Ft
    14 + 5 szoba
    680 m2
    Eladó téglalakás
    Eladó téglalakás

    Balatonszemes

    125.2 M Ft
    2 szoba
    50 m2
    Eladó családi ház
    Eladó családi ház

    Ádánd

    69.9 M Ft
    6 szoba
    251 m2
    Eladó családi ház
    Eladó családi ház

    Szászvár, Meggyes utca

    9.99 M Ft
    2 szoba
    90 m2
    Eladó családi ház
    Eladó családi ház

    Egyed

    24.9 M Ft
    2 + 1 szoba
    56 m2
    Eladó téglalakás
    Eladó téglalakás

    Balatonszemes

    202 M Ft
    3 szoba
    154 m2
    Eladó téglalakás
    Eladó téglalakás

    Herend

    63 M Ft
    3 szoba
    69 m2