Seven Pearl

Kiadó ipari ingatlan
Budapest, XX. kerület

+ 11 kép 1/14
453 200 Ft453 E Ft / hó 2 200 Ft/m2
206 m²
építés éve:1950

Részletes adatok

Fűtés: Gázkazán
Energetikai besorolás: Nem adta meg a hirdető

Az OTP Bank lakáshitel ajánlataFizetett hirdetés

Hitelösszeg 10 millió Ft
Futamidő 20 év
Induló törlesztőrészlet 67 508 Ft
Törlesztőrészlet a 13. hónaptól 86 071 Ft
THM 8,6 %

A tájékoztatás nem teljes körű és nem minősül ajánlattételnek. Az OTP Évnyerő Lakáshitelei 1 éves türelmi idős kölcsönök, amellyel az első 12 hónapban alacsonyabb a havi törlesztőrészlet. A tőke törlesztését a 13. hónaptól kell megkezdeni.

    Részletes kalkuláció
    +36 70 675
    Fodor Zoltán
    referens

    Érdekel az OTP Bank kedvezményes lakáshitel ajánlata? *

    * A kérdésre „Igen” válasz bejelölése esetén, az „Üzenet küldése” gombra kattintva kijelentem, hogy az OTP Bank Nyrt. Adatkezelési tájékoztatójának tartalmát megismertem és tudomásul vettem.

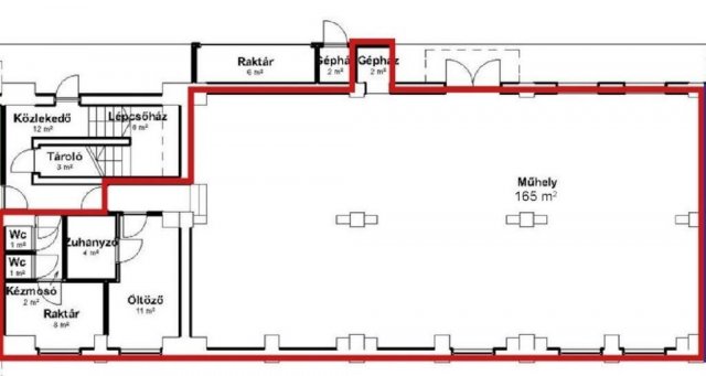
    Kiadó ipari ingatlan leírása

    Kiadó ipari ingatlan - Budapest XX. kerület!
    Zárt, rendezett telephelyen bérbeadó egy sokoldalúan hasznosítható ipari ingatlan, amely legutóbb nyomdaként üzemelt. Ideális választás lehet gyártási, raktározási vagy egyéb ipari tevékenységekhez.
    Választható alapterület:
    - 260 m2 - 2.000 Ft/m2 + ÁFA.
    - 206 m2 - 2.200 Ft/m2 + ÁFA.
    Műszaki jellemzők:
    - Ipari áram: 3×150 A.
    - Kiépített sűrített levegő hálózat.
    - Fűtés: gázcirkó + klíma.
    - 20 cm vastag, dupla vasalású ipari padló (műgyantázott).
    - Szigetelt, műanyag nyílászárók.
    - 10 cm külső hőszigetelés.
    - Összes közmű az ingatlanon belül.
    Kiegészítő helyiségek:
    - Öltöző, WC és zuhanyzó.
    Költségek:
    - Közös költség: 150 Ft/m2 + ÁFA.
    - Közművek egyedi mérés alapján fizetendők.
    Egyéb előnyök:
    - Az épület mellett 2 autó számára parkolási lehetőség.
    - Zárt telephely, a kapu munkaidőben nyitva.
    - Üzemidőn kívül távirányítóval biztosított bejutás.
    Az ingatlan kiváló infrastruktúrával és rugalmas kialakítással várja új bérlőjét. Ha egy jól megközelíthető, ipari célokra optimalizált helyet keres, ez a lehetőség ideális választás lehet.
    Érdeklődés esetén keressen bizalommal!

    Referencia szám: M327800

    Hirdetés feltöltve: 2026. 04. 25.

    Ipari ingatlanok ára Budapesten

    Ebből az összehasonlításból megtudhatod, hogyan viszonyul a lakás ára a környékbeli ipari ingatlanok átlagos árához. Ez nem azt jelenti, hogy ennyivel olcsóbb vagy drágább, mint amennyit a lakás ér, hanem hogy ennyivel tér el a környékbeli átlagtól.

    Ennek a m² ára
    XX. kerület m² ár
    Budapest m² ár
    2 e Ft
    1 e Ft -151%
    11 e Ft 79%
    Ennek az ára
    XX. kerület átlagár
    Budapest átlagár
    453 E Ft / hó m Ft
    0.4 m Ft -8%
    1.2 m Ft 62%

    Az ingatlan elhelyezkedése

    Cím: Budapest, XX. kerület

    Kiadó ingatlanok a környékről

    XIV. kerület, Alsórákos, Bartl János
    Kiadó téglalakás, albérlet

    Budapest, XIV. kerület

    360 E Ft / hó
    2 szoba
    53 m²
    XX. kerület
    Kiadó ipari ingatlan

    Budapest, XX. kerület

    453 E Ft / hó
    206 m²
    XX. kerület, Kossuthfalva, Török Flóris utca
    Kiadó panellakás, albérlet

    Budapest, XX. kerület

    235 E Ft / hó
    2 szoba
    50 m²
    IX. kerület
    Kiadó téglalakás, albérlet

    Budapest, IX. kerület

    340 E Ft / hó
    1 szoba
    62 m²
    VII. kerület, Belső Erzsébetváros, Csengery utca
    Kiadó téglalakás, albérlet

    Budapest, VII. kerület

    120 E Ft / hó
    3 szoba
    58 m²
    VI. kerület
    Kiadó téglalakás, albérlet

    Budapest, VI. kerület

    963 E Ft / hó
    4 szoba
    114 m²
    V. kerület, Belváros, Presztízs értékű SAROK üzlet
    Kiadó üzlethelyiség

    Budapest, V. kerület

    3658 E Ft / hó
    652 m²
    VI. kerület
    Kiadó téglalakás, albérlet

    Budapest, VI. kerület

    310 E Ft / hó
    2 szoba
    65 m²
    XIV. kerület
    Kiadó téglalakás, albérlet

    Budapest, XIV. kerület

    230 E Ft / hó
    1 szoba
    36 m²
    XX. kerület
    Kiadó ipari ingatlan

    Budapest, XX. kerület

    200 E Ft / hó
    150 m²
    VIII. kerület
    Kiadó téglalakás, albérlet

    Budapest, VIII. kerület

    450 E Ft / hó
    3 szoba
    86 m²
    IV. kerület
    Kiadó téglalakás, albérlet

    Budapest, IV. kerület

    250 E Ft / hó
    2 szoba
    50 m²
    V. kerület
    Kiadó téglalakás, albérlet

    Budapest, V. kerület

    340 E Ft / hó
    2 szoba
    73 m²
    II. kerület, Rózsadomb, Járóka utca
    Kiadó családi ház, albérlet

    Budapest, II. kerület

    550 E Ft / hó
    6 szoba
    256 m²
    XX. kerület
    Kiadó ipari ingatlan

    Budapest, XX. kerület

    350 E Ft / hó
    130 m²
    XIII. kerület
    Kiadó téglalakás, albérlet

    Budapest, XIII. kerület

    280 E Ft / hó
    2 szoba
    45 m²
    XIII. kerület, Angyalföld, Kartács utca
    Kiadó téglalakás, albérlet

    Budapest, XIII. kerület

    250 E Ft / hó
    1 + 1 szoba
    41 m²
    XX. kerület
    Kiadó ipari ingatlan

    Budapest, XX. kerület

    50 E Ft / hó
    30 m²
    IX. kerület, Ferencváros, Mester utca 83
    Kiadó téglalakás, albérlet

    Budapest, IX. kerület

    215 E Ft / hó
    32 m²
    32 m²
    VII. kerület, Külső Erzsébetváros, Bethlen Gábor utca 3
    Kiadó üzlethelyiség

    Budapest, VII. kerület

    550 E Ft / hó
    110 m²
    XIII. kerület, Újlipótváros, Jász utca
    Kiadó téglalakás, albérlet

    Budapest, XIII. kerület

    350 E Ft / hó
    2 szoba
    58 m²
    XIII. kerület
    Kiadó ipari ingatlan

    Budapest, XIII. kerület

    3850 E Ft / hó
    250 m²
    XX. kerület
    Kiadó ipari ingatlan

    Budapest, XX. kerület

    1490 E Ft / hó
    256 m²
    XIII. kerület
    Kiadó téglalakás, albérlet

    Budapest, XIII. kerület

    1000 E Ft / hó
    5 szoba
    113 m²

    Falusi CSOK ingatlanok

    Öreglak
    Eladó családi ház

    Öreglak

    110 M Ft
    8 szoba
    205 m²
    Fülöpszállás
    Eladó családi ház

    Fülöpszállás

    299 M Ft
    14 + 5 szoba
    680 m²
    Bükkszék
    Eladó családi ház

    Bükkszék

    78.9 M Ft
    2 + 1 szoba
    160 m²
    Maklár
    Eladó családi ház

    Maklár

    99 M Ft
    6 szoba
    230 m²
    Verseg
    Eladó családi ház

    Verseg

    50 M Ft
    2 szoba
    92 m²
    Izsófalva
    Eladó családi ház

    Izsófalva

    22.9 M Ft
    3 szoba
    105 m²
    Balástya, Tanya 86/1
    Eladó családi ház

    Balástya

    8.28 M Ft
    1 + 1 szoba
    111 m²
    Újlengyel
    Eladó családi ház

    Újlengyel

    110 M Ft
    4 szoba
    121 m²