Astora Olive Club House

Kiadó ipari ingatlan
Budapest, XX. kerület

+ 11 kép 1/14
453 200 Ft453 E Ft / hó 2 200 Ft/m2
206 m²
építés éve:1950

Részletes adatok

Állapot: Átlagos
Fűtés: Gázkazán
Energetikai besorolás: Nem adta meg a hirdető

Az OTP Bank lakáshitel ajánlataFizetett hirdetés

Hitelösszeg 10 millió Ft
Futamidő 20 év
Induló törlesztőrészlet 67 508 Ft
Törlesztőrészlet a 13. hónaptól 86 071 Ft
THM 8,6 %

A tájékoztatás nem teljes körű és nem minősül ajánlattételnek. Az OTP Évnyerő Lakáshitelei 1 éves türelmi idős kölcsönök, amellyel az első 12 hónapban alacsonyabb a havi törlesztőrészlet. A tőke törlesztését a 13. hónaptól kell megkezdeni.

    Részletes kalkuláció
    +36 70 675
    Fodor Zoltán
    Budapest XIII. kerület Pannónia utca 25 - OTP Ingatlanpont Iroda

    Érdekel az OTP Bank kedvezményes lakáshitel ajánlata? *

    * A kérdésre „Igen” válasz bejelölése esetén, az „Üzenet küldése” gombra kattintva kijelentem, hogy az OTP Bank Nyrt. Adatkezelési tájékoztatójának tartalmát megismertem és tudomásul vettem.

    Kiadó ipari ingatlan leírása

    Kiadó ipari ingatlan - Budapest XX. kerület!
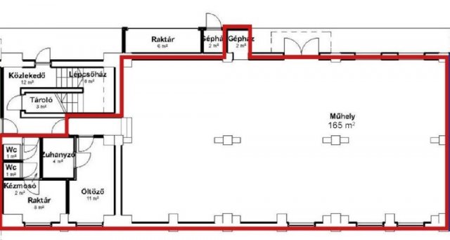
    Zárt, rendezett telephelyen bérbeadó egy sokoldalúan hasznosítható ipari ingatlan, amely legutóbb nyomdaként üzemelt. Ideális választás lehet gyártási, raktározási vagy egyéb ipari tevékenységekhez.
    Választható alapterület:
    - 260 m2 - 2.000 Ft/m2 + ÁFA.
    - 206 m2 - 2.200 Ft/m2 + ÁFA.
    Műszaki jellemzők:
    - Ipari áram: 3×150 A.
    - Kiépített sűrített levegő hálózat.
    - Fűtés: gázcirkó + klíma.
    - 20 cm vastag, dupla vasalású ipari padló (műgyantázott).
    - Szigetelt, műanyag nyílászárók.
    - 10 cm külső hőszigetelés.
    - Összes közmű az ingatlanon belül.
    Kiegészítő helyiségek:
    - Öltöző, WC és zuhanyzó.
    Költségek:
    - Közös költség: 150 Ft/m2 + ÁFA.
    - Közművek egyedi mérés alapján fizetendők.
    Egyéb előnyök:
    - Az épület mellett 2 autó számára parkolási lehetőség.
    - Zárt telephely, a kapu munkaidőben nyitva.
    - Üzemidőn kívül távirányítóval biztosított bejutás.
    Az ingatlan kiváló infrastruktúrával és rugalmas kialakítással várja új bérlőjét. Ha egy jól megközelíthető, ipari célokra optimalizált helyet keres, ez a lehetőség ideális választás lehet.
    Érdeklődés esetén keressen bizalommal!
    Az energetikai tanúsítvány készítése folyamatban van, amint rendelkezésre áll, úgy azzal a hirdetés frissítésre kerül.

    Hirdetés feltöltve: 2026. 04. 24. Utoljára módosítva: 2026. 05. 14.

    Ipari ingatlanok ára Budapesten

    Ebből az összehasonlításból megtudhatod, hogyan viszonyul a lakás ára a környékbeli ipari ingatlanok átlagos árához. Ez nem azt jelenti, hogy ennyivel olcsóbb vagy drágább, mint amennyit a lakás ér, hanem hogy ennyivel tér el a környékbeli átlagtól.

    Ennek a m² ára
    XX. kerület m² ár
    Budapest m² ár
    2 e Ft
    1 e Ft -151%
    11 e Ft 79%
    Ennek az ára
    XX. kerület átlagár
    Budapest átlagár
    453 E Ft / hó m Ft
    0.4 m Ft -8%
    1.2 m Ft 62%

    Az ingatlan elhelyezkedése

    Cím: Budapest, XX. kerület

    Kiadó ingatlanok a környékről

    XIII. kerület
    Kiadó téglalakás, albérlet

    Budapest, XIII. kerület

    250 E Ft / hó
    2 szoba
    35 m²
    VIII. kerület, Corvin sétány
    Kiadó téglalakás, albérlet

    Budapest, VIII. kerület

    480 E Ft / hó
    3 szoba
    69 m²
    XIII. kerület, Angyalföld, Babér u. 13
    Kiadó garázs

    Budapest, XIII. kerület

    17 E Ft / hó
    14 m²
    XX. kerület
    Kiadó ipari ingatlan

    Budapest, XX. kerület

    350 E Ft / hó
    130 m²
    XIII. kerület, Angyalföld, Hajdú utca
    Kiadó téglalakás, albérlet

    Budapest, XIII. kerület

    429 E Ft / hó
    3 szoba
    60 m²
    XII. kerület
    Kiadó téglalakás, albérlet

    Budapest, XII. kerület

    210 E Ft / hó
    1 szoba
    42 m²
    XI. kerület
    Kiadó téglalakás, albérlet

    Budapest, XI. kerület

    458 E Ft / hó
    3 szoba
    63 m²
    VI. kerület, Külső Terézváros, Révay utca
    Kiadó téglalakás, albérlet

    Budapest, VI. kerület

    340 E Ft / hó
    1 szoba
    33 m²
    XIII. kerület, Angyalföld, Bulcsú utca
    Kiadó téglalakás, albérlet

    Budapest, XIII. kerület

    320 E Ft / hó
    2 szoba
    52 m²
    IX. kerület, Ferencváros, Lónyay utca 19
    Kiadó téglalakás, albérlet

    Budapest, IX. kerület

    360 E Ft / hó
    2 + 2 szoba
    74 m²
    VI. kerület, Külső Terézváros, Teréz körút
    Kiadó téglalakás, albérlet

    Budapest, VI. kerület

    300 E Ft / hó
    2 szoba
    45 m²
    V. kerület, Belváros, Kígyó utca
    Kiadó téglalakás, albérlet

    Budapest, V. kerület

    732 E Ft / hó
    3 szoba
    84 m²
    II. kerület, Rézmál, Kulpa utca
    Kiadó téglalakás, albérlet

    Budapest, II. kerület

    295 E Ft / hó
    2 szoba
    80 m²
    XVI. kerület, Rákosszentmihály, Sándor utca 58
    Kiadó téglalakás, albérlet

    Budapest, XVI. kerület

    230 E Ft / hó
    2 szoba
    52 m²
    XX. kerület
    Kiadó ipari ingatlan

    Budapest, XX. kerület

    350 E Ft / hó
    791 m²
    127 m²
    VI. kerület, Külső Terézváros, Csengery utca
    Kiadó téglalakás, albérlet

    Budapest, VI. kerület

    220 E Ft / hó
    1 szoba
    35 m²
    V. kerület, Belváros, Deák Ferenc utca
    Kiadó téglalakás, albérlet

    Budapest, V. kerület

    550 E Ft / hó
    2 + 1 szoba
    82 m²
    V. kerület, Lipótváros, Akadémia utca
    Kiadó téglalakás, albérlet

    Budapest, V. kerület

    450 E Ft / hó
    1 + 1 szoba
    50 m²
    XX. kerület, Erzsébetfalva, Budapest XX. kerületében a Vágóhíd utcában
    Kiadó ipari ingatlan

    Budapest, XX. kerület

    300 E Ft / hó
    250 m²
    IX. kerület, Ferencváros, Haller u. 25
    Kiadó garázs

    Budapest, IX. kerület

    19 E Ft / hó
    14 m²
    VI. kerület, Külső Terézváros, Lovag utca
    Kiadó téglalakás, albérlet

    Budapest, VI. kerület

    420 E Ft / hó
    2 szoba
    69 m²
    XIII. kerület, Újlipótváros, Ipoly utca
    Kiadó téglalakás, albérlet

    Budapest, XIII. kerület

    300 E Ft / hó
    2 szoba
    43 m²
    XIX. kerület
    Kiadó panellakás, albérlet

    Budapest, XIX. kerület

    290 E Ft / hó
    3 szoba
    59 m²
    VI. kerület, Külső Terézváros, Révay utca
    Kiadó téglalakás, albérlet

    Budapest, VI. kerület

    360 E Ft / hó
    1 szoba
    37 m²

    Falusi CSOK ingatlanok

    Balatonszemes
    Eladó téglalakás

    Balatonszemes

    91.5 M Ft
    2 szoba
    0 m²
    Bag
    Eladó ikerház

    Bag

    93 M Ft
    3 szoba
    67 m²
    Szigliget, Soponyai út
    Eladó ikerház

    Szigliget

    429 M Ft
    7 + 2 szoba
    212 m²
    Bak
    Eladó családi ház

    Bak

    49.9 M Ft
    5 szoba
    140 m²
    Kislippó
    Eladó családi ház

    Kislippó

    17.99 M Ft
    3 szoba
    100 m²
    Himesháza
    Eladó családi ház

    Himesháza

    30 M Ft
    3 szoba
    92 m²
    Tápióság
    Eladó családi ház

    Tápióság

    57 M Ft
    4 szoba
    94 m²
    Sződ
    Eladó családi ház

    Sződ

    116.9 M Ft
    4 + 1 szoba
    102 m²