Stay Family Park

Eladó üzlethelyiség
Püspökladány, földszint

+ 17 kép 1/20
148 900 000 Ft148.9 M Ft 365 848 Ft/m2
407 m2
földszint
építés éve:2001

Részletes adatok

Fűtés: Gázkazán
Energetikai besorolás: Nem adta meg a hirdető

Az OTP Bank lakáshitel ajánlataFizetett hirdetés

+36 20 806
Mester Tibor
Debrecen Kürtös utca

Érdekel az OTP Bank kedvezményes lakáshitel ajánlata? *

* A kérdésre „Igen” válasz bejelölése esetén, az „Üzenet küldése” gombra kattintva kijelentem, hogy az OTP Bank Nyrt. Adatkezelési tájékoztatójának tartalmát megismertem és tudomásul vettem.

Eladó üzlethelyiség leírása

Eladó Püspökladányban egy sokoldalúan hasznosítható üzlethelyiség!

Kiváló adottságokkal rendelkező földszintes + tetőtér beépítéses épület, amely számos lehetőséget kínál üzleti és lakófunkcióra egyaránt.

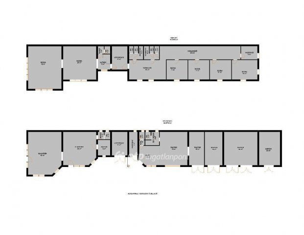
Az épület összesen 407 m2 beépített területtel rendelkezik, több különálló helyiségből áll, így akár üzletek, irodák, műhelyek vagy akár 4 lakás is kialakítható benne.

Főbb jellemzők:
- Telek mérete és beépíthetősége: 830 m2 és 40%
- Beépített terület: 236 m2 (földszint) + 171 m2 (tetőtér)
- Használati lehetőségek: üzletek, irodák, szolgáltatói egységek, lakások
- Parkolás: Telken belül 5 saját parkolóhely
- Elhelyezkedés: sík terepen, központi lokációban, oldalhatáron álló épület

Kialakítás és helyiségek:
Földszint:
- 2 db üzlethelyiség
- Raktárak - Különálló vizesblokkok (mosdók, WC-k)
- Garázsok és műhelyek

Tetőtér:
- Különálló szobák
- Üzlethelyiségek
- Különálló mosdók, WC-k

Műszaki adatok és felszereltség:
- Falazat: tégla
- Födém: monolit vasbeton
- Tető: nyeregtető, cserépfedéssel
- Nyílászárók: fa és fém szerkezetek
- Fűtés: gázkazán, melegvizes radiátorok, vegyestüzelésű kazán egy 1000 literes puffertartállyal, hűtő-fűtő klíma
- Közművek: teljes közművesítés (víz, csatorna, gáz, villany)

Az épület többféle funkcióra is alkalmas, így kiváló lehetőség vállalkozások, befektetők és ingatlanfejlesztők számára is. Az elrendezésnek és az építési szabályoknak megfelelően akár 4 önálló lakás, vagy több különálló üzlet és iroda is kialakítható benne.

A hirdetésben tervezett látványképek is meg vannak jelenítve, hogy segítsenek a végleges megjelenés pontosabb elképzelésében!

További információért hívjon bizalommal akár hétvégén is. Megtekintésre telefonos egyeztetés alapján van lehetőség. Kedvezményes kamatozású lakásvásárlási, felújítási hitelek, OTTHON START valamint CSOK és Babaváró ügyintézés az OTP hátterével irodánkban.

Hirdetés feltöltve: 2025. 11. 11. Utoljára módosítva: 2025. 11. 11.

Az ingatlan elhelyezkedése

Cím: Püspökladány, földszint

Eladó családi házak a környékről

Eladó családi ház
Eladó családi ház

Püspökladány

120 M Ft
2 szoba
200 m2
Eladó családi ház
Eladó családi ház

Debrecen

150 M Ft
7 szoba
300 m2
Eladó családi ház
Eladó családi ház

Püspökladány

13.9 M Ft
2 szoba
100 m2
Eladó családi ház
Eladó családi ház

Hajdúböszörmény

99 M Ft
2 + 1 szoba
142 m2
Eladó családi ház
Eladó családi ház

Debrecen, Lencztelep, Szeged utca

129.9 M Ft
7 szoba
240 m2
Eladó családi ház
Eladó családi ház

Püspökladány

59.9 M Ft
5 szoba
180 m2
Eladó családi ház
Eladó családi ház

Debrecen

66.9 M Ft
3 szoba
85 m2
Eladó családi ház
Eladó családi ház

Debrecen

150 M Ft
4 szoba
318 m2
Eladó családi ház
Eladó családi ház

Püspökladány, Bolyai utca 7

1.5 M Ft
2 szoba
36 m2
Eladó családi ház
Eladó családi ház

Püspökladány

49.8 M Ft
5 szoba
150 m2
Eladó családi ház
Eladó családi ház

Debrecen

105 M Ft
3 szoba
120 m2
Eladó családi ház
Eladó családi ház

Debrecen

139 M Ft
6 szoba
240 m2
Eladó családi ház
Eladó családi ház

Debrecen

75 M Ft
4 szoba
96 m2
Eladó családi ház
Eladó családi ház

Püspökladány

33 M Ft
2 szoba
70 m2
Eladó családi ház
Eladó családi ház

Püspökladány

22.9 M Ft
5 szoba
130 m2
Eladó családi ház
Eladó családi ház

Püspökladány

29.1 M Ft
3 szoba
515 m2
Eladó családi ház
Eladó családi ház

Püspökladány

63.5 M Ft
4 szoba
140 m2
Eladó családi ház
Eladó családi ház

Püspökladány, Bartók Béla utca 61

7.8 M Ft
1 + 1 szoba
54 m2
Eladó családi ház
Eladó családi ház

Püspökladány

39.5 M Ft
4 szoba
120 m2
Eladó családi ház
Eladó családi ház

Debrecen, Kádár dűlő

150 M Ft
4 szoba
140 m2
Eladó családi ház
Eladó családi ház

Debrecen, Haláp Tanya

361.95 M Ft
10 szoba
500 m2
Eladó családi ház
Eladó családi ház

Debrecen

248 M Ft
5 szoba
260 m2
Eladó családi ház
Eladó családi ház

Hajdúdorog, Templom utca

95 M Ft
9 szoba
270 m2
Eladó családi ház
Eladó családi ház

Püspökladány

29.5 M Ft
4 szoba
160 m2

Falusi CSOK ingatlanok

Eladó ikerház
Eladó ikerház

Balatonakali

165 M Ft
4 szoba
138 m2
Eladó családi ház
Eladó családi ház

Pórszombat

20.5 M Ft
3 szoba
88 m2
Eladó családi ház
Eladó családi ház

Tabdi

95 M Ft
45 szoba
1490 m2
Eladó sorház
Eladó sorház

Egervár

29.9 M Ft
3 szoba
90 m2
Eladó családi ház
Eladó családi ház

Balatonberény, Kodály Zotán utca 34

61.9 M Ft
4 + 1 szoba
95 m2
Eladó családi ház
Eladó családi ház

Tiszaroff

12.5 M Ft
2 szoba
63 m2
Eladó családi ház
Eladó családi ház

Öcsöd

15.9 M Ft
2 szoba
50 m2
Eladó családi ház
Eladó családi ház

Mezőfalva

39 M Ft
3 szoba
77 m2