Stay Family Park

Eladó üzlethelyiség
Mezőkovácsháza

+ 13 kép 1/16
17 000 000 Ft17 M Ft 163 462 Ft/m2
104 m2
építés éve:1986

Részletes adatok

Állapot: Felújítandó
Telekméret: 379 m2
Fűtés: Gázkonvektor
Közmű: Víz, Gáz, Villany
Energetikai besorolás: Nem adta meg a hirdető

Az OTP Bank lakáshitel ajánlataFizetett hirdetés

+36 20 405
Pócsik Attila
OTP Ingatlanpont

Érdekel az OTP Bank kedvezményes lakáshitel ajánlata? *

* A kérdésre „Igen” válasz bejelölése esetén, az „Üzenet küldése” gombra kattintva kijelentem, hogy az OTP Bank Nyrt. Adatkezelési tájékoztatójának tartalmát megismertem és tudomásul vettem.

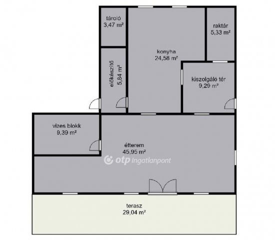
Eladó üzlethelyiség leírása

*** VÁLLALKOZÓK FIGYELEM *** Szeretne egy jól működő vállalkozáshoz jó helyet találni?
Mezőkovácsházán kedvező ár/érték arányú vendéglő eladó a strandnál. A 104 m2-es ingatlanban 50 fő, a teraszon további 12 fő kényelmesen kiszolgálható. A konyha felújítandó, az alapok adottak, van gáz, ipari áram, pára elszívó stb.

A fürdő gyógyvizének hőmérséklete a környéken egyedülállóan magas, 72 fokos. A fürdőt tápláló termálvíz magas ásványianyag tartalmú, nátrium-hidrogénkarbonátos, kloridos, jodidos, fluoridos, szulfidos ásványvíznek minősül, magas metabórsav és metakovasav tartalommal. Főként mozgásszervi betegségek, nőgyógyászati panaszok esetén javasolt, valamint kiváló stresszoldó hatása is van.

A városi rendezvények a vendéglő melletti területen kerülnek megrendezésre, alkalmi rendezvények lebonyolítására kiváló. Az ingatlan kiváló hosszútávú befektetési lehetőség.

Keressen bizalommal, ne hagyja ki ezt a lehetőséget. Az OTP Ingatlanpont a banki háttérrel eladóink, és vevőink igényeit teljeskörűen ki tudja szolgálni, az eladástól a vevői finanszírozásig. Hitel igénylés esetén akár egyedi kamatkedvezménnyel, jogosultság esetén az állami támogatásokhoz kapcsolódó felvilágosítással, teljeskörű pénzügyi tanácsadással és ügyintézéssel állunk ügyfeleink rendelkezésére.

Hirdetés feltöltve: 2025. 10. 23. Utoljára módosítva: 2025. 11. 02.

üzlethelyiségek ára Mezőkovácsházán

Ebből az összehasonlításból megtudhatod, hogyan viszonyul a lakás ára a környékbeli üzlethelyiségek átlagos árához. Ez nem azt jelenti, hogy ennyivel olcsóbb vagy drágább, mint amennyit a lakás ér, hanem hogy ennyivel tér el a környékbeli átlagtól.

Ennek a m² ára
Mezőkovácsháza m² ár
163 e Ft
193 e Ft 15%
Ennek az ára
Mezőkovácsháza átlagár
17 M Ft m Ft
24.3 m Ft 30%

Az ingatlan elhelyezkedése

Cím: Mezőkovácsháza

Eladó családi házak a környékről

Eladó családi ház
Eladó családi ház

Mezőkovácsháza

7 M Ft
3 szoba
77 m2
Eladó családi ház
Eladó családi ház

Mezőkovácsháza

42 M Ft
2 szoba
90 m2
Eladó családi ház
Eladó családi ház

Mezőkovácsháza

5.5 M Ft
3 szoba
91 m2
Eladó családi ház
Eladó családi ház

Mezőkovácsháza

52.9 M Ft
7 szoba
400 m2
Eladó családi ház
Eladó családi ház

Mezőkovácsháza

14.9 M Ft
4 szoba
148 m2
Eladó családi ház
Eladó családi ház

Mezőkovácsháza

3.3 M Ft
1 szoba
58 m2
Eladó családi ház
Eladó családi ház

Szarvas

7 M Ft
2 szoba
57 m2
Eladó családi ház
Eladó családi ház

Mezőkovácsháza

12 M Ft
3 szoba
82 m2
Eladó családi ház
Eladó családi ház

Doboz

55 M Ft
4 + 1 szoba
131 m2
Eladó családi ház
Eladó családi ház

Elek

6.9 M Ft
2 + 1 szoba
70 m2
Eladó családi ház
Eladó családi ház

Sarkad

15 M Ft
4 szoba
150 m2
Eladó családi ház
Eladó családi ház

Mezőkovácsháza

14 M Ft
4 + 1 szoba
130 m2
Eladó családi ház
Eladó családi ház

Békéscsaba

75.81 M Ft
4 szoba
95 m2
Eladó családi ház
Eladó családi ház

Szeghalom

12.9 M Ft
4 szoba
150 m2
Eladó családi ház
Eladó családi ház

Békéscsaba

35 M Ft
2 + 6 szoba
152 m2
Eladó családi ház
Eladó családi ház

Mezőkovácsháza

31.5 M Ft
3 szoba
77 m2
Eladó családi ház
Eladó családi ház

Szarvas

4.9 M Ft
1 + 1 szoba
40 m2
Eladó családi ház
Eladó családi ház

Kamut

9.98 M Ft
3 szoba
75 m2
Eladó családi ház
Eladó családi ház

Mezőkovácsháza

4.5 M Ft
2 szoba
65 m2
Eladó családi ház
Eladó családi ház

Gyula, Vár utca

85.9 M Ft
4 szoba
180 m2
Eladó családi ház
Eladó családi ház

Mezőkovácsháza

52.9 M Ft
7 szoba
400 m2
Eladó családi ház
Eladó családi ház

Mezőkovácsháza, Árpád utca

14.9 M Ft
4 szoba
148 m2
Eladó családi ház
Eladó családi ház

Mezőkovácsháza

4.5 M Ft
3 + 2 szoba
119 m2
Eladó családi ház
Eladó családi ház

Mezőkovácsháza

7.5 M Ft
2 szoba
109 m2

Falusi CSOK ingatlanok

Eladó családi ház
Eladó családi ház

Egyházasrádóc

69.5 M Ft
3 szoba
100 m2
Eladó családi ház
Eladó családi ház

Somlóvásárhely

39.8 M Ft
1 szoba
78 m2
Eladó családi ház
Eladó családi ház

Álmosd

13.9 M Ft
2 szoba
80 m2
Eladó családi ház
Eladó családi ház

Vásárosdombó

14.99 M Ft
2 szoba
69 m2
Eladó családi ház
Eladó családi ház

Mórichida

44.9 M Ft
3 szoba
89 m2
Eladó családi ház
Eladó családi ház

Rábacsécsény

45 M Ft
3 szoba
101 m2
Eladó családi ház
Eladó családi ház

Mezőfalva

39 M Ft
3 szoba
77 m2
Eladó családi ház
Eladó családi ház

Alattyán

8.5 M Ft
1 + 1 szoba
70 m2