Eladó üzlethelyiség
Győr

+ 5 kép 1/8
650 000 000 Ft650 M Ft 572 183 Ft/m2
1136 m2

Részletes adatok

Fűtés: Egyéb
Extrák: Lift
Energetikai besorolás: Nem adta meg a hirdető

Az OTP Bank lakáshitel ajánlataFizetett hirdetés

+36 30 194
Szabó Róbert
MEGAHOUSE GROUP : Madárhegyingatlan és Budaörsiházak iroda

Érdekel az OTP Bank kedvezményes lakáshitel ajánlata? *

* A kérdésre „Igen” válasz bejelölése esetén, az „Üzenet küldése” gombra kattintva kijelentem, hogy az OTP Bank Nyrt. Adatkezelési tájékoztatójának tartalmát megismertem és tudomásul vettem.

Eladó üzlethelyiség leírása

CSODÁLATOS , EGYEDI STÍLUSÚ 1136nm-es, 4 szintes üzleteggyüttes A BELVÁROS SZÍVÉBEN 650 M Ft-ért eladó.

Győr belvárosának legforgalmasabb sétálóutcájában többféle üzleti lehetőségre alkalmas üzlethelyiséget kínálunk megvételre.
Az épület nagy múltú, 1950-es években épült.
Az elmúlt években felújításra került: tetőszerkezet, villamos hálózat, légtechnika, gépészet, nagykonyhai berenezések.
Beépítésre került egy ÚJ étel lift, illetve teherlift is található.
A 4 szintes ház hasznos alapterülete összesen 1136 m2.

A belső elrendezés átalakítható, saját profil szerint kialakítható.
Megfelelő lehet: étterem, cukrászda, kereskedelmi tevékenységnek, egyéb vendéglátói típuskoknak, irodának, egészségügyi központnak, raktárnak, bemutatóteremnek, szépségszalon, oktatási kozpontnak illetve sok más lehetőség az üzemeltetésére.

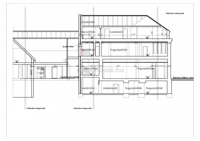
Jelenlegi kialakítása a következőképpen néz ki. (feltöltött alaprajzokon is látható)
Az ALAGSORban újonnan kialakított és teljesen berendezett borozó-söröző található, mely nyitásra kész.
FÖLDSZINTen étterem, cukrászda, mosdók, vizesblokkok, hűtőkamrák, konyha, raktárak.
EMELETens szintén étterem, vizesblokk, konyha található.
TETŐTÉRben található egy teljesen felszerelet cukrász üzem és irodák

Az ingatlan per és tehermentes, azonnal birtokba vehető.
Kiváló helye lehet itt a központi fekvés és egyedi stílus miatt miatt : vendéglátó egységnek, irodának, bemutatóteremnek, üzleháznak, kis különböző üzleteknek, egészségügyi szolgáltató komplexumnak, banknak, stb.
Ára: 650 M Ft mely áfamentes.
Várom érdeklődését!

Hirdetés feltöltve: 2023. 05. 18. Utoljára módosítva: 2025. 09. 17.

üzlethelyiségek ára Győrött

Ebből az összehasonlításból megtudhatod, hogyan viszonyul a lakás ára a környékbeli üzlethelyiségek átlagos árához. Ez nem azt jelenti, hogy ennyivel olcsóbb vagy drágább, mint amennyit a lakás ér, hanem hogy ennyivel tér el a környékbeli átlagtól.

Ennek a m² ára
Győr m² ár
572 e Ft
778 e Ft 26%
Ennek az ára
Győr átlagár
650 M Ft m Ft
223 m Ft -191%

Az ingatlan elhelyezkedése

Cím: Győr

Eladó üzlethelyiségek a környékről

Eladó üzlethelyiség
Eladó üzlethelyiség

Győr, Belváros, Kiss János u. 7

69.795 M Ft
2 szoba
78 m2
Eladó üzlethelyiség
Eladó üzlethelyiség

Győr

166.512 M Ft
109 m2
Eladó üzlethelyiség
Eladó üzlethelyiség

Győr

360 M Ft
797 m2
Eladó üzlethelyiség
Eladó üzlethelyiség

Mosonmagyaróvár

13.5 M Ft
54 m2
Eladó üzlethelyiség
Eladó üzlethelyiség

Győr, Belváros, Árpád út

29.9 M Ft
205 m2
Eladó üzlethelyiség
Eladó üzlethelyiség

Győr, Gyárváros, Puskás Tivadar u.8

74.9 M Ft
5 szoba
263 m2
Eladó üzlethelyiség
Eladó üzlethelyiség

Győr

650 M Ft
1136 m2
Eladó üzlethelyiség
Eladó üzlethelyiség

Győr

209.535 M Ft
137 m2
Eladó üzlethelyiség
Eladó üzlethelyiség

Mosonmagyaróvár, Szent István király út

68.184 M Ft
184 m2
Eladó üzlethelyiség
Eladó üzlethelyiség

Győr

54.9 M Ft
162 m²
80 m2
Eladó üzlethelyiség
Eladó üzlethelyiség

Győr

360 M Ft
797 m2
Eladó üzlethelyiség
Eladó üzlethelyiség

Mihályi, Hunyadi János utca

25.99 M Ft
1 szoba
166 m2
Eladó üzlethelyiség
Eladó üzlethelyiség

Győr

99 M Ft
5 szoba
65 m2
Eladó üzlethelyiség
Eladó üzlethelyiség

Győr, Gyárváros, Puskás Tivadar u.8

74.9 M Ft
5 szoba
263 m2
Eladó üzlethelyiség
Eladó üzlethelyiség

Mosonmagyaróvár

160.355 M Ft
308 m²
308 m2
Eladó üzlethelyiség
Eladó üzlethelyiség

Győr, Gyárváros, Gyóni Géza sétány

70.21 M Ft
123 m2
Eladó üzlethelyiség
Eladó üzlethelyiség

Győr

210 M Ft
250 m2
Eladó üzlethelyiség
Eladó üzlethelyiség

Enese

150 M Ft
2 + 1 szoba
740 m2
Eladó üzlethelyiség
Eladó üzlethelyiség

Sopron

29.99 M Ft
199 m2
Eladó üzlethelyiség
Eladó üzlethelyiség

Sopron, Belváros, Színház utca

152.69 M Ft
1 szoba
379 m2
Eladó üzlethelyiség
Eladó üzlethelyiség

Győr

650 M Ft
1136 m2
Eladó üzlethelyiség
Eladó üzlethelyiség

Győr

28 M Ft
2 szoba
24 m2
Eladó üzlethelyiség
Eladó üzlethelyiség

Győr, Újváros, Bercsényi liget

108.41 M Ft
214 m2
Eladó üzlethelyiség
Eladó üzlethelyiség

Győr

248.305 M Ft
162 m2

Falusi CSOK ingatlanok

Eladó családi ház
Eladó családi ház

Szob, Petőfi Sándor utca

23.5 M Ft
2 szoba
68 m2
Eladó téglalakás
Eladó téglalakás

Balatonakali

110 M Ft
4 szoba
145 m2
Eladó családi ház
Eladó családi ház

Vácegres

28 M Ft
1 + 3 szoba
44 m2
Eladó családi ház
Eladó családi ház

Recsk

21 M Ft
4 szoba
220 m2
Eladó családi ház
Eladó családi ház

Andornaktálya

65 M Ft
3 szoba
80 m2
Eladó családi ház
Eladó családi ház

Sásd

24.911 M Ft
3 szoba
123 m2
Eladó ikerház
Eladó ikerház

Balatonkenese

84.99 M Ft
3 szoba
76 m2
Eladó családi ház
Eladó családi ház

Somogygeszti

10.9 M Ft
2 szoba
115 m2