Astora Olive Club House

Eladó üzlethelyiség
Debrecen, földszint

+ 17 kép 1/20
750 000 000 Ft750 M Ft 1 071 429 Ft/m2
700 m²
földszint
építés éve:2000

Részletes adatok

Állapot: Felújított
Fűtés: Egyéb
Emelet: földszint
Energetikai besorolás: Nem adta meg a hirdető

Az OTP Bank lakáshitel ajánlataFizetett hirdetés

+36 30 419
Balla László
OTP Ingatlanpont

Érdekel az OTP Bank kedvezményes lakáshitel ajánlata? *

* A kérdésre „Igen” válasz bejelölése esetén, az „Üzenet küldése” gombra kattintva kijelentem, hogy az OTP Bank Nyrt. Adatkezelési tájékoztatójának tartalmát megismertem és tudomásul vettem.

Eladó üzlethelyiség leírása

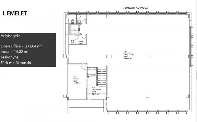
Eladó irodaház Debrecen szívében ? azonnal birtokba vehető!

Debrecen az ország egyik legdinamikusabban fejlődő gazdasági, egyetemi, turisztikai és kulturális központja. A városban olyan meghatározó nagyvállalatok telepedtek meg, mint a BMW, az NI, a TEVA, a KITE vagy a HUNÉP. A folyamatos beruházások, a határ közelsége és a saját repülőtér mind hozzájárulnak a térség kiemelkedő innovációs és gazdasági fejlődéséhez.

Az eladó irodaház a belváros szívében, a központtól mindössze 3 perc sétára található. A modern, inspiráló környezetben kialakított épület három szinten kínál irodákat, közös konyhával és minden szükséges infrastruktúrával.

Kiváló elhelyezkedés és infrastruktúra:

Főtér és Nagytemplom: 5 perc

Villamosmegálló (1, 2-es járat): 1?4 perc

Buszmegálló (11, 14I, 15, 15Y, 24, 24Y, 43): 2 perc

200 férőhelyes parkoló közvetlenül az épület mögött

Bank, posta, gyógyszertár, éttermek és bevásárlóközpont pár perc sétára

Az ingatlan fő előnyei:
? Kivételes lokáció a belvárosban
? Háromszintes, azonnal birtokba vehető irodaház
? Kényelmes közlekedés autóval és tömegközlekedéssel
? Széleskörű szolgáltatások közvetlen közelben
? Stabil értéktartás és befektetési potenciál

Ez az irodaház ideális választás azok számára, akik Debrecen központjában szeretnének saját tulajdonú irodát, vagy hosszú távra keresnek értékálló befektetést.
A megvásárlásban segítséget nyujthat a vállakozásoknak elérhető OTP-s beruházási hitel illetve a KAVOS 3% hitelt. A hitel széles körben alkalmas beruházási célok megvalósítására,
állami kamat-, kezelési költség- és kezességi díjtámogatás,
akár 500 millió forint hitelösszeg igényelhető,
legfeljebb 10 éves futamidőre nyújtható.
Megtekíntésért hívjon most!

Az energetikai tanúsítvány készítése folyamatban van, amint rendelkezésre áll, úgy azzal a hirdetés frissítésre kerül.

Érd.Balla László +36 30 419 5022

Referencia szám: M313578

Hirdetés feltöltve: 2026. 04. 11. Utoljára módosítva: 2026. 05. 22.

üzlethelyiségek ára Debrecenben

Ebből az összehasonlításból megtudhatod, hogyan viszonyul a lakás ára a környékbeli üzlethelyiségek átlagos árához. Ez nem azt jelenti, hogy ennyivel olcsóbb vagy drágább, mint amennyit a lakás ér, hanem hogy ennyivel tér el a környékbeli átlagtól.

Ennek a m² ára
Debrecen m² ár
1071 e Ft
881 e Ft -22%
Ennek az ára
Debrecen átlagár
750 M Ft m Ft
44 m Ft -1,606%

Az ingatlan elhelyezkedése

Cím: Debrecen, földszint

Eladó üzlethelyiségek a környékről

Debrecen, Péterfia, Hunyadi János utca
Eladó üzlethelyiség

Debrecen

110 M Ft
154 m²
Debrecen
Eladó üzlethelyiség

Debrecen

440 M Ft
397 m²
Balmazújváros, Vasútsor
Eladó üzlethelyiség

Balmazújváros

15.9 M Ft
4 + 1 szoba
80 m²
Tiszacsege
Eladó üzlethelyiség

Tiszacsege

7.9 M Ft
100 m²
0 m²
Derecske
Eladó üzlethelyiség

Derecske

41.9 M Ft
118 m²
Mezőpeterd
Eladó üzlethelyiség

Mezőpeterd

340 M Ft
11 szoba
764 m²
Debrecen
Eladó üzlethelyiség

Debrecen

135 M Ft
167 m²
Debrecen
Eladó üzlethelyiség

Debrecen

46 M Ft
70 m²
Debrecen
Eladó üzlethelyiség

Debrecen

42 M Ft
24 m²
Debrecen
Eladó üzlethelyiség

Debrecen

139 M Ft
200 m²
Debrecen, Belváros, Piac utca
Eladó üzlethelyiség

Debrecen

69.9 M Ft
36 m²
Debrecen
Eladó üzlethelyiség

Debrecen

42 M Ft
24 m²
Debrecen
Eladó üzlethelyiség

Debrecen

109.9 M Ft
150 m²
Debrecen
Eladó üzlethelyiség

Debrecen

139 M Ft
299 m²
183 m²
Debrecen
Eladó üzlethelyiség

Debrecen

139 M Ft
299 m²
183 m²
Debrecen
Eladó üzlethelyiség

Debrecen

1700 M Ft
1693 m²
Debrecen
Eladó üzlethelyiség

Debrecen

42 M Ft
24 m²
Debrecen
Eladó üzlethelyiség

Debrecen

96 M Ft
150 m²
Vámospércs
Eladó üzlethelyiség

Vámospércs

50 M Ft
1114 m²
550 m²
Debrecen
Eladó üzlethelyiség

Debrecen

110 M Ft
154 m²
Püspökladány
Eladó üzlethelyiség

Püspökladány

520 M Ft
21 szoba
1143 m²
Debrecen, Péterfia, Hunyadi János utca
Eladó üzlethelyiség

Debrecen

110 M Ft
154 m²
Debrecen
Eladó üzlethelyiség

Debrecen

177 M Ft
384 m²
Debrecen
Eladó üzlethelyiség

Debrecen

96 M Ft
150 m²

Falusi CSOK ingatlanok

Patca
Eladó családi ház

Patca

21.9 M Ft
4 szoba
104 m²
Hegyeshalom, Margaréta utca 12
Eladó téglalakás

Hegyeshalom

46.91 M Ft
2 szoba
43 m²
Szabadbattyán
Eladó családi ház

Szabadbattyán

139.9 M Ft
4 szoba
201 m²
Felsőlajos
Eladó családi ház

Felsőlajos

100 M Ft
4 szoba
140 m²
Hajós
Eladó családi ház

Hajós

49.5 M Ft
6 szoba
394 m²
Ceglédbercel
Eladó családi ház

Ceglédbercel

89 M Ft
4 szoba
135 m²
Tápióság
Eladó családi ház

Tápióság

71.5 M Ft
4 szoba
72 m²
Tápiószőlős
Eladó családi ház

Tápiószőlős

39.9 M Ft
4 szoba
120 m²