River Life

Eladó telek
Piliscsaba, Vár u

+ 7 kép 1/10
65 000 000 Ft65 M Ft 19 697 Ft/m2
3300 m²

Részletes adatok

Telekméret: 3300 m2
Fűtés: Egyéb
Övezet: Lakóövezet
Energetikai besorolás: Nem adta meg a hirdető

Az OTP Bank lakáshitel ajánlataFizetett hirdetés

+36 70 246
Budakeszi Ingatlan Hálózat
BudakesziIngatlanHalozat

Érdekel az OTP Bank kedvezményes lakáshitel ajánlata? *

* A kérdésre „Igen” válasz bejelölése esetén, az „Üzenet küldése” gombra kattintva kijelentem, hogy az OTP Bank Nyrt. Adatkezelési tájékoztatójának tartalmát megismertem és tudomásul vettem.

Eladó telek leírása

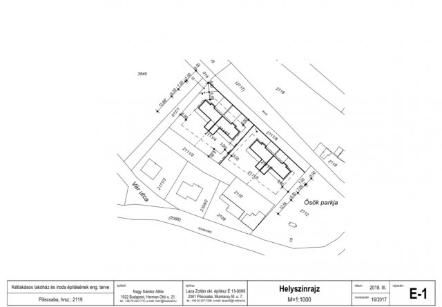
BEFEKTETŐK FIGYELEM.Piliscsabán, a Ősök park és a kenyérmezei patak találkozásánál eladó egy nagy méretű építési telek, látványtervvel.A telek jelenleg nincs közművesítve, de a szomszédos Vár utcáról lehet bevezetni. A kenyérmezei patak mellet fog megépülni a nemzetközi bicikli út. Ez most van tárgyalások alatt.
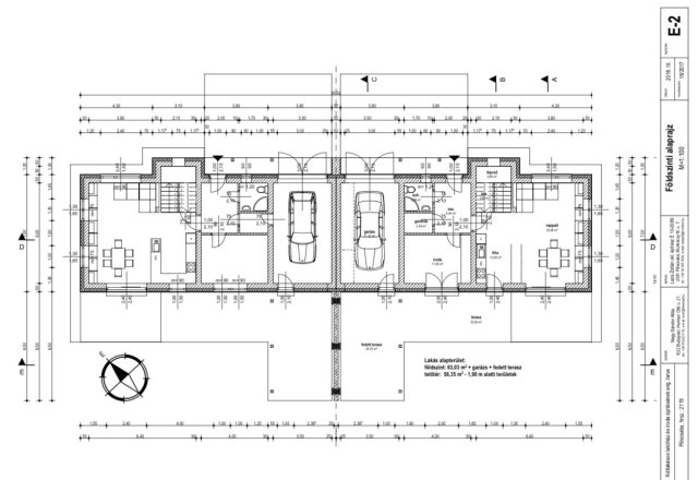
- Kocsibejárás a Vár utcából lesz külön úton, egészen a ház aljába tervezett garázsig.
- Terület ikerházanként kb. 1600 m2 - ezt kell kerítéssel ketté osztani.
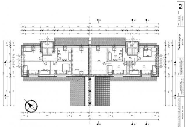
- Szobák két szinten - a tervrajzon.
Közlben, polgármesteri hivatal, boltok, posta, vasútállomás.

Hirdetés feltöltve: 2026. 04. 28. Utoljára módosítva: 2026. 05. 22.

Telkek ára Piliscsabán

Ebből az összehasonlításból megtudhatod, hogyan viszonyul a lakás ára a környékbeli telkek átlagos árához. Ez nem azt jelenti, hogy ennyivel olcsóbb vagy drágább, mint amennyit a lakás ér, hanem hogy ennyivel tér el a környékbeli átlagtól.

Ennek a m² ára
Piliscsaba m² ár
20 e Ft
32 e Ft 38%
Ennek az ára
Piliscsaba átlagár
65 M Ft m Ft
53.2 m Ft -22%

Az ingatlan elhelyezkedése

Cím: Piliscsaba, Vár u

Eladó telkek a környékről

Piliscsaba
Eladó telek

Piliscsaba

49.9 M Ft
1200 m²
0 m²
Tápiószele
Eladó telek

Tápiószele

1.8 M Ft
600 m²
0 m²
Piliscsaba
Eladó telek

Piliscsaba

49 M Ft
1040 m²
0 m²
Üllő
Eladó telek

Üllő

775 M Ft
6.2 ha
Szigetszentmiklós, Városközpont
Eladó telek

Szigetszentmiklós

40 M Ft
2766 m²
Piliscsaba
Eladó telek

Piliscsaba

49 M Ft
1019 m²
0 m²
Piliscsaba, Piliscsaba - kertváros
Eladó telek

Piliscsaba

75 M Ft
1064 m²
0 m²
Budakeszi, Budakeszi kertváros
Eladó telek

Budakeszi

6.9 M Ft
1400 m²
0 m²
Tápiógyörgye
Eladó telek

Tápiógyörgye

3 M Ft
719 m²
0 m²
Piliscsaba
Eladó telek

Piliscsaba

49 M Ft
1051 m²
0 m²
Budakeszi, Budakeszi külterület
Eladó telek

Budakeszi

39.9 M Ft
2800 m²
0 m²
Gödöllő, Központhoz közeli csendes utca
Eladó telek

Gödöllő

350.5 M Ft
9825 m²
0 m²
Solymár, Solymár külterület
Eladó telek

Solymár

25.9 M Ft
2 szoba
40 m²
Piliscsaba
Eladó telek

Piliscsaba

69 M Ft
2000 m²
0 m²
Páty, Páty - kertváros
Eladó telek

Páty

58 M Ft
1600 m²
0 m²
Szentendre, Szarvas hegyen eladó belterületi telek!
Eladó telek

Szentendre

69 M Ft
1590 m²
50 m²
Csömör, Híd utca
Eladó telek

Csömör

75 M Ft
3052 m²
0 m²
Piliscsaba, Panorámás építési telek
Eladó telek

Piliscsaba

20.8 M Ft
650 m²
Szigetszentmiklós, Városközpont
Eladó telek

Szigetszentmiklós

29.9 M Ft
2234 m²
Csömör, Csömör - szántó terület
Eladó telek

Csömör

70 M Ft
9000 m²
0 m²
Piliscsaba
Eladó telek

Piliscsaba

49 M Ft
1009 m²
0 m²
Piliscsaba
Eladó telek

Piliscsaba

49 M Ft
1106 m²
0 m²
Piliscsaba
Eladó telek

Piliscsaba

42.5 M Ft
4218 m²
0 m²
Piliscsaba
Eladó telek

Piliscsaba

49 M Ft
1014 m²
0 m²

Falusi CSOK ingatlanok

Kenyeri
Eladó családi ház

Kenyeri

26.566 M Ft
3 szoba
167 m²
Balatonszemes
Eladó téglalakás

Balatonszemes

125.2 M Ft
2 szoba
50 m²
Jászkarajenő
Eladó családi ház

Jászkarajenő

17 M Ft
3 szoba
81 m²
Hajós
Eladó családi ház

Hajós

49.5 M Ft
6 szoba
394 m²
Bag
Eladó családi ház

Bag

35 M Ft
2 szoba
26 m²
Tápiószőlős
Eladó családi ház

Tápiószőlős

39.9 M Ft
4 szoba
120 m²
Becsehely
Eladó családi ház

Becsehely

24.6 M Ft
2 szoba
99 m²
Balatonszemes, Ady Endre u
Eladó téglalakás

Balatonszemes

64.9 M Ft
1 szoba
37 m²