Oasis Residence

Eladó telek
Gyál

+ 7 kép 1/10
54 900 000 Ft54.9 M Ft 53 876 Ft/m2

Részletes adatok

Telekméret: 1019 m2
Fűtés: Egyéb
Övezet: Lakóövezet
Energetikai besorolás: Nem adta meg a hirdető

Az OTP Bank lakáshitel ajánlataFizetett hirdetés

+36 30 560
Nyegrutz Tamás
referens

Érdekel az OTP Bank kedvezményes lakáshitel ajánlata? *

* A kérdésre „Igen” válasz bejelölése esetén, az „Üzenet küldése” gombra kattintva kijelentem, hogy az OTP Bank Nyrt. Adatkezelési tájékoztatójának tartalmát megismertem és tudomásul vettem.

Eladó telek leírása

REMEK LEHETŐSÉG GYÁLON, CSAK NÁLUNK, ÜRES ÉPÍTÉSI TELKEK! Gyálon az Egressy út - Venyige köz környezetében, eladásra kínálunk 2 db. egymás mellett lévő építési telket egyben, vagy külön-külön is.

Igény szerint komplett engedélyeztetett tervekkel 2 db. ikerház megépítésére, összesen 4 db. lakásra!

A víz csatorna bevezetés folyamatban és az elektromos órafogadó kiépítés szintén folyamatban + az EON hálózatfejlesztési hozzájárulás is benne van az árban!
Az áramot elviekben 2027. májusában hozzák, erről írásos EON papírja is van a tulajdonosnak.

A telkek megközelíthetősége egy saját-privát nyeles részen lehetséges, amely 6 méter széles.

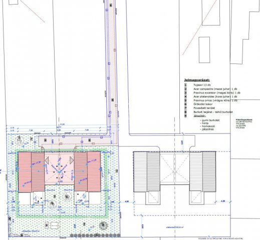
TELEKRE ÉS AZ ÉPÜLETRE VONATKOZÓ ADATOK:
Építési övezet: Lke-1
TELEK TERÜLETE: 1019,00 m2
Beépíthető telek terület: 890,00 m2
Telek nyélterülete: 129,00 m2
Tervezett lakóépület beépített alapterülete: 264,67 m2
Beépítési százalék: 264,67/890,00=0,297382 - 29,74%< 30,00 %
ÉPÍTMÉNYMAGASSÁG :
Tervezett lakóépület építménymagassága: 4,58 m < 5,00 m
SZINTERÜLETI MUTATÓ:
Tervezett lakóépület szintterülete (264,67+159,52): 424,19 m2
Szinterületi mutató: 424,19 m2/1019,00m2= 0,4162 50%

A telkek eladási ára darabonként: 54,9 MFt./db.

Információk szerint, az Egressy út teljes felújítása-kiszélesítése-átépítése 2028-ban várható.

Az ingatlan részletes ismertetése és bemutatása előre egyeztetett időpontban lehetséges, melyet nagyon rugalmasan kezelünk, akár HÉTVÉGÉN is.
További kérdéseivel kapcsolatban várom a jelentkezését.
Amennyiben Önnek a vásárláshoz szüksége lenne hitelre, babaváró kölcsönre, lakástakarékra, stb., kezdeményezheti a kapcsolatfelvételt bankfüggetlen hitelügyintézőinkkel, teljesen DÍJMENTESEN.
Közel 25 év szakmai tapasztalattal rendelkezem, eladó vagy kiadó ingatlana értékesítése vagy bérbeadása esetén, készséggel állok az Ön rendelkezésére is, keressen bizalommal. ...TOVÁBBI, TÖBBEZRES INGATLAN KÍNÁLAT: www.gdn-ingatlan.hu - GDN azonosító: 393455

Hirdetés feltöltve: 2026. 03. 10. Utoljára módosítva: 2026. 05. 10.

Telkek ára Gyálon

Ebből az összehasonlításból megtudhatod, hogyan viszonyul a lakás ára a környékbeli telkek átlagos árához. Ez nem azt jelenti, hogy ennyivel olcsóbb vagy drágább, mint amennyit a lakás ér, hanem hogy ennyivel tér el a környékbeli átlagtól.

Ennek a m² ára
Gyál m² ár
54 e Ft
26 e Ft -111%
Ennek az ára
Gyál átlagár
54.9 M Ft m Ft
137.5 m Ft 60%

Az ingatlan elhelyezkedése

Cím: Gyál

Eladó ingatlanok a környékről

Pécel
Eladó családi ház

Pécel

89.9 M Ft
3 szoba
71 m²
Dánszentmiklós
Eladó ikerház

Dánszentmiklós

67 M Ft
4 szoba
85 m²
Csömör, Csömör - szántó terület
Eladó telek

Csömör

70 M Ft
9000 m²
0 m²
Szentlőrinckáta
Eladó telek

Szentlőrinckáta

5.5 M Ft
1594 m²
Gyál
Eladó telek

Gyál

21 M Ft
847 m²
0 m²
Gyál
Eladó telek

Gyál

21 M Ft
847 m²
0 m²
Gyál
Eladó telek

Gyál

150 M Ft
1031 m²
0 m²
Tápiószele
Eladó telek

Tápiószele

1.8 M Ft
600 m²
0 m²
Sóskút
Eladó telek

Sóskút

29.5 M Ft
2647 m²
Üllő
Eladó telek

Üllő

775 M Ft
6.2 ha
Gyál, Jálics-Holdas
Eladó telek

Gyál

45.9 M Ft
801 m²
0 m²
Szigetszentmiklós, Városközpont
Eladó telek

Szigetszentmiklós

40 M Ft
2766 m²
Budakeszi, Budakeszi külterület
Eladó telek

Budakeszi

39.9 M Ft
2800 m²
0 m²
Gyál, Jálics-Holdas
Eladó telek

Gyál

69.9 M Ft
1960 m²
0 m²
Tápiógyörgye
Eladó telek

Tápiógyörgye

3 M Ft
719 m²
0 m²
Gyál
Eladó telek

Gyál

180 M Ft
6043 m²
0 m²
Páty, Páty - üdülőövezet
Eladó telek

Páty

67 M Ft
5500 m²
0 m²
Budakeszi
Eladó telek

Budakeszi

300 M Ft
2972 m²
0 m²
Dunaharaszti
Eladó családi ház

Dunaharaszti

159.9 M Ft
5 szoba
0 m²
Üröm, Üröm, Völgyliget II lakópark
Eladó családi ház

Üröm

260 M Ft
5 szoba
180 m²
Pilisszentlászló
Eladó hotel

Pilisszentlászló

225 M Ft
192 m²
Szentendre, Szarvas hegyen eladó belterületi telek!
Eladó telek

Szentendre

69 M Ft
1590 m²
50 m²
Kiskunlacháza
Eladó családi ház

Kiskunlacháza

55.9 M Ft
3 + 1 szoba
70 m²
Dunakeszi
Eladó üzlethelyiség

Dunakeszi

46.9 M Ft
30 m²

Falusi CSOK ingatlanok

Tab
Eladó családi ház

Tab

64.99 M Ft
4 szoba
160 m²
Röszke
Eladó családi ház

Röszke

69.99 M Ft
4 szoba
99 m²
Pilisszentkereszt
Eladó családi ház

Pilisszentkereszt

68.9 M Ft
2 szoba
50 m²
Ásványráró
Eladó családi ház

Ásványráró

42.5 M Ft
703 m²
69 m²
Hegyeshalom, Margaréta utca 12
Eladó téglalakás

Hegyeshalom

50.09 M Ft
2 szoba
43 m²
Tab, Rákóczi utca 45
Eladó családi ház

Tab

17.13 M Ft
1 + 1 szoba
105 m²
Vértesboglár
Eladó családi ház

Vértesboglár

131 M Ft
5 szoba
147 m²
Mándok, Mónus Illés utca 12
Eladó családi ház

Mándok

0.1 M Ft
2 szoba
99 m²