Aerogate Homes

Eladó telek
Budapest, IV. kerület, Megyer, Ady Endre utca

+ 2 kép 1/5
87 000 000 Ft87 M Ft 399 083 Ft/m2
218 m2

Részletes adatok

Telekméret: 218 m2
Fűtés: Egyéb
Övezet: Lakóövezet
Energetikai besorolás: Nem adta meg a hirdető

Az OTP Bank lakáshitel ajánlataFizetett hirdetés

+36 70 771
Tecnocasa - IL Quarto Studio Kft.
referens

Érdekel az OTP Bank kedvezményes lakáshitel ajánlata? *

* A kérdésre „Igen” válasz bejelölése esetén, az „Üzenet küldése” gombra kattintva kijelentem, hogy az OTP Bank Nyrt. Adatkezelési tájékoztatójának tartalmát megismertem és tudomásul vettem.

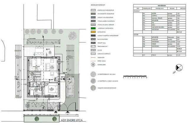
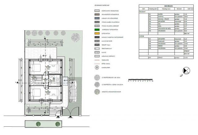
Eladó telek leírása

Megyeren, csendes, családiházas övezetben, eladásra kínálunk egy 218 nm-es telket engedélyezett építési tervekkel.

A telek per, teher és igénymentes, átadási ideje: azonnal.

A telekre egy nettó 87 nm-es, belső kétszintes, 4 szobás családi ház építhető+autóbeálló.

A kerítés teljesen új, illetve megtörtént a ház beton alapzatának kiöntése is.

A közelben megtalálható a 122E, a 30-as, 196-os és a 147-es busz megállója. Újpest-központ és az M3-as metróállomás busszal 15 perc alatt megközelíthető. A belváros tömegközlekedéssel és autóval egyaránt rövid időn belül elérhető.

A hirdetésben szereplő adatok tájékoztató jellegűek!

Egyes ingatlanjaink esetében csere és ingatlanbeszámítás is lehetséges. Továbbá ügyfeleink részére keresünk eladó ingatlant, tulajdonrészt, vagy haszonélvezeti joggal terhelt ingatlant Budapesten és az agglomerációban. A részletekről kérjük érdeklődjön telefonon.

Bankfüggetlen hiteltanácsadóink, az ország összes pénzintézete közül gyorsan és gördülékenyen találja meg az Önnek legmegfelelőbb konstrukciót, egyedi, személyre szabott kedvezményekkel.

A KÖZVETÍTÉS VEVŐINK RÉSZÉRE DÍJMENTES!

Hirdetés feltöltve: 2025. 11. 25. Utoljára módosítva: 2026. 01. 13.

Telkek ára Budapesten

Ebből az összehasonlításból megtudhatod, hogyan viszonyul a lakás ára a környékbeli telkek átlagos árához. Ez nem azt jelenti, hogy ennyivel olcsóbb vagy drágább, mint amennyit a lakás ér, hanem hogy ennyivel tér el a környékbeli átlagtól.

Ennek a m² ára
IV. kerület m² ár
Budapest m² ár
399 e Ft
159 e Ft -151%
181 e Ft -120%
Ennek az ára
IV. kerület átlagár
Budapest átlagár
87 M Ft m Ft
194.4 m Ft 55%
203.4 m Ft 57%

Az ingatlan elhelyezkedése

Cím: Budapest, IV. kerület, Megyer, Ady Endre utca

Eladó ingatlanok a környékről

Eladó téglalakás
Eladó téglalakás

III. kerület, Óbuda, Szomolnok utca

89.9 M Ft
2 + 2 szoba
96 m2
Eladó téglalakás
Eladó téglalakás

XIV. kerület

66.9 M Ft
1 + 1 szoba
46 m2
Eladó téglalakás
Eladó téglalakás

VI. kerület

84.9 M Ft
2 szoba
54 m2
Eladó téglalakás
Eladó téglalakás

XI. kerület, Lágymányos, Móricz Zsigmond körtér

89.5 M Ft
2 szoba
52 m2
Eladó téglalakás
Eladó téglalakás

XIII. kerület, Újlipótváros

85.2 M Ft
2 szoba
58 m2
Eladó téglalakás
Eladó téglalakás

I. kerület, Krisztinaváros, Feszty Árpád utca

78.99 M Ft
1 szoba
28 m2
Eladó garázs
Eladó garázs

XIII. kerület, Angyalföld

6.5 M Ft
12 m2
Eladó iroda
Eladó iroda

I. kerület, Víziváros, Széna tér

189 M Ft
4 szoba
90 m2
Eladó téglalakás
Eladó téglalakás

VI. kerület, Külső Terézváros, Szív utca

124.9 M Ft
3 szoba
94 m2
Eladó családi ház
Eladó családi ház

XXII. kerület, Budafok, Baross utca

222 M Ft
6 + 1 szoba
200 m2
Eladó téglalakás
Eladó téglalakás

VI. kerület, Külső Terézváros, Szófia utca

112.9 M Ft
4 szoba
103 m2
Eladó téglalakás
Eladó téglalakás

XIII. kerület

61 M Ft
1 + 1 szoba
38 m2
Eladó téglalakás
Eladó téglalakás

VII. kerület, Belső Erzsébetváros, Erzsébet körút

160 M Ft
3 szoba
88 m2
Eladó téglalakás
Eladó téglalakás

XVIII. kerület

87.5 M Ft
3 szoba
67 m2
Eladó téglalakás
Eladó téglalakás

III. kerület, Óbudaisziget, Folyamőr utca

69.9 M Ft
1 szoba
25 m2
Eladó telek
Eladó telek

IV. kerület, Újpest

499.99 M Ft
1439 m²
Eladó garázs
Eladó garázs

XIII. kerület, Angyalföld

6.5 M Ft
12 m2
Eladó garázs
Eladó garázs

XIII. kerület, Angyalföld

6.5 M Ft
12 m2
Eladó téglalakás
Eladó téglalakás

VIII. kerület, Palotanegyed, Rákóczi út

185 M Ft
5 szoba
121 m2
Eladó téglalakás
Eladó téglalakás

I. kerület, Krisztinaváros, Széna tér

189 M Ft
4 szoba
90 m2
Eladó téglalakás
Eladó téglalakás

V. kerület, Belváros, Belgrád rakpart

78 M Ft
1 + 1 szoba
42 m2
Eladó telek
Eladó telek

IV. kerület, Székesdűlő

39.99 M Ft
405 m²
Eladó telek
Eladó telek

IV. kerület, Újpest

2129.63 M Ft
22903 m²
Eladó telek
Eladó telek

IV. kerület

39.99 M Ft
405 m²

Falusi CSOK ingatlanok

Eladó családi ház
Eladó családi ház

Balatonszepezd

299 M Ft
5 szoba
220 m2
Eladó téglalakás
Eladó téglalakás

Balatonszemes

91.5 M Ft
2 szoba
60 m2
Eladó sorház
Eladó sorház

Mezőlak

8.9 M Ft
2 szoba
75 m2
Eladó családi ház
Eladó családi ház

Ásványráró

134 M Ft
5 szoba
230 m2
Eladó családi ház
Eladó családi ház

Nagytevel

41.9 M Ft
2 + 1 szoba
75 m2
Eladó családi ház
Eladó családi ház

Újhartyán, Gödör utca

81.99 M Ft
3 szoba
110 m2
Eladó családi ház
Eladó családi ház

Kunadacs

34 M Ft
240 m2
Eladó családi ház
Eladó családi ház

Balatonfenyves

430 M Ft
4 szoba
274 m2