Eladó telek
Abony

+ 3 kép 1/6
7 500 000 Ft7.5 M Ft 10 699 Ft/m2
701 m2

Részletes adatok

Telekméret: 701 m2
Fűtés: Egyéb
Közmű: Gáz, Csatorna
Övezet: Lakóövezet
Energetikai besorolás: Nem adta meg a hirdető
Zenga Premier

Friss hirdetések, amiket nem találsz meg más ingatlankereső portálon.

Fedezd fel elsőként a Zenga Premier címkés eladó ingatlanokat!

További részletek a zenga.hu-n

Az OTP Bank lakáshitel ajánlataFizetett hirdetés

Hitelösszeg 10 millió Ft
Futamidő 20 év
Induló törlesztőrészlet 67 508 Ft
Törlesztőrészlet a 13. hónaptól 86 071 Ft
THM 8,7 %

A tájékoztatás nem teljes körű és nem minősül ajánlattételnek. Az OTP Évnyerő Lakáshitelei 1 éves türelmi idős kölcsönök, amellyel az első 12 hónapban alacsonyabb a havi törlesztőrészlet. A tőke törlesztését a 13. hónaptól kell megkezdeni.

    Részletes kalkuláció
    +36 70 435
    Bakos-Dósa Ildikó
    referens

    Érdekel az OTP Bank kedvezményes lakáshitel ajánlata? *

    * A kérdésre „Igen” válasz bejelölése esetén, az „Üzenet küldése” gombra kattintva kijelentem, hogy az OTP Bank Nyrt. Adatkezelési tájékoztatójának tartalmát megismertem és tudomásul vettem.

    Eladó telek leírása

    Eladó telek Abonyban családi ház építésére vonatkozó dokumentációval!

    Abonyban kínálok Lf-1 övezetbe tartozó telket eladásra, a Helyi Építési Szabályzat szerinti paraméterek lentebb!

    - utcafront 14,5 m
    - gázcsonk és csatorna csonk a telken belül
    - az alap kitűzés megtörtént
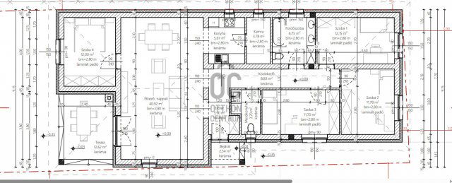
    - a hirdetési ár tartalmazza: INGATLANRA TERVEZETT LAKÓÉPÜLET
    EGYSZERŰ BEJELENTÉSI TERVDOKUMENTÁCIÓ-ját alaprajzzal, műszaki leírással, minden egyébbel

    Belső helyiségek tervezett mérete összesen: 121,18 nm
    Tervezett teraszokkal együtt összesen: 136,34 nm

    (1)Lf-1 jelű építési övezet előírásai:
    a)Beépítési mód
    aa) oldalhatáron álló
    ab)18 méternél szélesebb és saroktelek esetén: szabadon álló
    b)Kialakítható legkisebb telekterület (m2)700
    c)A beépítésnél alkalmazható terepszint feletti legnagyobb beépítettség (%)30
    d)A beépítésnél alkalmazható legnagyobb épületmagasság (m)5,0
    e)A beépítésnél alkalmazható legkisebb zöldfelületi arány (%)40
    f)A közműellátás mértéke:teljes
    (2)Az építési övezetben elhelyezhető épület a vonatkozó jogszabályi előírásokon túlmenően
    a)melléképület,
    b)kézműipari épület legfeljebb nettó 40 m2 alapterületű főrendeltetésű helyiséggel lehet.
    (3)Az építési övezetben minden terepszint alatti építmény elhelyezhető.
    (4)Az építési övezetben melléképület a (2) bekezdésben foglaltak figyelembevételével elhelyezhető, az alábbi szabályok alkalmazásával:
    a)a lakóépülettel azonos oldalhatáron a főépülettel legfeljebb azonos épületmagassággal építhető,
    b)két 30,00 m telekmélységet el nem érő telkek csatlakozásánál a hátsókert mérete 0,00 m, ebben az esetben a melléképületek egymással tűzfalasan összeépíthetők, amennyiben az egyik telken létesül melléképítmény, akkor az csak tűzfalas kialakítással helyezhető el.
    (5)Melléképítmények tekintetében az alábbiak helyezhetők el:
    a)közműcsatlakozási vagy -pótló műtárgy
    b)hulladéktartály-tároló
    c)kerti építmény
    d)háztartási célú kemence, húsfüstölő, jégverem, zöldségverem
    e)állatkifutó
    f)trágyatároló, komposztáló
    g)siló, ömlesztett anyag-, folyadék- és gáztároló
    h)építménynek minősülő antennatartó szerkezet, zászlótartó oszlop.

    Irodánkban bankfüggetlen hitel-közvetítéssel állunk ügyfeleink rendelkezésére!

    A hirdetésben szereplő információkat a megbízótól kaptuk, irodánk azokért felelősséget nem vállal!

    Hirdetés feltöltve: 2025. 10. 06. Utoljára módosítva: 2025. 10. 06.

    Telkek ára Abonyban

    Ebből az összehasonlításból megtudhatod, hogyan viszonyul a lakás ára a környékbeli telkek átlagos árához. Ez nem azt jelenti, hogy ennyivel olcsóbb vagy drágább, mint amennyit a lakás ér, hanem hogy ennyivel tér el a környékbeli átlagtól.

    Ennek a m² ára
    Abony m² ár
    11 e Ft
    3 e Ft -216%
    Ennek az ára
    Abony átlagár
    7.5 M Ft m Ft
    4.9 m Ft -52%

    Az ingatlan elhelyezkedése

    Cím: Abony

    Eladó ingatlanok a környékről

    Eladó ikerház
    Eladó ikerház

    Monor

    71 M Ft
    4 szoba
    70 m2
    Eladó családi ház
    Eladó családi ház

    Örkény

    39.9 M Ft
    3 szoba
    70 m2
    Eladó telek
    Eladó telek

    Páty, Páty kertváros - központhoz közel

    69.9 M Ft
    1500 m²
    Eladó telek
    Eladó telek

    Abony

    5.5 M Ft
    1070 m²
    Eladó telek
    Eladó telek

    Tápiószele

    4.9 M Ft
    1453 m²
    Eladó telek
    Eladó telek

    Abony

    17.9 M Ft
    6894 m²
    Eladó telek
    Eladó telek

    Abony

    9.75 M Ft
    918 m²
    Eladó családi ház
    Eladó családi ház

    Gyál

    95.9 M Ft
    3 szoba
    81 m2
    Eladó mezogazdasagi ingatlan
    Eladó mezogazdasagi ingatlan

    Örkény

    38 M Ft
    3 szoba
    74 m2
    Eladó nyaraló
    Eladó nyaraló

    Szigetcsép

    140 M Ft
    3 + 1 szoba
    186 m2
    Eladó telek
    Eladó telek

    Abony

    5.9 M Ft
    2599 m²
    Eladó telek
    Eladó telek

    Szentlőrinckáta

    5.5 M Ft
    1594 m²
    1594 m2
    Eladó téglalakás
    Eladó téglalakás

    Gyömrő

    65 M Ft
    2 szoba
    48 m2
    Eladó családi ház
    Eladó családi ház

    Dömsöd

    88 M Ft
    3 szoba
    120 m2
    Eladó telek
    Eladó telek

    Sóskút

    32.17 M Ft
    6434 m²
    Eladó családi ház
    Eladó családi ház

    Mende

    69.5 M Ft
    3 szoba
    85 m2
    Eladó telek
    Eladó telek

    Törökbálint, Anna hegy

    170 M Ft
    20000 m²
    20000 m2
    Eladó telek
    Eladó telek

    Abony

    2.9 M Ft
    1144 m²
    Eladó telek
    Eladó telek

    Szentendre

    32 M Ft
    2926 m²
    Eladó ikerház
    Eladó ikerház

    Szigethalom

    73 M Ft
    4 szoba
    83 m2
    Eladó telek
    Eladó telek

    Csömör, Híd utca

    75 M Ft
    3052 m²
    Eladó telek
    Eladó telek

    Érd

    42 M Ft
    2200 m²
    2200 m2
    Eladó telek
    Eladó telek

    Abony

    5.5 M Ft
    2932 m²
    Eladó ikerház
    Eladó ikerház

    Tápiószecső

    74.9 M Ft
    4 szoba
    102 m2

    Falusi CSOK ingatlanok

    Eladó családi ház
    Eladó családi ház

    Mernye

    24 M Ft
    3 szoba
    105 m2
    Eladó családi ház
    Eladó családi ház

    Vásárosdombó

    14.99 M Ft
    2 szoba
    69 m2
    Eladó családi ház
    Eladó családi ház

    Buzsák

    16.9 M Ft
    4 szoba
    100 m2
    Eladó téglalakás
    Eladó téglalakás

    Fonyód

    39.9 M Ft
    4 szoba
    67 m2
    Eladó téglalakás
    Eladó téglalakás

    Tokaj

    188.9 M Ft
    3 szoba
    93 m2
    Eladó családi ház
    Eladó családi ház

    Tápióbicske

    37.5 M Ft
    2 szoba
    70 m2
    Eladó családi ház
    Eladó családi ház

    Fonyód, Liszt Ferenc utca

    69 M Ft
    4 szoba
    95 m2
    Eladó családi ház
    Eladó családi ház

    Balatonkenese

    99.8 M Ft
    5 szoba
    138 m2