Oasis Residence

Eladó téglalakás
Téglás, 3. emelet

59 900 000 Ft59.9 M Ft 966 129 Ft/m2
1 + 2 szoba
62 m²
3. emelet

Részletes adatok

Fűtés: Gázkazán
Emelet: 3. emelet
Energetikai besorolás: Nem adta meg a hirdető

Az OTP Bank lakáshitel ajánlataFizetett hirdetés

+36 30 124
Amanda Lukács-Tepfenhárt
Nagyerdei Ingatlaniroda

Érdekel az OTP Bank kedvezményes lakáshitel ajánlata? *

* A kérdésre „Igen” válasz bejelölése esetén, az „Üzenet küldése” gombra kattintva kijelentem, hogy az OTP Bank Nyrt. Adatkezelési tájékoztatójának tartalmát megismertem és tudomásul vettem.

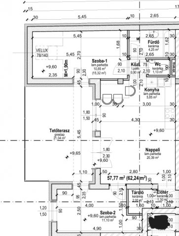
Eladó téglalakás leírása

PENTHOUSE LAKÁS TETŐTERASSZAL – KIVÁLÓ ÁRON, Téglás városközpontban

62 m² lakótér + 21 m² saját tetőterasz

Eladó modern penthouse lakás, ideális választás saját otthonnak vagy befektetésnek.

Főbb jellemzők:

62 m² lakótér
21 m² privát tetőterasz
Új építésű társasház
Várható átadás: 2026 év vége

Előnyök:

Nincs felső szomszéd
Tágas, panorámás tetőterasz
Világos, jól kihasznált elrendezés
Prémium minőségű burkolatok
A+ energetikai besorolás
Alakítható belső tér
Udvari parkolási lehetőség
Gáz padlófűtés

Elhelyezkedés:
Téglás központjában, minden fontos szolgáltatás közelében.

Kiváló ár-érték arány, korlátozott lehetőség
Ref:125907

*****

PENTHOUSE APARTMENT WITH ROOF TERRACE – GREAT PRICE, in the center of Téglás

62 m² living space + 21 m² private roof terrace

Modern penthouse apartment for sale, an ideal choice for a home or as an investment.

Key features:

62 m² living space
21 m² private rooftop terrace
Newly built condominium
Expected completion: End of 2026

Advantages:

No upstairs neighbors
Spacious rooftop terrace with panoramic views
Bright, well-designed layout
Premium-quality finishes
A+ energy rating
Flexible interior layout
Courtyard parking
Gas floor heating

Location:
In the heart of Téglás, close to all essential amenities.

Hirdetés feltöltve: 2026. 04. 01. Utoljára módosítva: 2026. 04. 21.

3 szobás téglalakások ára Tégláson

Ebből az összehasonlításból megtudhatod, hogyan viszonyul a lakás ára a környékbeli téglalakások átlagos árához. Ez nem azt jelenti, hogy ennyivel olcsóbb vagy drágább, mint amennyit a lakás ér, hanem hogy ennyivel tér el a környékbeli átlagtól.

Ennek a m² ára
Téglás m² ár
966 e Ft
857 e Ft -13%
Ennek az ára
Téglás átlagár
59.9 M Ft m Ft
60.9 m Ft 2%

Az ingatlan elhelyezkedése

Cím: Téglás, 3. emelet

Eladó téglalakások a környékről

Téglás
Eladó téglalakás

Téglás

61.9 M Ft
3 szoba
70 m²
Téglás
Eladó téglalakás

Téglás

59.9 M Ft
3 szoba
70 m²
Téglás
Eladó téglalakás

Téglás

57.9 M Ft
2 szoba
74 m²
Téglás
Eladó téglalakás

Téglás

49.9 M Ft
2 szoba
49 m²
Téglás
Eladó téglalakás

Téglás

64.9 M Ft
4 szoba
83 m²
Püspökladány
Eladó téglalakás

Püspökladány

39.9 M Ft
1 szoba
336 m²
Debrecen
Eladó téglalakás

Debrecen

106 M Ft
3 szoba
83 m²
Téglás
Eladó téglalakás

Téglás

46 M Ft
2 szoba
50 m²
Téglás
Eladó téglalakás

Téglás

46 M Ft
2 szoba
50 m²
Derecske
Eladó téglalakás

Derecske

61.132 M Ft
4 szoba
72 m²
Téglás
Eladó téglalakás

Téglás

59.9 M Ft
3 szoba
68 m²
Debrecen, Belváros, Hatvan köz
Eladó téglalakás

Debrecen

83.943 M Ft
2 szoba
64 m²
Hajdúszoboszló, József Attila utca
Eladó téglalakás

Hajdúszoboszló

69 M Ft
2 szoba
59 m²
Debrecen, Belváros, Hatvan köz
Eladó téglalakás

Debrecen

75.213 M Ft
1 szoba
81 m²
Debrecen, Belváros, Hatvan köz
Eladó téglalakás

Debrecen

120.46 M Ft
3 szoba
102 m²
Téglás
Eladó téglalakás

Téglás

62.5 M Ft
3 szoba
76 m²
Debrecen
Eladó téglalakás

Debrecen

87.9 M Ft
3 szoba
64 m²
Hajdúsámson
Eladó téglalakás

Hajdúsámson

75 M Ft
4 szoba
92 m²
Téglás
Eladó téglalakás

Téglás

62.5 M Ft
1 + 2 szoba
72 m²
Debrecen, Belváros, Hatvan köz
Eladó téglalakás

Debrecen

118.936 M Ft
4 szoba
107 m²
Téglás
Eladó téglalakás

Téglás

49.9 M Ft
2 szoba
70 m²
Debrecen, Belváros, Hatvan köz
Eladó téglalakás

Debrecen

111.05 M Ft
3 szoba
95 m²
Téglás
Eladó téglalakás

Téglás

61.9 M Ft
1 + 2 szoba
62 m²
Hajdúszoboszló
Eladó téglalakás

Hajdúszoboszló

84 M Ft
5 szoba
90 m²

Falusi CSOK ingatlanok

Izsófalva
Eladó családi ház

Izsófalva

22.9 M Ft
3 szoba
105 m²
Marcalgergelyi
Eladó családi ház

Marcalgergelyi

31 M Ft
2 + 1 szoba
120 m²
Szabadbattyán
Eladó családi ház

Szabadbattyán

147.99 M Ft
5 szoba
255 m²
Kővágószőlős
Eladó téglalakás

Kővágószőlős

24 M Ft
2 szoba
52 m²
Gesztely
Eladó családi ház

Gesztely

34.9 M Ft
3 szoba
95 m²
Szob
Eladó sorház

Szob

16 M Ft
2 szoba
45 m²
Selyeb
Eladó családi ház

Selyeb

20.5 M Ft
2 szoba
350 m²
Villány
Eladó családi ház

Villány

65 M Ft
3 szoba
95 m²