BAM Living

Eladó téglalakás
Téglás, 3. emelet

+ 1 kép 1/4
49 900 000 Ft49.9 M Ft 1 018 367 Ft/m2
2 szoba
49 m²
3. emelet

Részletes adatok

Fűtés: Egyéb
Emelet: 3. emelet
Energetikai besorolás: Nem adta meg a hirdető

Az OTP Bank lakáshitel ajánlataFizetett hirdetés

+36 30 124
Amanda Lukács-Tepfenhárt
Nagyerdei Ingatlaniroda

Érdekel az OTP Bank kedvezményes lakáshitel ajánlata? *

* A kérdésre „Igen” válasz bejelölése esetén, az „Üzenet küldése” gombra kattintva kijelentem, hogy az OTP Bank Nyrt. Adatkezelési tájékoztatójának tartalmát megismertem és tudomásul vettem.

Eladó téglalakás leírása

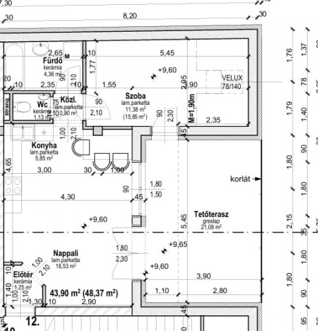
PENTHOUSE LAKÁS TETŐTERASSZAL – KIVÁLÓ ÁRON, Téglás városközpontban

49 m² lakótér + 21 m² saját tetőterasz
Ár: 49,9 millió Ft / db
Összesen 2 db lakás elérhető

Eladó modern penthouse lakások, amelyek ideálisak saját otthonnak vagy befektetésnek.

Főbb jellemzők:

49 m² lakótér
21 m² privát tetőterasz
Új építésű társasház
Várható átadás: 2026 év vége

Előnyök:

Nincs felső szomszéd
Tágas, panorámás tetőterasz
Világos, jól kihasznált terek
Prémium minőségű burkolatok
A+ energetikai besorolás
Alakítható belső elrendezés
Udvari parkolási lehetőség
Gáz padlófűtés

Elhelyezkedés:
Téglás központjában, minden fontos szolgáltatás közelében.

Korlátozott darabszám, érdemes mielőbb dönteni.
Ref: 125906

******

PENTHOUSE APARTMENT WITH ROOF TERRACE – GREAT PRICE, in the center of Téglás

49 m² living space + 21 m² private roof terrace
Price: 49.9 million HUF / unit
A total of 2 apartments available

Modern penthouse apartments for sale, ideal as a primary residence or investment.

Key features:

49 m² living space
21 m² private rooftop terrace
Newly built condominium
Expected completion: End of 2026

Advantages:

No upstairs neighbors
Spacious rooftop terrace with panoramic views
Bright, well-utilized spaces
Premium-quality finishes
A+ energy rating
Flexible interior layout
Courtyard parking
Gas floor heating

Location:
In the heart of Téglás, close to all essential amenities.

Limited availability—act quickly.
Ref: 125906

Hirdetés feltöltve: 2026. 04. 01. Utoljára módosítva: 2026. 05. 10.

2 szobás téglalakások ára Tégláson

Ebből az összehasonlításból megtudhatod, hogyan viszonyul a lakás ára a környékbeli téglalakások átlagos árához. Ez nem azt jelenti, hogy ennyivel olcsóbb vagy drágább, mint amennyit a lakás ér, hanem hogy ennyivel tér el a környékbeli átlagtól.

Ennek a m² ára
Téglás m² ár
1018 e Ft
910 e Ft -12%
Ennek az ára
Téglás átlagár
49.9 M Ft m Ft
53.6 m Ft 7%

Az ingatlan elhelyezkedése

Cím: Téglás, 3. emelet

Eladó téglalakások a környékről

Debrecen, Belváros, Hatvan köz
Eladó téglalakás

Debrecen

118.936 M Ft
4 szoba
107 m²
Debrecen
Eladó téglalakás

Debrecen

144.6 M Ft
4 szoba
101 m²
Hajdúszoboszló
Eladó téglalakás

Hajdúszoboszló

69 M Ft
2 szoba
45 m²
Téglás
Eladó téglalakás

Téglás

58.9 M Ft
3 szoba
76 m²
Debrecen, Belváros, Hatvan köz
Eladó téglalakás

Debrecen

120.891 M Ft
3 szoba
103 m²
Téglás
Eladó téglalakás

Téglás

64.9 M Ft
1 + 3 szoba
74 m²
Debrecen, Belváros, Hatvan köz
Eladó téglalakás

Debrecen

83.943 M Ft
2 szoba
64 m²
Debrecen, Belváros, Hatvan köz
Eladó téglalakás

Debrecen

98.181 M Ft
2 szoba
85 m²
Téglás
Eladó téglalakás

Téglás

61.9 M Ft
1 + 2 szoba
62 m²
Téglás
Eladó téglalakás

Téglás

57.9 M Ft
3 szoba
70 m²
Téglás
Eladó téglalakás

Téglás

59.9 M Ft
1 + 2 szoba
62 m²
Hajdúsámson
Eladó téglalakás

Hajdúsámson

75 M Ft
4 szoba
92 m²
Debrecen, Belváros, Hatvan köz
Eladó téglalakás

Debrecen

70.703 M Ft
1 szoba
64 m²
Téglás
Eladó téglalakás

Téglás

46 M Ft
2 szoba
50 m²
Téglás
Eladó téglalakás

Téglás

57.9 M Ft
2 szoba
74 m²
Debrecen
Eladó téglalakás

Debrecen

99.7 M Ft
3 szoba
66 m²
Téglás
Eladó téglalakás

Téglás

49.9 M Ft
2 szoba
70 m²
Téglás
Eladó téglalakás

Téglás

57.9 M Ft
3 szoba
70 m²
Téglás
Eladó téglalakás

Téglás

59.9 M Ft
1 + 2 szoba
62 m²
Téglás
Eladó téglalakás

Téglás

59.9 M Ft
3 szoba
68 m²
Debrecen
Eladó téglalakás

Debrecen

71.9 M Ft
2 szoba
52 m²
Debrecen
Eladó téglalakás

Debrecen

106 M Ft
3 szoba
83 m²
Debrecen, Belváros, Hatvan köz
Eladó téglalakás

Debrecen

118.936 M Ft
4 szoba
107 m²
Püspökladány
Eladó téglalakás

Püspökladány

39.9 M Ft
1 szoba
336 m²

Falusi CSOK ingatlanok

Levelek
Eladó családi ház

Levelek

74 M Ft
6 + 1 szoba
190 m²
Balatonudvari
Eladó családi ház

Balatonudvari

230 M Ft
9 szoba
260 m²
Onga
Eladó családi ház

Onga

46.99 M Ft
3 szoba
120 m²
Nagyszénás
Eladó családi ház

Nagyszénás

14 M Ft
3 szoba
81 m²
Pinnye, Kossuth Lajos utca
Eladó családi ház

Pinnye

55 M Ft
2 szoba
89 m²
Zákányfalu
Eladó családi ház

Zákányfalu

14.5 M Ft
2 szoba
80 m²
Csabacsűd
Eladó családi ház

Csabacsűd

21 M Ft
3 szoba
125 m²
Tab
Eladó családi ház

Tab

64.99 M Ft
4 szoba
160 m²