Kedves Felhasználónk! Rendszerfrissítés miatt az oldalunk 2026. február 9-én 12 órától várhatóan 20 óráig nem lesz elérhető. Köszönjük megértésed!
Seven Pearl

Eladó téglalakás
Tab, 2. emelet

Figyelem!

Ez az ingatlan a 2019.07.01-től induló falusi CSOK által támogatott településen található

39 900 000 Ft39.9 M Ft 586 765 Ft/m2
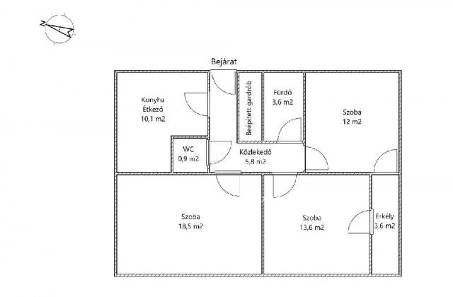
3 szoba
68 m2
2. emelet
építés éve:1985

Részletes adatok

Állapot: Átlagos
Fűtés: Elektromos
Emelet: 2. emelet
Energetikai besorolás: Nem adta meg a hirdető
Zenga Premier

Friss hirdetések, amiket nem találsz meg más ingatlankereső portálon.

Fedezd fel elsőként a Zenga Premier címkés eladó ingatlanokat!

További részletek a zenga.hu-n

Az OTP Bank lakáshitel ajánlataFizetett hirdetés

+36 20 775
Kuti Dávid
referens

Érdekel az OTP Bank kedvezményes lakáshitel ajánlata? *

* A kérdésre „Igen” válasz bejelölése esetén, az „Üzenet küldése” gombra kattintva kijelentem, hogy az OTP Bank Nyrt. Adatkezelési tájékoztatójának tartalmát megismertem és tudomásul vettem.

Eladó téglalakás leírása

Egy kihagyhatatlan lehetőség Tabon annak, aki csak költözni szeretne! Eladásra kínálunk Tab legfrekventáltabb helyén egy gyönyörű 3 szobás, napfénnyel teli 2. emeleti lakást. Az ingatlan 68 m2-en terül el, melyben helyet kapott egy szép nagy konyha étkezővel, egy kádas fürdőszoba, wc, egy közlekedő beépített gardróbbal és 3 nagy szoba. A teljes villany hálózat újra lett vezetékelve, megteremtve ezzel az elektromos fűtés műszaki feltételeit. A szobák szalagparkettával vannak lerakva, a lakás többi része pedig járólappal burkolt. Műanyag nyílászárói redőnyökkel felszereltek. Az ingatlan kényelmét szolgálja még egy hűtő-fűtő klíma.
Külön pozitív, hogy az épületben elhelyezkedő lakások csak és kizárólag a konyha falaival érnek össze egymással, így csendet és nyugalmat hagyva az itt élőknek. A lakás gondosan karbantartott.
A lakástól öt perc sétával elérhető posta, általános iskola, középiskola, óvoda, bölcsőde, élelmiszerboltok, húsbolt, dohánybolt, könyvtár, egészségház, polgármesteri hivatal és ennek a felsorolásnak még nagyon hosszú a vége.
Ajánljuk mindazoknak, akik egy igényes felújított lakást keresnek, ahova szinte tényleg csak költözni kell. Akár több gyermekes családoknak is kényelmes otthon lehet.
Amennyiben felkeltette érdeklődését, kérem hívjon bizalommal, hogy megmutathassuk személyesen is!
M322223
Kuti Dávid

Hirdetés feltöltve: 2026. 02. 08. Utoljára módosítva: 2026. 02. 08.

Az ingatlan elhelyezkedése

Cím: Tab, 2. emelet

Eladó ingatlanok a környékről

Eladó téglalakás
Eladó téglalakás

Siófok

41.6 M Ft
2 szoba
26 m2
Eladó téglalakás
Eladó téglalakás

Balatonszemes, Ady E. utca 6

132.9 M Ft
3 szoba
62 m2
Eladó téglalakás
Eladó téglalakás

Zákány

6.9 M Ft
2 szoba
90 m2
Eladó téglalakás
Eladó téglalakás

Balatonfenyves

115.625 M Ft
2 szoba
51 m2
Eladó téglalakás
Eladó téglalakás

Siófok

54.99 M Ft
1 szoba
41 m2
Eladó téglalakás
Eladó téglalakás

Balatonfenyves

563.75 M Ft
4 szoba
114 m2
Eladó téglalakás
Eladó téglalakás

Balatonfenyves

78 M Ft
1 szoba
35 m2
Eladó téglalakás
Eladó téglalakás

Siófok

81.928 M Ft
2 szoba
47 m2
Eladó téglalakás
Eladó téglalakás

Siófok

93.77 M Ft
2 szoba
58 m2
Eladó téglalakás
Eladó téglalakás

Balatonfenyves

149 M Ft
2 szoba
59 m2
Eladó téglalakás
Eladó téglalakás

Siófok

55 M Ft
2 szoba
57 m2
Eladó téglalakás
Eladó téglalakás

Siófok

74.9 M Ft
2 szoba
43 m2
Eladó családi ház
Eladó családi ház

Barcs, Vasvári Pál utca

55 M Ft
4 szoba
90 m2
Eladó téglalakás
Eladó téglalakás

Kaposvár

199 M Ft
12 + 12 szoba
675 m2
Eladó sorház
Eladó sorház

Balatonföldvár

225 M Ft
5 szoba
178 m2
Eladó téglalakás
Eladó téglalakás

Siófok

49.9 M Ft
2 szoba
41 m2
Eladó téglalakás
Eladó téglalakás

Balatonfenyves

78.1 M Ft
1 szoba
33 m2
Eladó téglalakás
Eladó téglalakás

Balatonfenyves

191.4 M Ft
3 szoba
66 m2
Eladó telek
Eladó telek

Andocs

7.5 M Ft
8176 m²
Eladó panellakás
Eladó panellakás

Siófok

49.9 M Ft
2 szoba
55 m2
Eladó családi ház
Eladó családi ház

Kőröshegy

149 M Ft
7 szoba
300 m2
Eladó családi ház
Eladó családi ház

Csurgó

42.99 M Ft
4 szoba
66 m2
Eladó téglalakás
Eladó téglalakás

Balatonföldvár

69.9 M Ft
3 szoba
62 m2
Eladó telek
Eladó telek

Igal, Orgona utca

3.95 M Ft
939 m²
939 m2

Falusi CSOK ingatlanok

Eladó családi ház
Eladó családi ház

Újhartyán

89.9 M Ft
4 szoba
99 m2
Eladó családi ház
Eladó családi ház

Recsk

28 M Ft
3 szoba
91 m2
Eladó családi ház
Eladó családi ház

Parád

25 M Ft
2 szoba
80 m2
Eladó családi ház
Eladó családi ház

Gyöngyöshalász

59 M Ft
4 + 3 szoba
214 m2
Eladó téglalakás
Eladó téglalakás

Balatonszemes

119.9 M Ft
2 szoba
81 m2
Eladó családi ház
Eladó családi ház

Darnózseli

79.9 M Ft
4 szoba
104 m2
Eladó családi ház
Eladó családi ház

Kemeneshőgyész

8 M Ft
2 szoba
60 m2
Eladó családi ház
Eladó családi ház

Csót

39.5 M Ft
4 szoba
123 m2

Falusi CSOK ingatlanok

Eladó családi ház
Eladó családi ház

Gyöngyöshalász

59 M Ft
4 + 3 szoba
214 m2
Eladó családi ház
Eladó családi ház

Pétfürdő

74.9 M Ft
3 szoba
89 m2
Eladó családi ház
Eladó családi ház

Recsk

28 M Ft
3 szoba
91 m2
Eladó családi ház
Eladó családi ház

Szabadbattyán

163.99 M Ft
5 szoba
255 m2
Eladó családi ház
Eladó családi ház

Szigliget

299 M Ft
3 szoba
95 m2
Eladó családi ház
Eladó családi ház

Darnózseli

79.9 M Ft
4 szoba
104 m2
Eladó családi ház
Eladó családi ház

Igal

94.5 M Ft
4 + 2 szoba
278 m2
Eladó családi ház
Eladó családi ház

Szabadbattyán

67.5 M Ft
5 szoba
180 m2