Avico Greentop

Eladó téglalakás
Szolnok, 1. emelet

75 873 000 Ft75.873 M Ft 1 053 792 Ft/m2
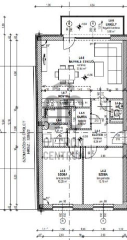
3 szoba
72 m²
1. emelet
építés éve:2026

Részletes adatok

Fűtés: Házközponti egyedi méréssel
Emelet: 1. emelet
Közmű: Villany, Csatorna
Energetikai besorolás: Nem adta meg a hirdető

Az OTP Bank lakáshitel ajánlataFizetett hirdetés

+36 70 435
Szűcsné Rácz Erzsébet
referens

Érdekel az OTP Bank kedvezményes lakáshitel ajánlata? *

* A kérdésre „Igen” válasz bejelölése esetén, az „Üzenet küldése” gombra kattintva kijelentem, hogy az OTP Bank Nyrt. Adatkezelési tájékoztatójának tartalmát megismertem és tudomásul vettem.

Eladó téglalakás leírása

Eladó újépítésű lakások Szolnok belváros közelében, modern társasházban!

Szolnok egyik kedvelt, belvároshoz közeli részén kínálunk megvételre egy most épülő, mindössze 7 lakásos, exkluzív megjelenésű társasházban kialakított lakásokat. A kis lakásszám nyugodt, családias környezetet biztosít, miközben minden fontos szolgáltatás könnyedén elérhető.

A lakások tervezésénél kiemelt szerepet kapott a praktikus elrendezés és a mai kor igényeinek megfelelő műszaki tartalom. Kétféle alaprajz közül választhat:
– amerikai konyhás nappali + 1 hálószoba
– amerikai konyhás nappali + 2 hálószoba
Ára : 1 050 000 Ft/nm

A modern épület egyik legnagyobb előnye a korszerű, energiatakarékos hőszivattyús rendszer, amely padló- és mennyezeti hűtés-fűtést biztosít. Ennek köszönhetően alacsony fenntartási költségek mellett, egyenletes hőérzet és magas komfort biztosított minden évszakban.

Főbb jellemzők:
• újépítésű, modern társasház
• mindössze 7 lakás – csendes, nyugodt lakókörnyezet
• hőszivattyús padló- és mennyezeti hűtés-fűtés
• praktikus, jól kihasználható terek
• ideális saját otthonnak vagy befektetésnek
• várható átadás: 2026 május

A lakásokhoz fedett gépkocsi beálló vásárolható, (ára: 5 millió ) így a parkolás is kényelmesen megoldott.

Az ingatlan kiváló választás mindazok számára, akik modern, energiatakarékos otthont keresnek jó elhelyezkedéssel, vagy hosszú távon értékálló befektetésben gondolkodnak.

Irodánkban bankfüggetlen hitel-ügyintézéssel állunk ügyfeleink rendelkezésére!

A hirdetésben szereplő információkat a megbízótól kaptuk, irodánk azokért felelősséget nem vállal!

Ha felkeltettem érdeklődését, kérem hívjon és nézzük meg együtt !

Hirdetés feltöltve: 2026. 03. 19.

3 szobás téglalakások ára Szolnokon

Ebből az összehasonlításból megtudhatod, hogyan viszonyul a lakás ára a környékbeli téglalakások átlagos árához. Ez nem azt jelenti, hogy ennyivel olcsóbb vagy drágább, mint amennyit a lakás ér, hanem hogy ennyivel tér el a környékbeli átlagtól.

Ennek a m² ára
Szolnok m² ár
1054 e Ft
896 e Ft -18%
Ennek az ára
Szolnok átlagár
75.873 M Ft m Ft
67.3 m Ft -13%

Az ingatlan elhelyezkedése

Cím: Szolnok, 1. emelet

Eladó téglalakások a környékről

Szolnok
Eladó téglalakás

Szolnok

90 M Ft
3 szoba
100 m²
Szolnok
Eladó téglalakás

Szolnok

52.9 M Ft
4 szoba
93 m²
Jászberény
Eladó téglalakás

Jászberény

52 M Ft
1 szoba
60 m²
Szolnok
Eladó téglalakás

Szolnok

62.7 M Ft
3 szoba
66 m²
Szolnok, Katonaváros, Tófenék utca
Eladó téglalakás

Szolnok

57.5 M Ft
1 szoba
94 m²
Szolnok
Eladó téglalakás

Szolnok

90 M Ft
3 szoba
100 m²
Szolnok
Eladó téglalakás

Szolnok

34.9 M Ft
3 szoba
86 m²
Szolnok
Eladó téglalakás

Szolnok

34.99 M Ft
2 szoba
59 m²
Szolnok
Eladó téglalakás

Szolnok

86.7 M Ft
4 szoba
134 m²
Jászberény
Eladó téglalakás

Jászberény

29.5 M Ft
2 szoba
55 m²
Szolnok
Eladó téglalakás

Szolnok

90 M Ft
3 szoba
100 m²
Szolnok
Eladó téglalakás

Szolnok

50.9 M Ft
2 szoba
85 m²
Jászberény
Eladó téglalakás

Jászberény

49.5 M Ft
1 szoba
60 m²
Szolnok
Eladó téglalakás

Szolnok

90 M Ft
3 szoba
100 m²
Kisújszállás
Eladó téglalakás

Kisújszállás

31 M Ft
2 szoba
86 m²
Jászberény
Eladó téglalakás

Jászberény

49.5 M Ft
1 szoba
60 m²
Szolnok
Eladó téglalakás

Szolnok

90 M Ft
3 szoba
100 m²
Szolnok
Eladó téglalakás

Szolnok

34.99 M Ft
2 szoba
59 m²
Jászberény
Eladó téglalakás

Jászberény

47 M Ft
1 + 1 szoba
60 m²
Jászberény
Eladó téglalakás

Jászberény

53 M Ft
1 + 1 szoba
62 m²
Szolnok
Eladó téglalakás

Szolnok

59 M Ft
5 szoba
144 m²
Jászberény
Eladó téglalakás

Jászberény

47 M Ft
1 + 1 szoba
60 m²
Szolnok
Eladó téglalakás

Szolnok

63.5 M Ft
4 szoba
64 m²
Jászberény
Eladó téglalakás

Jászberény

37.5 M Ft
2 + 1 szoba
62 m²

Falusi CSOK ingatlanok

Szalkszentmárton
Eladó családi ház

Szalkszentmárton

145 M Ft
5 szoba
620 m²
Karád
Eladó családi ház

Karád

42.9 M Ft
3 szoba
100 m²
Szob
Eladó sorház

Szob

16 M Ft
2 szoba
45 m²
Jászkarajenő
Eladó családi ház

Jászkarajenő

26.49 M Ft
2 + 1 szoba
87 m²
Lengyeltóti
Eladó családi ház

Lengyeltóti

59.9 M Ft
5 szoba
205 m²
Kislippó
Eladó családi ház

Kislippó

17.99 M Ft
3 szoba
100 m²
Ostffyasszonyfa
Eladó családi ház

Ostffyasszonyfa

37.9 M Ft
5 szoba
494 m²
Vid
Eladó családi ház

Vid

29 M Ft
4 szoba
100 m²