City Pearl

Eladó téglalakás
Szeged, földszint

+ 17 kép 1/20
590 000 000 Ft590 M Ft 1 953 642 Ft/m2
6 szoba
302 m²
földszint
építés éve:2023

Részletes adatok

Állapot: Újszerű
Fűtés: Egyéb
Emelet: földszint
Extrák: Lift
Energetikai besorolás: Nem adta meg a hirdető

Az OTP Bank lakáshitel ajánlataFizetett hirdetés

+36 30 732
Turcsán Árpád
Csongrád OTP Ingatlanpont Iroda

Érdekel az OTP Bank kedvezményes lakáshitel ajánlata? *

* A kérdésre „Igen” válasz bejelölése esetén, az „Üzenet küldése” gombra kattintva kijelentem, hogy az OTP Bank Nyrt. Adatkezelési tájékoztatójának tartalmát megismertem és tudomásul vettem.

Eladó téglalakás leírása

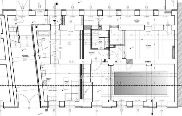
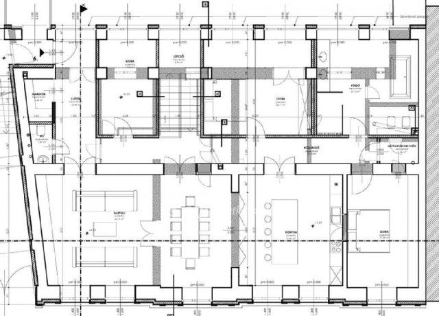
Szeged belvárosában kínálunk megvételre egy valóban egyedülálló, ÖNFENNTARTÓ, 302 m2 alapterületű, 5 szobás, magasföldszinti luxuslakást, amely egy exkluzív városi rezidencia kényelmét és egy privát wellness otthon nyugalmát ötvözi.
Az ingatlan saját, intelligens vezérlőrendszerrel rendelkezik, amely a fűtést, hűtést, világítást és az árnyékolást is kezeli, így a teljes lakás egyetlen központból irányítható. A tágas terek, a nagy belmagasság és a prémium burkolatok elegáns, időtálló atmoszférát teremtenek.
A lakás különlegessége a saját, fűtött medencével kialakított wellness-rész, valamint a privát konditerem, amely valódi luxuséletstílust biztosít anélkül, hogy el kellene hagyni az otthont. Ilyen adottság Szegeden rendkívül ritka.
Az ingatlanhoz autóbeállási lehetőség is tartozik, ami a belvárosban kiemelt értéket képvisel. Az elhelyezkedés tökéletes: csendes, mégis minden fontos szolgáltatás, étterem, kulturális és üzleti központ néhány perc sétával elérhető.
Ez az ingatlan nem csupán egy lakás, hanem egy városi luxusrezidencia, amely azoknak szól, akik nem kötnek kompromisszumot térben, kényelemben és exkluzivitásban.
Megtekintésért keressen bizalommal!

Referencia szám: M320276-ZE

Hirdetés feltöltve: 2026. 03. 19. Utoljára módosítva: 2026. 04. 01.

Az ingatlan elhelyezkedése

Cím: Szeged, földszint

Eladó téglalakások a környékről

Szeged
Eladó téglalakás

Szeged

109.9 M Ft
3 szoba
91 m²
Szeged
Eladó téglalakás

Szeged

84.9 M Ft
3 szoba
82 m²
Szeged
Eladó téglalakás

Szeged

135 M Ft
4 szoba
116 m²
Szeged
Eladó téglalakás

Szeged

599.999 M Ft
4 szoba
302 m²
Szeged
Eladó téglalakás

Szeged

114.9 M Ft
4 + 1 szoba
123 m²
Szeged, Londoni körút
Eladó téglalakás

Szeged

59.9 M Ft
2 szoba
55 m²
Szeged
Eladó téglalakás

Szeged

58.7 M Ft
2 szoba
49 m²
Szeged
Eladó téglalakás

Szeged

114.9 M Ft
4 + 1 szoba
261 m²
Szeged, Londoni körút
Eladó téglalakás

Szeged

59.9 M Ft
2 szoba
55 m²
Szeged
Eladó téglalakás

Szeged

149 M Ft
4 + 1 szoba
132 m²
Szeged
Eladó téglalakás

Szeged

84.9 M Ft
3 szoba
82 m²
Szeged
Eladó téglalakás

Szeged

58.7 M Ft
2 szoba
49 m²
Szeged
Eladó téglalakás

Szeged

114.9 M Ft
4 + 1 szoba
123 m²
Szeged
Eladó téglalakás

Szeged

179 M Ft
4 szoba
176 m²
Szeged
Eladó téglalakás

Szeged

73.9 M Ft
3 szoba
66 m²
Szeged
Eladó téglalakás

Szeged

26 M Ft
4 szoba
130 m²
Szeged, Belváros, Bakay Nándor utca
Eladó téglalakás

Szeged

199.9 M Ft
2 + 2 szoba
196 m²
Szeged
Eladó téglalakás

Szeged

74.9 M Ft
3 szoba
57 m²
Szeged
Eladó téglalakás

Szeged

74.9 M Ft
3 szoba
82 m²
Szeged
Eladó téglalakás

Szeged

135 M Ft
4 szoba
116 m²
Szeged
Eladó téglalakás

Szeged

73.9 M Ft
3 szoba
66 m²
Szeged
Eladó téglalakás

Szeged

119.9 M Ft
5 szoba
118 m²
Deszk
Eladó téglalakás

Deszk

44.9 M Ft
2 szoba
66 m²
Szeged
Eladó téglalakás

Szeged

599.999 M Ft
4 szoba
302 m²

Falusi CSOK ingatlanok

Nyáregyháza
Eladó családi ház

Nyáregyháza

114.99 M Ft
7 szoba
267 m²
Balatonudvari
Eladó családi ház

Balatonudvari

240 M Ft
9 szoba
260 m²
Ambrózfalva
Eladó családi ház

Ambrózfalva

26.9 M Ft
5 szoba
194 m²
Seregélyes
Eladó családi ház

Seregélyes

75 M Ft
6 szoba
160 m²
Szigliget
Eladó családi ház

Szigliget

299 M Ft
3 szoba
95 m²
Balatonszemes
Eladó téglalakás

Balatonszemes

125.2 M Ft
2 szoba
50 m²
Isztimér
Eladó családi ház

Isztimér

105 M Ft
6 szoba
138 m²
Drávaszabolcs
Eladó családi ház

Drávaszabolcs

29 M Ft
4 szoba
90 m²