Seven Pearl

Eladó téglalakás
Szeged, 2. emelet

+ 8 kép 1/11
86 997 900 Ft86.998 M Ft 1 242 827 Ft/m2
3 szoba
70 m²
2. emelet
építés éve:2027

Részletes adatok

Fűtés: Egyéb
Emelet: 2. emelet
Energetikai besorolás: Nem adta meg a hirdető

Az OTP Bank lakáshitel ajánlataFizetett hirdetés

+36 30 733
Puskásné Ember Ninette
Szeged Széchenyi tér 6 - OTP Ingatlanpont Iroda

Érdekel az OTP Bank kedvezményes lakáshitel ajánlata? *

* A kérdésre „Igen” válasz bejelölése esetén, az „Üzenet küldése” gombra kattintva kijelentem, hogy az OTP Bank Nyrt. Adatkezelési tájékoztatójának tartalmát megismertem és tudomásul vettem.

Eladó téglalakás leírása

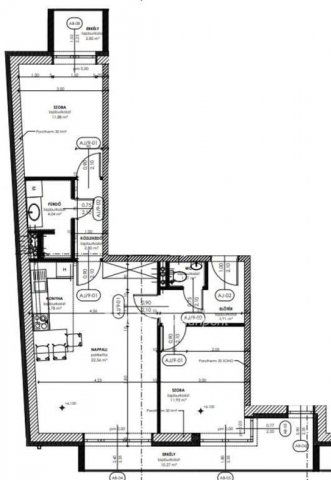
Szeged, Móraváros, 70,73 m2-es, 3 szobás, 2. emeleti, újépítésű téglalakás, tulajdonos-kivitelezőtől, 20% kezdő befizetéssel eladó. A kulcsrakész átadás tervezett időpontja: 2027.06.30. A lakásban amerikai konyhás nappali, 2 szoba, fürdőszoba, wc és erkély található. A szobák laminált parketta-, a többi helyiség járólap burkolatot kapnak. Az otthon melegét hőszivattyús fűtés biztosítja. A lakáshoz opcionálisan, udvari beálló, vagy garázs is vásárolható. A TIK, egyetemi épületek, klinikák és tömegközlekedési megállók mindössze pár perc sétára találhatók, ezért rendkívül kedvező lehetőség lehet, befektetők és diákok számára is. Az ingatlan megvásárlásához kedvező hitel is igényelhető, melynek intézéséhez szakszerű segítség áll a leendő vásárló rendelkezésére.

Referencia szám: M296446

Hirdetés feltöltve: 2026. 03. 05. Utoljára módosítva: 2026. 05. 07.

3 szobás téglalakások ára Szegeden

Ebből az összehasonlításból megtudhatod, hogyan viszonyul a lakás ára a környékbeli téglalakások átlagos árához. Ez nem azt jelenti, hogy ennyivel olcsóbb vagy drágább, mint amennyit a lakás ér, hanem hogy ennyivel tér el a környékbeli átlagtól.

Ennek a m² ára
Szeged m² ár
1243 e Ft
1116 e Ft -11%
Ennek az ára
Szeged átlagár
86.998 M Ft m Ft
85.1 m Ft -2%

Az ingatlan elhelyezkedése

Cím: Szeged, 2. emelet

Eladó téglalakások a környékről

Szeged
Eladó téglalakás

Szeged

599.999 M Ft
4 szoba
302 m²
Szeged
Eladó téglalakás

Szeged

52.9 M Ft
3 szoba
48 m²
Szeged
Eladó téglalakás

Szeged

39.9 M Ft
2 szoba
32 m²
Szeged, Belváros, Bakay Nándor utca
Eladó téglalakás

Szeged

199.9 M Ft
2 + 2 szoba
196 m²
Szeged
Eladó téglalakás

Szeged

70.9 M Ft
3 szoba
70 m²
Szeged, Londoni körút
Eladó téglalakás

Szeged

59.9 M Ft
2 szoba
55 m²
Szeged
Eladó téglalakás

Szeged

97.99 M Ft
3 szoba
76 m²
Szeged
Eladó téglalakás

Szeged

114.9 M Ft
4 + 1 szoba
261 m²
Szeged
Eladó téglalakás

Szeged

73.9 M Ft
3 szoba
66 m²
Szeged
Eladó téglalakás

Szeged

84.9 M Ft
3 szoba
82 m²
Szeged
Eladó téglalakás

Szeged

74.9 M Ft
3 szoba
82 m²
Szeged
Eladó téglalakás

Szeged

179 M Ft
4 szoba
176 m²
Szeged
Eladó téglalakás

Szeged

70.9 M Ft
3 szoba
70 m²
Deszk
Eladó téglalakás

Deszk

44.9 M Ft
3 szoba
66 m²
Szeged
Eladó téglalakás

Szeged

79.9 M Ft
2 szoba
63 m²
Szeged
Eladó téglalakás

Szeged

135 M Ft
4 szoba
116 m²
Szeged
Eladó téglalakás

Szeged

114.9 M Ft
4 + 1 szoba
123 m²
Szeged
Eladó téglalakás

Szeged

99.99 M Ft
4 szoba
104 m²
Szeged
Eladó téglalakás

Szeged

135 M Ft
4 szoba
116 m²
Szeged
Eladó téglalakás

Szeged

114.9 M Ft
4 + 1 szoba
123 m²
Szeged
Eladó téglalakás

Szeged

599.999 M Ft
4 szoba
302 m²
Szeged
Eladó téglalakás

Szeged

39.9 M Ft
2 szoba
32 m²
Szeged, Belváros, Bakay Nándor utca
Eladó téglalakás

Szeged

199.9 M Ft
2 + 2 szoba
196 m²
Szeged
Eladó téglalakás

Szeged

114.9 M Ft
4 + 1 szoba
261 m²

Falusi CSOK ingatlanok

Balatonszemes, Ady E. utca 6
Eladó téglalakás

Balatonszemes

108.9 M Ft
2 + 1 szoba
63 m²
Jánosháza
Eladó családi ház

Jánosháza

23.5 M Ft
3 szoba
90 m²
Badacsonytomaj
Eladó családi ház

Badacsonytomaj

285 M Ft
4 szoba
230 m²
Verseg
Eladó családi ház

Verseg

41.5 M Ft
2 szoba
55 m²
Marcalgergelyi
Eladó családi ház

Marcalgergelyi

31 M Ft
2 + 1 szoba
120 m²
Somlóvásárhely
Eladó családi ház

Somlóvásárhely

26.9 M Ft
2 + 1 szoba
102 m²
Noszlop
Eladó családi ház

Noszlop

162.9 M Ft
4 + 1 szoba
170 m²
Jobbágyi
Eladó családi ház

Jobbágyi

399 M Ft
6 + 1 szoba
200 m²