Avico Greentop

Eladó téglalakás
Deszk, földszint

+ 7 kép 1/10
44 900 000 Ft44.9 M Ft 680 303 Ft/m2
3 szoba
66 m²
földszint

Részletes adatok

Állapot: Újszerű
Fűtés: Egyéb
Energetikai besorolás: Nem adta meg a hirdető

Az OTP Bank lakáshitel ajánlataFizetett hirdetés

+36 30 983
Horváth Zsuzsa
A plusz ingatlan

Érdekel az OTP Bank kedvezményes lakáshitel ajánlata? *

* A kérdésre „Igen” válasz bejelölése esetén, az „Üzenet küldése” gombra kattintva kijelentem, hogy az OTP Bank Nyrt. Adatkezelési tájékoztatójának tartalmát megismertem és tudomásul vettem.

Eladó téglalakás leírása

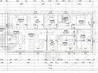
Deszken a Marosmenti lakóparkban eladásra kínálok egy 66 m2-es földszinti, akadálymentesített, eredetileg irodának tervezett, és a tulajdoni lapon is úgy szereplő nagyon világos ingatlant.
Lakásnak is alkalmas . Az ingatlan előtt kizárólagos parkolási lehetőség.

Az ingatlan főbb paraméterei:

- 2008.-ban épült
- tégla
- földszinti
- 66 m2
- műanyag nyílászárók
- Egyedi gáz-cirkó fűtés ( padlófűtés minden helyiségben )
Kérem nézze meg az alaprajzot, hogy milyen lehetőséget rejt az ingatlan.

További kérdéssel forduljon hozzám bizalommal : Horváth Zsuzsa 30/98-30-465

Hirdetés feltöltve: 2021. 12. 15. Utoljára módosítva: 2026. 04. 01.

Az ingatlan elhelyezkedése

Cím: Deszk, földszint

Eladó ingatlanok a környékről

Szeged, Újszeged, Hargitai utca
Eladó családi ház

Szeged

116.99 M Ft
5 + 1 szoba
128 m²
Szeged, Tarján lakótelep, Budapesti körút
Eladó panellakás

Szeged

44.99 M Ft
1 + 1 szoba
35 m²
Szeged
Eladó téglalakás

Szeged

149 M Ft
4 + 1 szoba
132 m²
Szeged, Petőfitelep, Göndör sor
Eladó családi ház

Szeged

89 M Ft
3 szoba
72 m²
Szeged
Eladó téglalakás

Szeged

119.9 M Ft
5 szoba
118 m²
Szeged, Makkosháza lakótelep, Gyöngyvirág utca
Eladó panellakás

Szeged

57.9 M Ft
3 szoba
60 m²
Szeged, Belváros, Boldogasszony sugárút
Eladó téglalakás

Szeged

51.99 M Ft
2 szoba
56 m²
Szeged
Eladó téglalakás

Szeged

70.9 M Ft
3 szoba
70 m²
Szeged, Szőreg, Nagybecskereki utca
Eladó családi ház

Szeged

86.99 M Ft
5 szoba
248 m²
Szeged, Móraváros, Katona József utca
Eladó családi ház

Szeged

105 M Ft
3 + 1 szoba
120 m²
Szeged, Makkosháza lakótelep, Gát utca
Eladó panellakás

Szeged

63.49 M Ft
3 szoba
69 m²
Szeged
Eladó téglalakás

Szeged

99.99 M Ft
4 szoba
104 m²
Szeged, Kálvária sugárút környéke, Boros József utca
Eladó téglalakás

Szeged

79 M Ft
3 szoba
66 m²
Szeged
Eladó téglalakás

Szeged

599.999 M Ft
4 szoba
302 m²
Sándorfalva, Brassói utca
Eladó családi ház

Sándorfalva

44.9 M Ft
3 szoba
60 m²
Szeged, Tarján lakótelep, Szilléri sor
Eladó panellakás

Szeged

59.9 M Ft
2 + 2 szoba
72 m²
Szeged, Belváros, Vitéz utca
Eladó téglalakás

Szeged

54.9 M Ft
2 + 1 szoba
52 m²
Szeged
Eladó téglalakás

Szeged

74.9 M Ft
3 szoba
57 m²
Szeged, Petőfitelep, Göndör sor
Eladó családi ház

Szeged

109 M Ft
4 szoba
115 m²
Szeged, Felsőváros, Makkosházi körút
Eladó családi ház

Szeged

109.9 M Ft
2 + 1 szoba
63 m²
Szeged, Újrókus lakótelep, Nyitra utca
Eladó panellakás

Szeged

65.9 M Ft
2 + 2 szoba
72 m²
Szeged
Eladó téglalakás

Szeged

114.9 M Ft
4 + 1 szoba
261 m²
Szeged, Felsőváros, Tabán utca
Eladó panellakás

Szeged

49 M Ft
3 szoba
60 m²
Szeged
Eladó téglalakás

Szeged

84.9 M Ft
3 szoba
82 m²

Falusi CSOK ingatlanok

Zsámbok
Eladó családi ház

Zsámbok

30 M Ft
2 szoba
80 m²
Devecser
Eladó családi ház

Devecser

39.9 M Ft
3 szoba
75 m²
Tápióbicske
Eladó ikerház

Tápióbicske

49.5 M Ft
4 szoba
72 m²
Zalacséb
Eladó családi ház

Zalacséb

19.9 M Ft
2 szoba
0 m²
Alsórajk
Eladó családi ház

Alsórajk

22 M Ft
2 szoba
0 m²
Tápióság
Eladó családi ház

Tápióság

59.9 M Ft
4 szoba
99 m²
Kenyeri
Eladó családi ház

Kenyeri

39.9 M Ft
3 szoba
94 m²
Badacsonytördemic
Eladó családi ház

Badacsonytördemic

90 M Ft
3 szoba
130 m²