Avico Greentop

Eladó téglalakás
Szeged, földszint

+ 6 kép 1/9
89 500 950 Ft89.501 M Ft 1 243 069 Ft/m2
3 szoba
72 m²
földszint
építés éve:2027

Részletes adatok

Fűtés: Egyéb
Emelet: földszint
Komfort: Duplakomfortos
Energetikai besorolás: Nem adta meg a hirdető

Az OTP Bank lakáshitel ajánlataFizetett hirdetés

+36 30 400
Papp-Horváth Katalin
Otp Ingatlanpont Falk Miksa

Érdekel az OTP Bank kedvezményes lakáshitel ajánlata? *

* A kérdésre „Igen” válasz bejelölése esetén, az „Üzenet küldése” gombra kattintva kijelentem, hogy az OTP Bank Nyrt. Adatkezelési tájékoztatójának tartalmát megismertem és tudomásul vettem.

Eladó téglalakás leírása

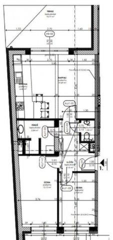
Szeged, Móraváros, 72,77 m2-es, 3 szobás, földszinti, nagy teraszos, újépítésű téglalakás, tulajdonos-kivitelezőtől, 20% kezdő befizetéssel eladó. A kulcsrakész átadás tervezett időpontja: 2027.06.30. A lakásban amerikai konyhás nappali, 2 szoba, fürdőszoba, wc és egy nagy belső udvari terasz található. A szobák laminált parketta-, a többi helyiség járólap burkolatot kapnak. Az otthon melegét hőszivattyús fűtés biztosítja. A lakáshoz opcionálisan, udvari beálló, vagy garázs is vásárolható. A TIK, egyetemi épületek, klinikák és tömegközlekedési megállók mindössze pár perc sétára találhatók, ezért rendkívül kedvező lehetőség lehet, befektetők és diákok számára is. Az ingatlan megvásárlásához kedvező hitel is igényelhető, melynek intézéséhez szakszerű segítség áll a leendő vásárló rendelkezésére.

Az energetikai tanúsítvány készítése folyamatban van, amint rendelkezésre áll, úgy azzal a hirdetés frissítésre kerül.

Energetikai tanúsítvány jelenleg nem elérhető.

Referencia szám: M296439

Hirdetés feltöltve: 2026. 02. 18. Utoljára módosítva: 2026. 05. 25.

3 szobás téglalakások ára Szegeden

Ebből az összehasonlításból megtudhatod, hogyan viszonyul a lakás ára a környékbeli téglalakások átlagos árához. Ez nem azt jelenti, hogy ennyivel olcsóbb vagy drágább, mint amennyit a lakás ér, hanem hogy ennyivel tér el a környékbeli átlagtól.

Ennek a m² ára
Szeged m² ár
1243 e Ft
1130 e Ft -10%
Ennek az ára
Szeged átlagár
89.501 M Ft m Ft
86.4 m Ft -4%

Az ingatlan elhelyezkedése

Cím: Szeged, földszint

Eladó téglalakások a környékről

Szeged, Belváros
Eladó téglalakás

Szeged

220 M Ft
4 szoba
176 m²
Szeged, Kálvária sugárút környéke, Bakay Nándor utca
Eladó téglalakás

Szeged

160 M Ft
3 + 1 szoba
152 m²
Szeged
Eladó téglalakás

Szeged

70.9 M Ft
3 szoba
70 m²
Deszk
Eladó téglalakás

Deszk

44.9 M Ft
3 szoba
66 m²
Szeged
Eladó téglalakás

Szeged

99.99 M Ft
4 szoba
104 m²
Szeged
Eladó téglalakás

Szeged

73.9 M Ft
3 szoba
66 m²
Szeged
Eladó téglalakás

Szeged

135 M Ft
4 szoba
116 m²
Szeged
Eladó téglalakás

Szeged

99.99 M Ft
4 szoba
104 m²
Szeged
Eladó téglalakás

Szeged

39.9 M Ft
2 szoba
32 m²
Szeged
Eladó téglalakás

Szeged

39.9 M Ft
2 szoba
32 m²
Szeged
Eladó téglalakás

Szeged

119.9 M Ft
5 szoba
118 m²
Szeged
Eladó téglalakás

Szeged

135 M Ft
4 szoba
116 m²
Szeged, Belváros
Eladó téglalakás

Szeged

220 M Ft
4 szoba
176 m²
Szeged
Eladó téglalakás

Szeged

73.9 M Ft
3 szoba
66 m²
Szeged
Eladó téglalakás

Szeged

84.9 M Ft
3 szoba
82 m²
Szeged
Eladó téglalakás

Szeged

77.8 M Ft
3 szoba
98 m²
Szeged, Rókus, Damjanich utca
Eladó téglalakás

Szeged

81.59 M Ft
5 szoba
96 m²
Szeged, Rókus, Damjanich utca
Eladó téglalakás

Szeged

81.59 M Ft
5 szoba
96 m²
Szeged
Eladó téglalakás

Szeged

39.9 M Ft
2 szoba
32 m²
Szeged
Eladó téglalakás

Szeged

116 M Ft
5 szoba
144 m²
Szeged
Eladó téglalakás

Szeged

70.9 M Ft
3 szoba
70 m²
Szeged, Londoni körút
Eladó téglalakás

Szeged

59.9 M Ft
2 szoba
55 m²
Szeged
Eladó téglalakás

Szeged

114.9 M Ft
4 + 1 szoba
261 m²
Szeged
Eladó téglalakás

Szeged

109.9 M Ft
3 szoba
91 m²

Falusi CSOK ingatlanok

Balatonszemes
Eladó téglalakás

Balatonszemes

123.3 M Ft
2 szoba
0 m²
Balatonszemes
Eladó téglalakás

Balatonszemes

125.2 M Ft
2 szoba
50 m²
Jászkarajenő
Eladó családi ház

Jászkarajenő

12.9 M Ft
2 szoba
48 m²
Törtel
Eladó családi ház

Törtel

16 M Ft
3 szoba
87 m²
Segesd
Eladó családi ház

Segesd

14.9 M Ft
2 szoba
66 m²
Balatonszemes
Eladó téglalakás

Balatonszemes

244.5 M Ft
3 szoba
0 m²
Kaposgyarmat
Eladó családi ház

Kaposgyarmat

695 M Ft
6 szoba
610 m²
Balatonszepezd
Eladó családi ház

Balatonszepezd

299 M Ft
5 szoba
220 m²