Aerogate Homes

Eladó téglalakás
Szeged

590 000 000 Ft590 M Ft 1 953 642 Ft/m2
6 szoba
302 m2
építés éve:2023

Részletes adatok

Állapot: Újszerű
Fűtés: Egyéb
Extrák: Lift
Energetikai besorolás: Nem adta meg a hirdető

Az OTP Bank lakáshitel ajánlataFizetett hirdetés

+36 30 628
Kádár Zoltán László
referens

Érdekel az OTP Bank kedvezményes lakáshitel ajánlata? *

* A kérdésre „Igen” válasz bejelölése esetén, az „Üzenet küldése” gombra kattintva kijelentem, hogy az OTP Bank Nyrt. Adatkezelési tájékoztatójának tartalmát megismertem és tudomásul vettem.

Eladó téglalakás leírása

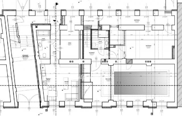
Szeged belvárosában kínálunk megvételre egy valóban egyedülálló, ÖNFENNTARTÓ, 302 m2 alapterületű, 5 szobás, magasföldszinti luxuslakást, amely egy exkluzív városi rezidencia kényelmét és egy privát wellness otthon nyugalmát ötvözi.
Az ingatlan saját, intelligens vezérlőrendszerrel rendelkezik, amely a fűtést, hűtést, világítást és az árnyékolást is kezeli, így a teljes lakás egyetlen központból irányítható. A tágas terek, a nagy belmagasság és a prémium burkolatok elegáns, időtálló atmoszférát teremtenek.
A lakás különlegessége a saját, fűtött medencével kialakított wellness-rész, valamint a privát konditerem, amely valódi luxuséletstílust biztosít anélkül, hogy el kellene hagyni az otthont. Ilyen adottság Szegeden rendkívül ritka.
Az ingatlanhoz autóbeállási lehetőség is tartozik, ami a belvárosban kiemelt értéket képvisel. Az elhelyezkedés tökéletes: csendes, mégis minden fontos szolgáltatás, étterem, kulturális és üzleti központ néhány perc sétával elérhető.
Ez az ingatlan nem csupán egy lakás, hanem egy városi luxusrezidencia, amely azoknak szól, akik nem kötnek kompromisszumot térben, kényelemben és exkluzivitásban.
Megtekintésért keressen bizalommal!

Hirdetés feltöltve: 2026. 01. 14. Utoljára módosítva: 2026. 01. 14.

Az ingatlan elhelyezkedése

Cím: Szeged

Eladó téglalakások a környékről

Eladó téglalakás
Eladó téglalakás

Kistelek, Kossuth utca

58 M Ft
3 szoba
115 m2
Eladó téglalakás
Eladó téglalakás

Szeged, Belváros, Bakay Nándor utca

209.9 M Ft
2 + 2 szoba
196 m2
Eladó téglalakás
Eladó téglalakás

Szeged, Belváros, Bakay Nándor utca

209.9 M Ft
2 + 2 szoba
196 m2
Eladó téglalakás
Eladó téglalakás

Szeged

599.999 M Ft
4 szoba
302 m2
Eladó téglalakás
Eladó téglalakás

Deszk

44.9 M Ft
3 szoba
66 m2
Eladó téglalakás
Eladó téglalakás

Szeged, Londoni körút

59.9 M Ft
2 szoba
55 m2
Eladó téglalakás
Eladó téglalakás

Szeged

80.9 M Ft
3 szoba
64 m2
Eladó téglalakás
Eladó téglalakás

Szeged

149 M Ft
4 + 1 szoba
132 m2
Eladó téglalakás
Eladó téglalakás

Szeged

99.99 M Ft
4 szoba
104 m2
Eladó téglalakás
Eladó téglalakás

Szeged

114.9 M Ft
4 + 1 szoba
261 m2
Eladó téglalakás
Eladó téglalakás

Szeged

109.9 M Ft
3 szoba
91 m2
Eladó téglalakás
Eladó téglalakás

Szeged

79.9 M Ft
3 szoba
71 m2
Eladó téglalakás
Eladó téglalakás

Kistelek, Kossuth utca

38.5 M Ft
2 szoba
95 m2
Eladó téglalakás
Eladó téglalakás

Szeged

109.9 M Ft
3 szoba
91 m2
Eladó téglalakás
Eladó téglalakás

Szeged

119.9 M Ft
5 szoba
118 m2
Eladó téglalakás
Eladó téglalakás

Szeged

119.9 M Ft
5 szoba
118 m2
Eladó téglalakás
Eladó téglalakás

Szeged

39.9 M Ft
2 szoba
32 m2
Eladó téglalakás
Eladó téglalakás

Szeged

39.9 M Ft
2 szoba
32 m2
Eladó téglalakás
Eladó téglalakás

Szeged

52.9 M Ft
3 szoba
48 m2
Eladó téglalakás
Eladó téglalakás

Szeged

149 M Ft
4 + 1 szoba
132 m2
Eladó téglalakás
Eladó téglalakás

Szeged

70.9 M Ft
3 szoba
70 m2
Eladó téglalakás
Eladó téglalakás

Szeged

39.9 M Ft
2 szoba
32 m2
Eladó téglalakás
Eladó téglalakás

Szeged

114.9 M Ft
4 + 1 szoba
261 m2
Eladó téglalakás
Eladó téglalakás

Szeged

79 M Ft
4 szoba
85 m2

Falusi CSOK ingatlanok

Eladó családi ház
Eladó családi ház

Csengőd

42 M Ft
2 szoba
81 m2
Eladó családi ház
Eladó családi ház

Pusztamonostor

22 M Ft
3 szoba
86 m2
Eladó családi ház
Eladó családi ház

Homokbödöge

49.9 M Ft
4 + 1 szoba
167 m2
Eladó családi ház
Eladó családi ház

Simontornya

26 M Ft
3 szoba
60 m2
Eladó családi ház
Eladó családi ház

Kölked

42 M Ft
3 szoba
100 m2
Eladó családi ház
Eladó családi ház

Somogymeggyes

14 M Ft
3 szoba
86 m2
Eladó családi ház
Eladó családi ház

Nagyiván, Rákóczi Ferenc út 17

4.99 M Ft
2 szoba
50 m2
Eladó családi ház
Eladó családi ház

Herend

119.6 M Ft
5 szoba
108 m2