BAM Living

Eladó téglalakás
Szeged, Ikerház

+ 9 kép 1/12
100 000 000 Ft100 M Ft 1 136 364 Ft/m2
1 + 2 szoba
88 m2
Ikerház
építés éve:2024

Részletes adatok

Fűtés: Egyéb
Emelet: 2. emelet
Energetikai besorolás: Nem adta meg a hirdető

Az OTP Bank lakáshitel ajánlataFizetett hirdetés

+36 30 821
Dajka Szilvia
Homing Szeged Ingatlaniroda

Érdekel az OTP Bank kedvezményes lakáshitel ajánlata? *

* A kérdésre „Igen” válasz bejelölése esetén, az „Üzenet küldése” gombra kattintva kijelentem, hogy az OTP Bank Nyrt. Adatkezelési tájékoztatójának tartalmát megismertem és tudomásul vettem.

Eladó téglalakás leírása

Eladó prémium lakás Szegeden, az Örökzöld Lakóparkban!

Azonnal birtokba vehető újépítésű lakások kulcsrakész állapotban eladóak. Már csak 4 db lakás elérhető.
Használatbavételi engedéllyel rendelkezik az épület, hitel igényelhető a lakásokra.

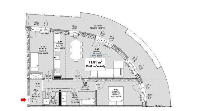
A szegedi Örökzöld Lakópark I. ütemében eladó egy modern, amerikai konyhás nappali + 2 hálószobás, erkélyes lakás (9. számú). A lakás a II. emeleten helyezkedik el, és egy tágas, 35,49 nm-es erkély tartozik hozzá, amely nyugodt kilátást biztosít a parkos belső udvarra (2787 nm) és a Tiszára. A praktikus elrendezésű ingatlan 71,81 m² nettó alapterülettel rendelkezik, az erkély felével számolva összesen 88 m² hasznos tér biztosít.

A képek a már kész lakásról készültek, a látványképek virtuálisan berendezett fotók a lakás helyiségeiről, a bútorok, dekorációk illusztrációk.

Ideális választás mindazoknak, akik kényelmes, modern környezetben szeretnének élni, miközben a város nyújtotta előnyöket élvezhetik.

A liftes, akadálymentesített házban már csak néhány lakás elérhető – ne maradjon le!

Időpont egyeztetés után személyesen a helyszínen is megtekinthetőek a lakások.

A kivitelező megbízható, és számtalan referenciával rendelkezik, melyek Szeged különböző pontjain megtalálhatóak.

Videók is elérhetőek:

A projektről bővebb információért kérjen email-s vagy telefonos tájékoztatást.

A tervdokumentáció az irodánkban a Csongrádi sgt. 41. szám alatt előzetes egyeztetés után megtekinthető.

Amennyiben a vásárláshoz hitelre van szüksége, egyedi igényekre szabott lakáshitelekkel állunk rendelkezésére. Bank független hiteltanácsadónk az országban elérhető összes bank és hitelintézet ajánlatát versenyezteti az Ön számára díjmentesen.

Hirdetés feltöltve: 2025. 12. 09. Utoljára módosítva: 2026. 01. 24.

3 szobás téglalakások ára Szegeden

Ebből az összehasonlításból megtudhatod, hogyan viszonyul a lakás ára a környékbeli téglalakások átlagos árához. Ez nem azt jelenti, hogy ennyivel olcsóbb vagy drágább, mint amennyit a lakás ér, hanem hogy ennyivel tér el a környékbeli átlagtól.

Ennek a m² ára
Szeged m² ár
1136 e Ft
1092 e Ft -4%
Ennek az ára
Szeged átlagár
100 M Ft m Ft
86 m Ft -16%

Az ingatlan elhelyezkedése

Cím: Szeged, Ikerház

Eladó téglalakások a környékről

Eladó téglalakás
Eladó téglalakás

Szeged

52.9 M Ft
3 szoba
48 m2
Eladó téglalakás
Eladó téglalakás

Szeged

109.9 M Ft
3 szoba
91 m2
Eladó téglalakás
Eladó téglalakás

Szeged

79 M Ft
4 szoba
85 m2
Eladó téglalakás
Eladó téglalakás

Szeged

74.9 M Ft
3 szoba
57 m2
Eladó téglalakás
Eladó téglalakás

Szeged

119.9 M Ft
5 szoba
118 m2
Eladó téglalakás
Eladó téglalakás

Szeged

58.7 M Ft
2 szoba
49 m2
Eladó téglalakás
Eladó téglalakás

Deszk

44.9 M Ft
3 szoba
66 m2
Eladó téglalakás
Eladó téglalakás

Szeged

58.7 M Ft
2 szoba
49 m2
Eladó téglalakás
Eladó téglalakás

Szeged

84.9 M Ft
3 szoba
82 m2
Eladó téglalakás
Eladó téglalakás

Szeged

149 M Ft
4 + 1 szoba
132 m2
Eladó téglalakás
Eladó téglalakás

Szeged

79.9 M Ft
3 szoba
86 m2
Eladó téglalakás
Eladó téglalakás

Deszk

44.9 M Ft
2 szoba
66 m2
Eladó téglalakás
Eladó téglalakás

Szeged

79.9 M Ft
2 szoba
63 m2
Eladó téglalakás
Eladó téglalakás

Szeged, Londoni körút

59.9 M Ft
2 szoba
55 m2
Eladó téglalakás
Eladó téglalakás

Szeged, Belváros, Bakay Nándor utca

209.9 M Ft
2 + 2 szoba
196 m2
Eladó téglalakás
Eladó téglalakás

Szeged

39.9 M Ft
2 szoba
32 m2
Eladó téglalakás
Eladó téglalakás

Szeged

79.9 M Ft
3 szoba
71 m2
Eladó téglalakás
Eladó téglalakás

Szeged

70.9 M Ft
3 szoba
70 m2
Eladó téglalakás
Eladó téglalakás

Szeged

70.9 M Ft
3 szoba
70 m2
Eladó téglalakás
Eladó téglalakás

Szeged

99.99 M Ft
4 szoba
104 m2
Eladó téglalakás
Eladó téglalakás

Szeged

114.9 M Ft
4 + 1 szoba
261 m2
Eladó téglalakás
Eladó téglalakás

Szeged

73.9 M Ft
3 szoba
66 m2
Eladó téglalakás
Eladó téglalakás

Szeged

599.999 M Ft
4 szoba
302 m2
Eladó téglalakás
Eladó téglalakás

Szeged

149 M Ft
4 + 1 szoba
132 m2

Falusi CSOK ingatlanok

Eladó családi ház
Eladó családi ház

Bag

16.9 M Ft
6 szoba
160 m2
Eladó családi ház
Eladó családi ház

Tápiószőlős

14.9 M Ft
2 szoba
67 m2
Eladó családi ház
Eladó családi ház

Kengyel

22.9 M Ft
3 szoba
100 m2
Eladó családi ház
Eladó családi ház

Letenye

46.5 M Ft
7 szoba
220 m2
Eladó családi ház
Eladó családi ház

Sárok, Kossuth Lajos utca

21.9 M Ft
3 szoba
97 m2
Eladó családi ház
Eladó családi ház

Maráza

29.9 M Ft
3 szoba
96 m2
Eladó családi ház
Eladó családi ház

Jakabszállás

69.99 M Ft
1 + 4 szoba
91 m2
Eladó családi ház
Eladó családi ház

Kenyeri

21.8 M Ft
2 szoba
75 m2