NapForrás 20 - Buda

Eladó téglalakás
Szeged, 2. emelet

+ 4 kép 1/7
73 604 000 Ft73.604 M Ft 1 269 034 Ft/m2
2 + 1 szoba
58 m2
2. emelet
építés éve:2025

Részletes adatok

Fűtés: Egyéb
Extrák: Lift
Energetikai besorolás: Nem adta meg a hirdető

Az OTP Bank lakáshitel ajánlataFizetett hirdetés

+36 30 628
Kádár Zoltán László
referens

Érdekel az OTP Bank kedvezményes lakáshitel ajánlata? *

* A kérdésre „Igen” válasz bejelölése esetén, az „Üzenet küldése” gombra kattintva kijelentem, hogy az OTP Bank Nyrt. Adatkezelési tájékoztatójának tartalmát megismertem és tudomásul vettem.

Eladó téglalakás leírása

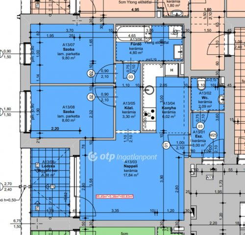
Szeged, újszegedi 58,14 m2-es, 2 + 1 szobás, 2. emeleti, újépítésű téglalakás, tulajdonos-kivitelezőtől, kulcsrakész állapotban eladó. Az átadás tervezett időpontja: 2026.03.30. A lakásban amerikai konyhás nappali, 1 + 1 szoba, fürdőszoba, wc és loggia található. A szobák laminált parketta-, a többi helyiség járólap burkolatot kapnak. Az otthon melegét hőszivattyús fűtés biztosítja. A lakáshoz opcionálisan, udvari beálló, vagy garázs is vásárolható. Tökéletes kertvárosi elhelyezkedése miatt kedvező lehetőség lehet diákoknak, pároknak és befektetőknek, akár rövid-, akár hosszútávú kiadásra egyaránt. Az ingatlan megvásárlásához kedvező hitel is igényelhető, melynek intézéséhez szakszerű segítség áll a leendő vásárló rendelkezésére.

Hirdetés feltöltve: 2025. 11. 14. Utoljára módosítva: 2025. 11. 14.

3 szobás téglalakások ára Szegeden

Ebből az összehasonlításból megtudhatod, hogyan viszonyul a lakás ára a környékbeli téglalakások átlagos árához. Ez nem azt jelenti, hogy ennyivel olcsóbb vagy drágább, mint amennyit a lakás ér, hanem hogy ennyivel tér el a környékbeli átlagtól.

Ennek a m² ára
Szeged m² ár
1269 e Ft
1081 e Ft -17%
Ennek az ára
Szeged átlagár
73.604 M Ft m Ft
85 m Ft 13%

Az ingatlan elhelyezkedése

Cím: Szeged, 2. emelet

Eladó téglalakások a környékről

Eladó téglalakás
Eladó téglalakás

Szeged

39.9 M Ft
2 szoba
32 m2
Eladó téglalakás
Eladó téglalakás

Szeged

39.9 M Ft
2 szoba
32 m2
Eladó téglalakás
Eladó téglalakás

Szeged

109.9 M Ft
3 szoba
91 m2
Eladó téglalakás
Eladó téglalakás

Szeged

79.9 M Ft
2 szoba
63 m2
Eladó téglalakás
Eladó téglalakás

Szeged

70.9 M Ft
3 szoba
70 m2
Eladó téglalakás
Eladó téglalakás

Szeged

52.9 M Ft
3 szoba
48 m2
Eladó téglalakás
Eladó téglalakás

Szeged

599.999 M Ft
4 szoba
302 m2
Eladó téglalakás
Eladó téglalakás

Szeged

39.9 M Ft
2 szoba
32 m2
Eladó téglalakás
Eladó téglalakás

Szeged

79 M Ft
4 szoba
85 m2
Eladó téglalakás
Eladó téglalakás

Deszk

44.9 M Ft
2 szoba
66 m2
Eladó téglalakás
Eladó téglalakás

Szeged, Londoni körút

59.9 M Ft
2 szoba
55 m2
Eladó téglalakás
Eladó téglalakás

Szeged

71.5 M Ft
3 szoba
71 m2
Eladó téglalakás
Eladó téglalakás

Szeged

80.9 M Ft
3 szoba
64 m2
Eladó téglalakás
Eladó téglalakás

Szeged

74.9 M Ft
3 szoba
57 m2
Eladó téglalakás
Eladó téglalakás

Szeged

119.9 M Ft
5 szoba
118 m2
Eladó téglalakás
Eladó téglalakás

Szeged

73.9 M Ft
3 szoba
66 m2
Eladó téglalakás
Eladó téglalakás

Szeged

140.525 M Ft
4 szoba
176 m2
Eladó téglalakás
Eladó téglalakás

Szeged

109.9 M Ft
3 szoba
91 m2
Eladó téglalakás
Eladó téglalakás

Szeged

58.7 M Ft
2 szoba
49 m2
Eladó téglalakás
Eladó téglalakás

Szeged

119.9 M Ft
5 szoba
118 m2
Eladó téglalakás
Eladó téglalakás

Szeged

73.9 M Ft
3 szoba
66 m2
Eladó téglalakás
Eladó téglalakás

Szeged, Belváros, Bakay Nándor utca

209.9 M Ft
2 + 2 szoba
196 m2
Eladó téglalakás
Eladó téglalakás

Szeged

79.9 M Ft
2 szoba
63 m2
Eladó téglalakás
Eladó téglalakás

Szeged

79.9 M Ft
3 szoba
71 m2

Falusi CSOK ingatlanok

Eladó családi ház
Eladó családi ház

Vásárosdombó

14.99 M Ft
2 szoba
69 m2
Eladó családi ház
Eladó családi ház

Kislippó

16 M Ft
3 szoba
100 m2
Eladó családi ház
Eladó családi ház

Hosszúpereszteg

27.9 M Ft
4 szoba
121 m2
Eladó családi ház
Eladó családi ház

Szabadbattyán

67.5 M Ft
5 szoba
180 m2
Eladó családi ház
Eladó családi ház

Tihany

149 M Ft
5 szoba
270 m2
Eladó családi ház
Eladó családi ház

Szenyér

6.5 M Ft
2 szoba
67 m2
Eladó családi ház
Eladó családi ház

Tab

14.9 M Ft
3 szoba
110 m2
Eladó családi ház
Eladó családi ház

Kétpó

14.9 M Ft
1 + 2 szoba
86 m2