Stay Family Park

Eladó téglalakás
Szántód

+ 12 kép 1/15
89 900 000 Ft89.9 M Ft 1 248 611 Ft/m2
3 szoba
72 m2
építés éve:2024

Részletes adatok

Fűtés: Egyéb
Energetikai besorolás: Nem adta meg a hirdető

Az OTP Bank lakáshitel ajánlataFizetett hirdetés

+36 70 316
Zsitnyányi Ágnes
referens

Érdekel az OTP Bank kedvezményes lakáshitel ajánlata? *

* A kérdésre „Igen” válasz bejelölése esetén, az „Üzenet küldése” gombra kattintva kijelentem, hogy az OTP Bank Nyrt. Adatkezelési tájékoztatójának tartalmát megismertem és tudomásul vettem.

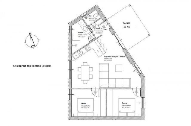
Eladó téglalakás leírása

Balaton Déli part, Szántód, 72 m2 lakás eladó. A 66 m2 alapterületű, 12 m2 terasszal kiegészített lakás egy két szintes ház földszintjén helyezkedik el, 234 m2 saját kerttel és saját parkolóval rendelkezik. A ház a település kertvárosias, természetközeli lakóövezetében, örökpanorámával a közvetlen szomszédságában elterülő, a Balatoni Nemzeti Park részét képező területre, 500 méterre a Balatontól. Az ingatlan hőszigetelt, fűtését kombi gázkazán biztosítja, amit padlófűtés és hűtő-fűtő klíma egészít ki, a nyílászárókon elektromos távirányítós redőny, szúnyogháló. Kiváló lehetőség akár állandó lakhatásra akár nyaralásra, de befektetésnek, kiadásra is tökéletes megoldás. A Balaton-part és strandolási lehetőség, a Balaland 5* szálloda és élményfürdő gyalog 10 perc, a Szántódpusztai Majorság autóval pár perc távolságra található, így a pihenés számos módja könnyen elérhető minden korosztály számára. A lakáshoz tartozó parkoló ára 3 M Ft, amit nem tartalmaz a hirdetési ár. Várható átadás legkésőbb 2026. január. A lakás megvételéhez OTP Otthon Start Lakáshitel igényelhető. Bővebb információért vagy a többi elérhető lakással kapcsolatban keressen telefonon! M286580

Hirdetés feltöltve: 2025. 08. 28. Utoljára módosítva: 2025. 11. 28.

3 szobás téglalakások ára Szántódon

Ebből az összehasonlításból megtudhatod, hogyan viszonyul a lakás ára a környékbeli téglalakások átlagos árához. Ez nem azt jelenti, hogy ennyivel olcsóbb vagy drágább, mint amennyit a lakás ér, hanem hogy ennyivel tér el a környékbeli átlagtól.

Ennek a m² ára
Szántód m² ár
1249 e Ft
2619 e Ft 52%
Ennek az ára
Szántód átlagár
89.9 M Ft m Ft
193 m Ft 53%

Az ingatlan elhelyezkedése

Cím: Szántód

Eladó téglalakások a környékről

Eladó téglalakás
Eladó téglalakás

Szántód, Parti Villasor 1

330.75 M Ft
4 + 3 szoba
175 m2
Eladó téglalakás
Eladó téglalakás

Szántód

64.9 M Ft
2 szoba
55 m2
Eladó téglalakás
Eladó téglalakás

Balatonfenyves

78.975 M Ft
1 szoba
35 m2
Eladó téglalakás
Eladó téglalakás

Szántód

330.75 M Ft
4 + 3 szoba
175 m2
Eladó téglalakás
Eladó téglalakás

Siófok

122 M Ft
3 szoba
65 m2
Eladó téglalakás
Eladó téglalakás

Szántód

32.9 M Ft
2 szoba
40 m2
Eladó téglalakás
Eladó téglalakás

Szántód

164.9 M Ft
2 szoba
55 m2
Eladó téglalakás
Eladó téglalakás

Siófok

83.5 M Ft
3 szoba
66 m2
Eladó téglalakás
Eladó téglalakás

Balatonfenyves

169.5 M Ft
4 szoba
90 m2
Eladó téglalakás
Eladó téglalakás

Balatonfenyves

135.05 M Ft
2 szoba
59 m2
Eladó téglalakás
Eladó téglalakás

Szántód

64.9 M Ft
3 szoba
55 m2
Eladó téglalakás
Eladó téglalakás

Szántód

64.9 M Ft
3 szoba
55 m2
Eladó téglalakás
Eladó téglalakás

Szántód

64.9 M Ft
2 szoba
55 m2
Eladó téglalakás
Eladó téglalakás

Szántód

79.9 M Ft
3 szoba
72 m2
Eladó téglalakás
Eladó téglalakás

Balatonfenyves

938.75 M Ft
3 szoba
145 m2
Eladó téglalakás
Eladó téglalakás

Balatonfenyves

563.75 M Ft
4 szoba
114 m2
Eladó téglalakás
Eladó téglalakás

Balatonfenyves

124.9 M Ft
3 szoba
67 m2
Eladó téglalakás
Eladó téglalakás

Szántód

341.5 M Ft
3 szoba
63 m2
Eladó téglalakás
Eladó téglalakás

Siófok, Ezustparti utca

76.4 M Ft
3 szoba
58 m2
Eladó téglalakás
Eladó téglalakás

Siófok

54.99 M Ft
1 szoba
41 m2
Eladó téglalakás
Eladó téglalakás

Balatonfenyves

127.65 M Ft
2 szoba
51 m2
Eladó téglalakás
Eladó téglalakás

Balatonfenyves

218.75 M Ft
2 szoba
66 m2
Eladó téglalakás
Eladó téglalakás

Balatonfenyves

115.625 M Ft
2 szoba
51 m2
Eladó téglalakás
Eladó téglalakás

Balatonfenyves

79 M Ft
1 szoba
35 m2

Falusi CSOK ingatlanok

Eladó családi ház
Eladó családi ház

Hövej

119.9 M Ft
3 szoba
75 m2
Eladó ikerház
Eladó ikerház

Táborfalva

49.9 M Ft
4 szoba
54 m2
Eladó családi ház
Eladó családi ház

Pórszombat

20.5 M Ft
3 szoba
88 m2
Eladó családi ház
Eladó családi ház

Fertőszentmiklós

98.5 M Ft
4 szoba
82 m2
Eladó téglalakás
Eladó téglalakás

Balatonszemes

202 M Ft
3 szoba
154 m2
Eladó családi ház
Eladó családi ház

Kondorfa, Alvég utca

34.9 M Ft
1 + 1 szoba
67 m2
Eladó családi ház
Eladó családi ház

Balatonszárszó

185 M Ft
6 szoba
260 m2
Eladó családi ház
Eladó családi ház

Vaskút

64 M Ft
5 szoba
180 m2