Eladó téglalakás
Szántód, földszint

+ 8 kép 1/11
74 900 000 Ft74.9 M Ft 1 085 507 Ft/m2
3 szoba
69 m2
földszint
építés éve:2024

Részletes adatok

Fűtés: Egyéb
Energetikai besorolás: Nem adta meg a hirdető

Az OTP Bank lakáshitel ajánlataFizetett hirdetés

+36 70 316
Zsitnyányi Ágnes
referens

Érdekel az OTP Bank kedvezményes lakáshitel ajánlata? *

* A kérdésre „Igen” válasz bejelölése esetén, az „Üzenet küldése” gombra kattintva kijelentem, hogy az OTP Bank Nyrt. Adatkezelési tájékoztatójának tartalmát megismertem és tudomásul vettem.

Eladó téglalakás leírása

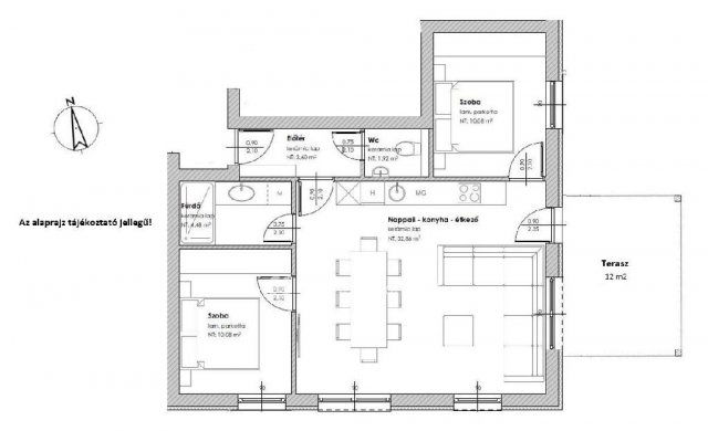
Balaton Déli parton, Szántódon, 69 m2-es lakás eladó. A 63 m2 alapterületű, 12 m2 terasszal kiegészített lakás egy két szintes ház földszintjén helyezkedik el, 104 m2 saját kerttel és saját parkolóval rendelkezik. A ház a település kertvárosias, természetközeli lakóövezetében, örökpanorámával a közvetlen szomszédságában elterülő, a Balatoni Nemzeti Park részét képező területre, 500 méterre a Balatontól. Az ingatlan hőszigetelt, fűtését kombi gázkazán biztosítja, amit padlófűtés és hűtő-fűtő klíma egészít ki, a nyílászárókon elektromos távirányítós redőny, szúnyogháló. Kiváló lehetőség akár állandó lakhatásra akár nyaralásra, de befektetésnek, kiadásra is tökéletes megoldás. A Balaton-part és strandolási lehetőség, a Balaland 5* szálloda és élményfürdő gyalog 10 perc, a Szántódpusztai Majorság autóval pár perc távolságra található, így a pihenés számos módja könnyen elérhető minden korosztály számára. A lakáshoz tartozó parkoló ára 3 M Ft, amit nem tartalmaz a hirdetési ár. Várható befejezés 2025. október. Otthon Start Hitelprogram. Bővebb információért vagy a többi elérhető lakással kapcsoltban keressen telefonon!

Referencia szám: M286575

Hirdetés feltöltve: 2025. 03. 27. Utoljára módosítva: 2025. 10. 22.

3 szobás téglalakások ára Szántódon

Ebből az összehasonlításból megtudhatod, hogyan viszonyul a lakás ára a környékbeli téglalakások átlagos árához. Ez nem azt jelenti, hogy ennyivel olcsóbb vagy drágább, mint amennyit a lakás ér, hanem hogy ennyivel tér el a környékbeli átlagtól.

Ennek a m² ára
Szántód m² ár
1086 e Ft
2141 e Ft 49%
Ennek az ára
Szántód átlagár
74.9 M Ft m Ft
154.9 m Ft 52%

Az ingatlan elhelyezkedése

Cím: Szántód, földszint

Eladó téglalakások a környékről

Eladó téglalakás
Eladó téglalakás

Szántód

550 M Ft
8 szoba
258 m2
Eladó téglalakás
Eladó téglalakás

Szántód, Parti Villasor 1

330.75 M Ft
4 + 3 szoba
175 m2
Eladó téglalakás
Eladó téglalakás

Szántód

79.9 M Ft
3 szoba
46 m2
Eladó téglalakás
Eladó téglalakás

Balatonfenyves

79 M Ft
1 szoba
35 m2
Eladó téglalakás
Eladó téglalakás

Balatonszemes, Ady E. utca 6

132.9 M Ft
3 szoba
62 m2
Eladó téglalakás
Eladó téglalakás

Balatonfenyves

129.5 M Ft
3 szoba
67 m2
Eladó téglalakás
Eladó téglalakás

Szántód

89.9 M Ft
3 szoba
72 m2
Eladó téglalakás
Eladó téglalakás

Szántód

299 M Ft
3 szoba
88 m2
Eladó téglalakás
Eladó téglalakás

Siófok

122 M Ft
3 szoba
65 m2
Eladó téglalakás
Eladó téglalakás

Balatonfenyves

115.625 M Ft
2 szoba
51 m2
Eladó téglalakás
Eladó téglalakás

Szántód

79.9 M Ft
3 szoba
71 m2
Eladó téglalakás
Eladó téglalakás

Szántód

600 M Ft
3 szoba
200 m2
Eladó téglalakás
Eladó téglalakás

Balatonfenyves

135.05 M Ft
2 szoba
59 m2
Eladó téglalakás
Eladó téglalakás

Szántód

248.5 M Ft
3 szoba
63 m2
Eladó téglalakás
Eladó téglalakás

Balatonfenyves

149 M Ft
2 szoba
59 m2
Eladó téglalakás
Eladó téglalakás

Szántód

32.9 M Ft
2 szoba
40 m2
Eladó téglalakás
Eladó téglalakás

Balatonfenyves

127.65 M Ft
2 szoba
51 m2
Eladó téglalakás
Eladó téglalakás

Balatonfenyves

191.4 M Ft
3 szoba
66 m2
Eladó téglalakás
Eladó téglalakás

Szántód

248.5 M Ft
3 szoba
63 m2
Eladó téglalakás
Eladó téglalakás

Szántód

32.5 M Ft
2 szoba
30 m2
Eladó téglalakás
Eladó téglalakás

Szántód

69.9 M Ft
3 szoba
64 m2
Eladó téglalakás
Eladó téglalakás

Szántód

330.75 M Ft
4 + 3 szoba
175 m2
Eladó téglalakás
Eladó téglalakás

Balatonfenyves

78.975 M Ft
1 szoba
35 m2
Eladó téglalakás
Eladó téglalakás

Siófok

54.99 M Ft
1 szoba
41 m2

Falusi CSOK ingatlanok

Eladó családi ház
Eladó családi ház

Tök

125.4 M Ft
4 szoba
135 m2
Eladó családi ház
Eladó családi ház

Lovászpatona

15.9 M Ft
3 szoba
72 m2
Eladó családi ház
Eladó családi ház

Bezenye

84.9 M Ft
4 + 1 szoba
145 m2
Eladó családi ház
Eladó családi ház

Hévízgyörk, Fenyves utca

149 M Ft
4 szoba
220 m2
Eladó családi ház
Eladó családi ház

Tök

96.2 M Ft
4 szoba
104 m2
Eladó családi ház
Eladó családi ház

Geresdlak

24.8 M Ft
1 szoba
50 m2
Eladó családi ház
Eladó családi ház

Ceglédbercel

23 M Ft
2 + 1 szoba
80 m2
Eladó téglalakás
Eladó téglalakás

Tiszakeszi

12.9 M Ft
2 + 1 szoba
80 m2