Astora Art House

Eladó téglalakás
Szántód, földszint

+ 12 kép 1/15
89 900 000 Ft89.9 M Ft 1 248 611 Ft/m2
3 szoba
72 m2
földszint
építés éve:2024

Részletes adatok

Fűtés: Egyéb
Energetikai besorolás: Nem adta meg a hirdető

Az OTP Bank lakáshitel ajánlataFizetett hirdetés

+36 70 316
Zsitnyányi Ágnes
referens

Érdekel az OTP Bank kedvezményes lakáshitel ajánlata? *

* A kérdésre „Igen” válasz bejelölése esetén, az „Üzenet küldése” gombra kattintva kijelentem, hogy az OTP Bank Nyrt. Adatkezelési tájékoztatójának tartalmát megismertem és tudomásul vettem.

Eladó téglalakás leírása

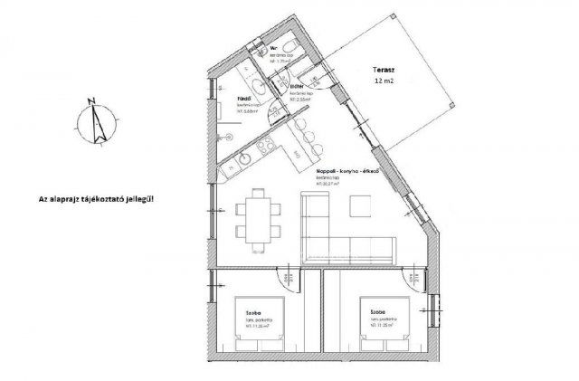
Balaton Déli part, Szántód, 72 m2 lakás eladó. A 66 m2 alapterületű, 12 m2 terasszal kiegészített lakás egy két szintes ház földszintjén helyezkedik el, 234 m2 saját kerttel és saját parkolóval rendelkezik. A ház a település kertvárosias, természetközeli lakóövezetében, örökpanorámával a közvetlen szomszédságában elterülő, a Balatoni Nemzeti Park részét képező területre, 500 méterre a Balatontól. Az ingatlan hőszigetelt, fűtését kombi gázkazán biztosítja, amit padlófűtés és hűtő-fűtő klíma egészít ki, a nyílászárókon elektromos távirányítós redőny, szúnyogháló. Kiváló lehetőség akár állandó lakhatásra akár nyaralásra, de befektetésnek, kiadásra is tökéletes megoldás. A Balaton-part és strandolási lehetőség, a Balaland 5* szálloda és élményfürdő gyalog 10 perc, a Szántódpusztai Majorság autóval pár perc távolságra található, így a pihenés számos módja könnyen elérhető minden korosztály számára. A lakáshoz tartozó parkoló ára 3 M Ft, amit nem tartalmaz a hirdetési ár. Várható átadás legkésőbb 2026. január. A lakás megvételéhez OTP Otthon Start Lakáshitel igényelhető. Bővebb információért vagy a többi elérhető lakással kapcsolatban keressen telefonon! M286580

Referencia szám: M286580

Hirdetés feltöltve: 2025. 03. 27. Utoljára módosítva: 2025. 12. 02.

3 szobás téglalakások ára Szántódon

Ebből az összehasonlításból megtudhatod, hogyan viszonyul a lakás ára a környékbeli téglalakások átlagos árához. Ez nem azt jelenti, hogy ennyivel olcsóbb vagy drágább, mint amennyit a lakás ér, hanem hogy ennyivel tér el a környékbeli átlagtól.

Ennek a m² ára
Szántód m² ár
1249 e Ft
2619 e Ft 52%
Ennek az ára
Szántód átlagár
89.9 M Ft m Ft
193 m Ft 53%

Az ingatlan elhelyezkedése

Cím: Szántód, földszint

Eladó téglalakások a környékről

Eladó téglalakás
Eladó téglalakás

Balatonfenyves

129.5 M Ft
3 szoba
67 m2
Eladó téglalakás
Eladó téglalakás

Siófok, Ezustparti utca

84.9 M Ft
3 szoba
58 m2
Eladó téglalakás
Eladó téglalakás

Szántód

330.75 M Ft
4 + 3 szoba
175 m2
Eladó téglalakás
Eladó téglalakás

Siófok

83.5 M Ft
3 szoba
66 m2
Eladó téglalakás
Eladó téglalakás

Siófok

122 M Ft
3 szoba
65 m2
Eladó téglalakás
Eladó téglalakás

Szántód

32.5 M Ft
2 szoba
30 m2
Eladó téglalakás
Eladó téglalakás

Siófok

49.9 M Ft
2 szoba
41 m2
Eladó téglalakás
Eladó téglalakás

Szántód, Parti Villasor 1

330.75 M Ft
4 + 3 szoba
175 m2
Eladó téglalakás
Eladó téglalakás

Balatonfenyves

79 M Ft
1 szoba
35 m2
Eladó téglalakás
Eladó téglalakás

Balatonfenyves

109 M Ft
2 szoba
45 m2
Eladó téglalakás
Eladó téglalakás

Balatonszemes, Ady E. utca 6

132.9 M Ft
3 szoba
62 m2
Eladó téglalakás
Eladó téglalakás

Balatonfenyves

191.4 M Ft
3 szoba
66 m2
Eladó téglalakás
Eladó téglalakás

Szántód

79.9 M Ft
3 szoba
72 m2
Eladó téglalakás
Eladó téglalakás

Balatonfenyves

115.625 M Ft
2 szoba
51 m2
Eladó téglalakás
Eladó téglalakás

Balatonfenyves

169.5 M Ft
4 szoba
90 m2
Eladó téglalakás
Eladó téglalakás

Szántód

64.9 M Ft
3 szoba
55 m2
Eladó téglalakás
Eladó téglalakás

Szántód

79.9 M Ft
3 szoba
71 m2
Eladó téglalakás
Eladó téglalakás

Szántód

248.5 M Ft
3 szoba
63 m2
Eladó téglalakás
Eladó téglalakás

Szántód

299 M Ft
3 szoba
88 m2
Eladó téglalakás
Eladó téglalakás

Szántód

32.9 M Ft
2 szoba
40 m2
Eladó téglalakás
Eladó téglalakás

Siófok, Ezustparti utca

86.9 M Ft
3 szoba
60 m2
Eladó téglalakás
Eladó téglalakás

Szántód

341.5 M Ft
3 szoba
63 m2
Eladó téglalakás
Eladó téglalakás

Balatonfenyves

149 M Ft
2 szoba
59 m2
Eladó téglalakás
Eladó téglalakás

Balatonfenyves

218.75 M Ft
2 szoba
66 m2

Falusi CSOK ingatlanok

Eladó családi ház
Eladó családi ház

Szabadbattyán

136 M Ft
5 szoba
226 m2
Eladó családi ház
Eladó családi ház

Söpte

94.9 M Ft
4 szoba
94 m2
Eladó családi ház
Eladó családi ház

Gersekarát, Dózsa György utca

6 M Ft
3 szoba
58 m2
Eladó családi ház
Eladó családi ház

Tokod

89 M Ft
6 szoba
187 m2
Eladó családi ház
Eladó családi ház

Orci

119.9 M Ft
6 szoba
200 m2
Eladó családi ház
Eladó családi ház

Csatár

98.5 M Ft
2 + 3 szoba
110 m2
Eladó családi ház
Eladó családi ház

Fertőszentmiklós

98.5 M Ft
4 szoba
82 m2
Eladó ikerház
Eladó ikerház

Táborfalva

49.9 M Ft
4 szoba
54 m2