Eladó téglalakás
Siófok, 1. emelet

49 900 000 Ft49.9 M Ft 1 247 500 Ft/m2
2 szoba
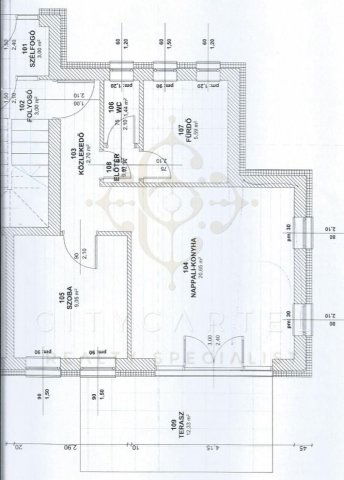
40 m2
1. emelet
építés éve:2023

Részletes adatok

Telekméret: 40 m2
Fűtés: Egyéb
Közmű: Víz, Gáz, Villany, Csatorna
Energetikai besorolás: Nem adta meg a hirdető

Az OTP Bank lakáshitel ajánlataFizetett hirdetés

+36 70 778
Takács Zsolt
City Cartel, Siófok

Érdekel az OTP Bank kedvezményes lakáshitel ajánlata? *

* A kérdésre „Igen” válasz bejelölése esetén, az „Üzenet küldése” gombra kattintva kijelentem, hogy az OTP Bank Nyrt. Adatkezelési tájékoztatójának tartalmát megismertem és tudomásul vettem.

Eladó téglalakás leírása

A CITY CARTEL INGATLANIRODA eladásra kínál Siófok kertvárosi részén, egy új építésű, társasházban található, 2 földszinti és 2 emeleti 1+1 szobás téglalakásokat.

A földszinti lakás nettó 46 nm-es alapterületű, terasz- és kizárólagos kertkapcsolattal, míg az emeleti lakás nettó 38 nm-es és erkélykapcsolattal rendelkeznek.

A lakásokban egy hybrid megoldást alkalmaznak ,egy részről gáz cirkó fűtés biztosítja az otthon melegét padlófűtéses hőleadással, másrészről levegő-levegő hőszivattyús hűtés-fűtés is szolgálja a lakás kényelmét.

A minőségben, kialakításban egyedi igények is érvényesíthetőek - az építkezés fázisainak figyelembevételével - előzetes egyeztetés esetén! Hideg- és meleg burkolatok 8000 Ft/nm-ig, szaniterek értéegyeztetéssel egyedileg választhatók.

Mindegyik lakáshoz felszíni parkolóhely is tartozik, amelyek a vételára 5 000 000 Ft és kötelezően megvásárolandóak.

A lakáshoz egy 4 nm-es tároló is tartozik, ami benne foglaltatik a vételárban.

2026 tavaszán átadásra kerülő lakások kiválóan megfelelnek állandó lakhatásra, vagy akár nyaralónak is.

A centrum, illetve a Balaton-part is 15 perc kényelmes sétával elérhető.

A kivitelező a környék építőiparának több évtizede szerves résztvevője, Siófokon is számos referenciával rendelkező vállalkozás. A kivitelezés már elkezdödőtt, az építkezés folyamatban van.

Remélem felkeltettem érdeklődését. NÁLAM ÖN AZ ELSŐ, további információkért hívjon vagy írjon bátran a hét minden napján, akár hétvégén is!

Irodáink:

8600 Siófok, Fő tér 6. (Sió Pláza -1. szint)

8640 Fonyód, Ady Endre u. 5. (Balaton Áruház földszint)

8638 Balatonlelle, Rákóczi út 276.

Hirdetés feltöltve: 2025. 10. 05.

2 szobás téglalakások ára Siófokon

Ebből az összehasonlításból megtudhatod, hogyan viszonyul a lakás ára a környékbeli téglalakások átlagos árához. Ez nem azt jelenti, hogy ennyivel olcsóbb vagy drágább, mint amennyit a lakás ér, hanem hogy ennyivel tér el a környékbeli átlagtól.

Ennek a m² ára
Siófok m² ár
1248 e Ft
1608 e Ft 22%
Ennek az ára
Siófok átlagár
49.9 M Ft m Ft
86.4 m Ft 42%

Az ingatlan elhelyezkedése

Cím: Siófok, 1. emelet

Eladó téglalakások a környékről

Eladó téglalakás
Eladó téglalakás

Siófok

112.2 M Ft
3 szoba
62 m2
Eladó téglalakás
Eladó téglalakás

Siófok, Kálmán I. sétány

129.969 M Ft
3 szoba
70 m2
Eladó téglalakás
Eladó téglalakás

Siófok

140.25 M Ft
3 szoba
64 m2
Eladó téglalakás
Eladó téglalakás

Siófok, Kálmán I. sétány

69 M Ft
2 szoba
46 m2
Eladó téglalakás
Eladó téglalakás

Balatonfenyves

199.5 M Ft
4 szoba
90 m2
Eladó téglalakás
Eladó téglalakás

Siófok

54.99 M Ft
2 szoba
41 m2
Eladó téglalakás
Eladó téglalakás

Balatonfenyves

135.05 M Ft
2 szoba
59 m2
Eladó téglalakás
Eladó téglalakás

Siófok

54.49 M Ft
2 szoba
41 m2
Eladó téglalakás
Eladó téglalakás

Balatonfenyves

78 M Ft
1 szoba
35 m2
Eladó téglalakás
Eladó téglalakás

Balatonfenyves

191.4 M Ft
3 szoba
66 m2
Eladó téglalakás
Eladó téglalakás

Siófok, Ezustparti utca

86.9 M Ft
3 szoba
60 m2
Eladó téglalakás
Eladó téglalakás

Siófok, Ezustparti utca

76.4 M Ft
3 szoba
58 m2
Eladó téglalakás
Eladó téglalakás

Siófok

116.45 M Ft
3 szoba
62 m2
Eladó téglalakás
Eladó téglalakás

Balatonfenyves

78.975 M Ft
1 szoba
35 m2
Eladó téglalakás
Eladó téglalakás

Siófok, Ezustparti utca

86.9 M Ft
3 szoba
60 m2
Eladó téglalakás
Eladó téglalakás

Siófok

83.5 M Ft
3 szoba
66 m2
Eladó téglalakás
Eladó téglalakás

Siófok

54.99 M Ft
2 szoba
41 m2
Eladó téglalakás
Eladó téglalakás

Balatonfenyves

149 M Ft
2 szoba
59 m2
Eladó téglalakás
Eladó téglalakás

Balatonfenyves

115.625 M Ft
2 szoba
51 m2
Eladó téglalakás
Eladó téglalakás

Siófok

119 M Ft
3 szoba
64 m2
Eladó téglalakás
Eladó téglalakás

Siófok, Ezustparti utca

76.4 M Ft
3 szoba
58 m2
Eladó téglalakás
Eladó téglalakás

Siófok, Kálmán I. sétány

209.121 M Ft
4 szoba
85 m2
Eladó téglalakás
Eladó téglalakás

Siófok

54.49 M Ft
2 szoba
41 m2
Eladó téglalakás
Eladó téglalakás

Balatonfenyves

139.5 M Ft
3 szoba
67 m2

Falusi CSOK ingatlanok

Eladó családi ház
Eladó családi ház

Bezenye

84.9 M Ft
4 + 1 szoba
145 m2
Eladó családi ház
Eladó családi ház

Somogyszil

27.9 M Ft
3 szoba
140 m2
Eladó ikerház
Eladó ikerház

Balatonkenese

84.99 M Ft
3 szoba
76 m2
Eladó családi ház
Eladó családi ház

Sávoly

12.9 M Ft
3 szoba
84 m2
Eladó családi ház
Eladó családi ház

Böhönye, Dózsa körút

20.9 M Ft
5 + 1 szoba
127 m2
Eladó téglalakás
Eladó téglalakás

Nagyszentjános

28.5 M Ft
1 szoba
28 m2
Eladó családi ház
Eladó családi ház

Ceglédbercel

95 M Ft
6 szoba
220 m2
Eladó családi ház
Eladó családi ház

Ugod

53.8 M Ft
3 szoba
137 m2